查看完整案例


收藏

下载
费劲心血买房,还要考虑学区房的地理位置,很有可能遇见“老破小”,入住后要面临老大难的户型改造问题。
老房常见问题:
1. 无客厅、厨房和卫生间小;
2. 完全无动线可言,路线重复且过长;
3. 采光不好,客厅是小黑屋;
4. 储物功能基本没有;
5. 家里要生活还要工作,空间不够。
其实,没那么难!多看一些优秀的装修案例,在充分了解自己及家人的居住需求后,通过一些巧妙的装修技巧,就能打造出理想的家。
国内老房改造头部装修设计公司——里白空间设计,为了帮助更多有装修需求的屋主打造出越住越舒适的家,特别挑选了国内 45 个充满居住智慧的家装案例,它们均是有细节、可借鉴、经得起时间考验的居住榜样。
在详细了解每一位屋主对家的期待和想法后,从格局改造、动线优化到增强采光、提升收纳,以及功能叠加、细节巧思等方面进行剖析,著写了这本《老房新生小家改造攻略》。
国内老房改造头部装修设计公司里白空间设计 10 年沉淀之作。90+破解设计手法,320+实景图。每套房子的改造都有自己的智慧。让我们一起感受这不可思议的改造力。这里从空间的格局、动线、采光、收纳和融入个人的功能需求,梳理了《老房新生小家改造攻略》中设计师善用的 5 大设计技巧,想让装修少点遗憾,让家重获新生,现在就学起来吧!划到文末,有彩蛋!老房无客厅、卧室多,重新分配公私区域,实现空间功能的多样化。
改造前户型图
卧室多、无餐厅、阳台功能单一
改造后户型图
卧室变客餐厅,高效利用空间。
打通阳台,空间过渡更加流畅。
原始户型是一个三居室,卧室很多。屋主想要一个充满复古色彩的温馨之所,有宽敞的客餐厅,设计师将采光最好的主卧改成客餐厅,调整公私分布格局,获得更开阔的客餐厅空间。
舍弃卧室做客餐厅,与家人互动性更强
客餐厅用石膏线营造复古的氛围
卧室改成客厅,打通阳台,解决了老房无客厅的格局困扰。
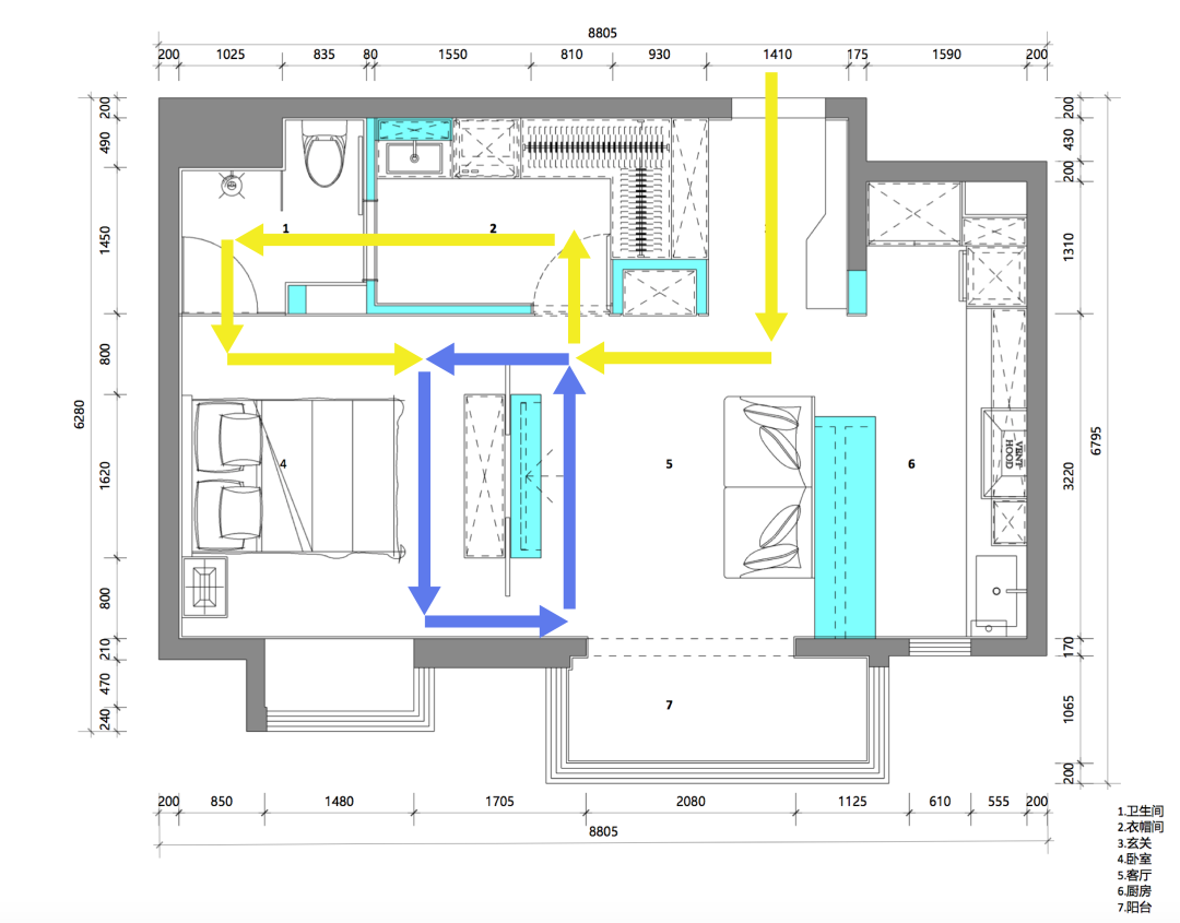
在家里绕来绕去,动线太长。
化零为整,小房子住出开阔感。
改造前平面图
空间各自独立,动线重复
改造后平面图
在使用面积只有 46㎡的老式住宅,设计师尽可能将空间打开,弱化房间界限,化零为整,为房屋置入酒店套房式的双洄游动线,将所有功能区均纳入整个洄游动线中,各空间紧密串联。提升小户型居住的开阔感以及舒适度。
在玄关处设计一个集衣帽储物间、洗衣房、卫生间干区于一体的多功能空间
定制电视墙实现卧室的洄游动线,两侧均为可推拉的玻璃门
原木色移门改变进入主卧的动线,露出旁边的书柜。加大采光面。开放式布局是关键,小黑屋轻松逆袭。
改造前平面图
室内墙体太多,导致整体采光通风都不佳
改造后平面图
拆除隔墙,打造 LDK,扩大采光面。次卧改成客厅,进行 LDK 设计。开阔的 LDK 空间不受限制,可以充分引入自然光,改善通风,当然也能令人放松身心。
最常见的做法是拆除客厅、餐厅和厨房之间的隔墙,甚至空间调换,重新编排生活功能,增强空间中的流动性,促进家人之间的互动。
客厅与厨房之间做半墙的设计,与厨房打通,形成常见的开放式布局
拆除多余的墙体,让自然光直射室内
客厅飘窗足够大,变成了一个休闲娱乐的空间
拒绝断舍离
用柜体串联整个空间,小空间收纳翻倍
收纳设计的重要性不必多说,属于装修的底层逻辑。除了定制全屋家具外,设计师们不放弃任何零碎、鸡肋的空间,通过智慧与设计巧思,将它们规划为实用的收纳空间,最大限度地利用好每 1㎡。
改造前平面图
玄关正对厨房烟道,无储物空间
改造后平面图
在玄关设计双面柜,隐藏烟道,扩充一倍的储物空间
进门处设计一组双面柜,隔出独立的玄关储物空间。小户型的使用面积有限,空间规划需要分寸必争,以柜子代替墙体,从隔断中“偷”储物空间,完全不用担心柜体会侵占活动空间的问题。但柜子相比墙体隔声效果会弱一些。
一面为电视墙,另一面为厨房的储物柜,小户型收纳翻倍
入户门旁设计步入式玄关柜,收纳出行必备小物件
在阳台做猫爬架,增加宠物的活动空间。适合自己的生活需求。居家办公、亲子住宅……把家烙上自己的风格。随着居家办公的需求增加,反映在住宅设计上很明显的一点便是对居家办公环境的再思考。当工作与生活高度重叠在同一个空间时,该如何在有限的面积内实现职住一体?
改造前平面图
客餐厅空间小,没有办法
改造后平面图:扩大客厅的面积,电视墙做书柜,新增办公区。
将电视背景墙做成定制的书柜,柜门做珐琅板,可随意涂鸦
在客厅新增工作区,新增的办公桌可以与书柜自然衔接
开放式的储物设计,能够让孩子更好的参与到家庭中来
为了把小户型利用到极致,家具全部定制,每个物品都有自己的归属地
客厅是工作区,也是家庭图书馆。
在客厅做出趣味小屋造型,既是送给孩子的礼物,也是孩子最喜欢的角落。
如何在有限的面积内平衡三代人的居住需求,这不仅要满足年轻人的审美喜好、作息要求,确保儿童成长环境的舒适性,同时还要关注老人的居住幸福感,将真正的适老化设计做到老人的心坎里。
主卧床头空无一物,原木家具搭配灰色的墙体,十分耐看。
主卫门洞拓宽,减少地面的障碍
在阳台做地台,为一家人创造更多的互动空间。
写到这里,我也对老房有了更新的认识,以上 5 点设计手法的确很关键,但更重要的是,设计对生活本身、对居住者需求的关注和尊重。
看完文章,你是否也对有“老房”有更深入的了解?想看更多老房改造,获得更多装修灵感,推荐这本内容丰富、实用的——《老房新生小家改造攻略》。
不管你是新入手的二手房设计,还是入住多年的老房改造,这本书拿回去参考准没错!
欢迎在评论区分享你对老房改造的看法或者遇到的难题,我们将选出 1 位幸运粉丝,赠送价值 69.80 元的《老房新生小家改造攻略》!
备注:本文图片和文字汇编自《老房新生小家改造攻略》。
凤〡凰〡空〡间
设计类出版机构
一直只做一件事
用轻松有趣的方式
让人人都能参与设计
觉得不错,您再分享
凤凰空间
进图书交流群 请私信回复“交流群”
客服
消息
收藏
下载
最近












































