查看完整案例


收藏

下载
| “不妥协”的学区房,有多好住?|
如果套内 45m² 要做三室一厅,恐怕不敢想象会是怎样的拥挤吧?然而今天这个改造一定会颠覆你的认知~
这是一套北京西城的学区房改造,居住人口是屋主夫妇+一儿一女,一家四口要在这里度过至少 6 年的时光,这套房也承载着两个孩子最重要的成长阶段。
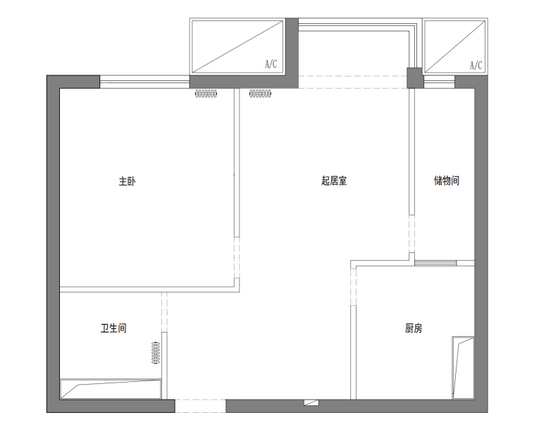
原户型是个典型的方正一居室,小得非常明显:站在门口,一眼望到头,要住一家四口,每个成员还要有私密空间,一卧改为三卧是刚需诉求,同时夫妻俩也希望公区尽量宽敞些,尽量创造陪伴孩子的温馨时光。
房子属于全北向、单面采光,因为小区内楼体分布呈“回”字形,导致唯一的进光面被前楼遮挡,加上室内空间较封闭,采光受限,暗厨、暗卫使用体验感不佳;3.6m²的储物间满地杂物,利用率极低。好在房子的承重结构不复杂,改造自由度较高,可对缺陷逐一优化。
这次设计师利用“睡眠舱”的概念,定制家具在客厅新增了两个独立睡眠区,解决小房不够住的痛点。
改造要点:
1. 弱化功能区界限,扩大北向进光面;
2. 适当缩小主卧,增加公区面积;
3. 化零为整,弱化餐厨边界感,打造客餐厨一体的 LDK 布局,让一家人能有更多互动空间。
玄关
原户型进门左通厕所,右接餐厨,缺乏独立玄关和储物功能。设计师将厨房做成了开放式,橱柜尽头利用转角柜实现玄关收纳,鞋子、外套的收纳空间足够使用。
为了方便做嵌入式冰箱,将玄关柜进深做到了 600mm,这个深度取里面的物品会有点吃力,所以将玄关柜一分为二,做双面可打开的转角处理。
面向入户门一侧收鞋子,面向客厅一侧挂衣,动线也更流畅。
进门左手边则新增了洗手台,缓解了一家四口如厕“早高峰”的困扰,也在后疫情时代建立起一道“防线”,进门可以立即净手-消毒。
洗手台左侧其实是管道井,借势做了个储物空间,下方凹槽处留白,方便进门随手放置小件物品。
餐厨
原户型本就是客餐一体的布局,改造时将开放式厨房整合,做成了 LDK 一体的空间。餐桌+中岛台作为公区 C 位,四周形成高效洄游动线,串联各个空间。
厨房虽小却功能齐全。整体布局由下厨动线串联,取食材-清洗-备餐-炒菜动作流畅,菜品出锅到上桌仅需转身就能完成。
餐区可供四人同时使用,厨房一侧选了藤编条凳代替传统餐椅,不用时可完全收至桌下,保持过道宽敞。
厨房墙面及岛台外立面均为岩板,材质上的呼应统一视觉,也方便打理。中岛做了水槽,内部安装净水系统,侧面加装轨道插座,方便小家电使用。屋主一家平时以少油少盐的简餐居多,开放式厨房基本没有油烟的困扰。
餐厨视角看客厅学习区、儿童房,
身处餐岛,家里的各个空间都能看得到,
家长可以随时照看到小朋友的情况。
客厅
采光通风是影响居住幸福感的首要因素,为解决空间较大的采光缺陷问题,大胆采用了开放式的布局,减少了隔断阻挡,空间显得更敞亮了。
客厅是家人互动、孩子学习的场所,屋主不希望被太多家具束缚,舍弃了传统的沙发+电视的布局,留出宽敞的活动空间,方便一家人游戏。
采光最好的位置留给了学习区,两张可升降的学习桌并排放置在窗下,既保证光线充沛,同时不遮挡室内采光。
选择了轻便好移动的沙发,以投影仪代替电视机,在儿童房顶面安装了电动幕布,正对主卧床,可以窝在沙发或床上看电影。
小朋友在学舞蹈,设置了一面全身镜,位于玄关进入室内的动线上,因此既能方便出门整理仪容,也能作为小朋友的舞蹈镜。
宽大的镜面有着极佳的反光作用,起到视觉上延展空间的效果。
儿童房
儿童房设计引入了“睡眠舱”的概念,在原储物间的位置新建两个独立小房间,上床下柜,方便收纳孩子的衣物和玩具。改造后既能实现三卧室的刚需,也通过紧凑又合理的布局,让原本封闭局促的空间得到解放。
左右分别设置了独立入口,中间隔开。一来省空间,二来保持空间是各自独立的,同时距离很近会让两人觉得并没有分开。
在两个房间还特意留了“小机关”,四个大小不一的圆形窗口俏皮可爱,增强与外界互动的同时,也方便儿童房内部通风透气。
两侧的入口分别安装了壁挂扶手,小朋友攀登时能借力,保障安全性。
睡眠舱内直接铺床垫,内部设置了灯带及独立开关,小小的空间温馨又很有安全感。
下方为游戏区兼储物空间,主要用来收纳姐弟俩的衣物和玩具。
衣柜由中间的开放式玩具收纳格区分,男左女右,方便使用。
儿童房的起夜动线会途经餐区,设计师在岛台下方以及卫浴间门口分别做了感应小夜灯的设计,无需全屋照明也能看清,真的很贴心~
主卧
儿童房对面就是主卧,为节省空间,地面以地台床代替普通床架。考虑到 2 岁的男宝年纪小,为方便照顾,主卧目前暂时做开放式处理,设计师提前预留了推拉门轨道,后期能随时改为独立卧房。
靠墙位置顺势作衣柜储物,柜体下方预留开放式储物格代替床头柜,方便睡前收纳手机、书籍等物品。
卧室入口上方是结构横梁,设计师巧妙利用弧形顶面造型,在公区没有吊顶的前提下将缺陷遮挡。卫生间
卫浴间入口采用隐形门,使得公区墙面统一,保持整体感。
卫浴间内利用玻璃隔断做干湿分离,并通过几个细节实现了小空间的高效利用:
1、做壁挂式马桶,水箱上方做储物柜,方便清洁剂、卫生纸等消耗品囤货;
2、
1.8 米超长洗手台一直延伸至马桶区,超大洗手台方便带小朋友使用,台面下方作开放式储物格,方便厕纸存放;
3、设计壁龛并预留插座,方便充电。家政间
卫浴间太小,放不下洗衣机,利用厨房下水旁边的位置隔出独立洗衣房,洗烘衣机套装上下叠放更省空间,也解决了没有阳台晾晒衣物的困扰。
四周做储物柜,方便收纳洗衣液,墙面利用洞洞板将清扫工具壁挂收纳,高效利用纵向空间,不浪费每一寸。
平衡好四口人的居住尺度,放下三间卧室和宽敞公共区,同时改善户型原本的采光通风不佳。
改造后的空间,格局开放宽敞,视觉上有藏有露,小中见大,可谓超强!
从不完美的小房子,到变成理想中的家,希望这间“不妥协”的学区房,也能给准备装修的你带来一点灵感!
房屋信息
项目地址:北京 西城
使用面积:45㎡
项目总花费:60w
客服
消息
收藏
下载
最近







































