查看完整案例


收藏

下载
| 不华丽,却十足的耐看!|
这是一对小夫妻和两只猫的家,
“一家四口”性格各不相同——
直率的女主,温和的男主,
英气的猫一号和胆小的猫二号,
不过两只猫对晒太阳和磨爪子都很痴迷~
屋主喜欢低饱和色且充满设计感的风格,
希望家中能打造足够的储物空间,
保持久住之后的清爽整洁。
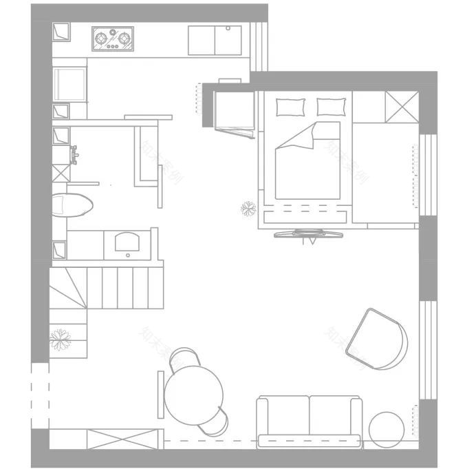
一楼 改造前后对比
改造要点:
1、入户区域与内部空间做了隔断,与客餐厅形成分区且不完全封闭;
2、次卧使用频率低,将其空间适度分配给公共区域,让常用空间舒适度最大化;
3、次卧与过道间开了窗户,给空间引入更多自然光;
4、卫生间做了外移,同时增加了过道储物,弱化过道单一功能。
2 层 改造前后对比
改造要点:
1、二楼整体作为屋主私人空间使用,满足了办公、阅读、卧室以及衣帽间需求;
2、将原有的低矮阁楼区域,用内嵌书柜和柜门做了划分,内部作为杂物储物空间;
3、原本卫生间功能部分保留,方便同层空间使用,同时将不规则顶面隐藏,内部也做了储物。
玄关
原户型开门见厅,过于直白,设计师重新打造了一面隔断墙,让视觉有了层次的乐趣;中间留空+侧面开缝处理,也不会影响玄关采光和通透感。
进门右侧的鞋柜做了壁挂悬空设计,将换鞋功能与鞋柜结合,使用更方便,视觉上也更显轻盈,让空间有了呼吸感。异形穿衣镜呼应了隔断墙的拱形窗,空间线条有了曲直交错的美。
拱形窗望向客厅,犹如一面装饰画。
餐厅
隔断墙的另一面便是餐厅,从餐区透过隔断隐约可以看到玄关。楼梯下一株形态简约的植物,进一步丰富了空间的线条层次,很巧妙。
餐桌椅款式简约但造型感很强,有种高级感满满的艺术腔调,空间中同色系的深浅搭配,十分耐看。
因餐区空间有限,选用小巧款式桌椅,满足平日里屋主两人使用即可。餐桌腿的竖棱,不同材质的餐椅,都进一步丰富了这个低饱和色空间的质感。客厅
整个空间由屋主喜欢的低饱和色打造,传递着简约不失雅致的居住理念。虽然没有太华丽的装饰,但每一件软装、家具的选择都透着质感。
客厅窗帘选用了百叶形式,可以灵活调节光线角度,实现不同场景下的明暗需求。自然光透过百叶帘洒落在空间里,让空间更加灵动与柔和。
绒布的沙发自带暖意也比较耐造,适合与喵星人同居的家庭。与沙发同色系的地毯增加了视觉整体感,上面不同线条肌理的穿插交错,则避免了大面积同色的单调。
电视墙定制了内嵌转角壁炉,旁边还做了小的储物格子,像是一个整体,美观的同时也方便使用。
随着秋意渐浓,冬雪飘起,壁炉的存在让家里多了一些温暖,橙色的火光给人以内心的抚慰。
过道与次卧的墙面上开了同款拱形窗,将更多自然光引入室内。同样使用了隐私性较好的百叶窗帘,满足居住人不同场景下的使用。
厨房
厨房采用长虹玻璃玻璃推拉门,兼顾采光度和隐私性,避免内部物品影响视觉清爽,爆炒时关起,可以有效阻隔油烟。
次卧
从过道的小窗看向小卧室,这里作为临时客房使用,内部延续了低饱和色,明净整洁。主卧
二层的定位是屋主夫妻的私人区域,办公、阅读、卧室以及衣帽间等功能错落有致地穿插排布开来。平顶下作为休息区域,避免低矮阁楼带来压迫感,将休闲阅读区设置在斜顶下方,整体更具慵懒放松氛围。
斜斜的屋顶和天窗是阁楼最迷人的地方。晴朗的白天可以享受到暖暖的阳光,夜晚一盏落地灯,一个香薰,便是成年人最治愈的时刻。沙发后边的黑色柜门是杂物储物区的入口。
捕捉一枚帅气逼人的家庭成员~
床头旁边是女主的梳妆台,黑色钢琴漆材质提升空间质感。
整个空间穿插了黑色和奶灰色,用低饱和度的克制加曲线的柔美,打造出简练不失柔情的家,就像男女主人不同个性的融合一样。
房屋信息
项目地址:北京 海淀
使用面积:80㎡
项目总花费:38w
客服
消息
收藏
下载
最近


























