查看完整案例


收藏

下载
YIBEI DESIGN SUZHOU
唯有在白色里
才是最令人心安的
Only in White
That’s what’s most reassuring
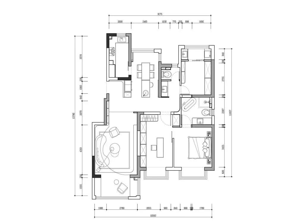
平面布置图▼
从白色起步的生命
穿过岁月
又逐渐褪尽斑斓
就如生活一般
终会褪去繁华
From the white start of life
through the year
and gradually fade colorful
like life
it will fade
深色线条在虚实之间游走,产生停与顿的瞬间
Dark lines move between the real and the virtual,
creating moments of pause and pause
简洁的白调基底,深色色块的穿插,材质之间的呼应,
就像宣纸上的现代画作。看似漫不经心,实则精心测算。
Simple white base, dark color blocks interspersed, echoes between textures,like a modern painting on rice paper. Seemingly insouciant, but actually carefully calculated.
灼灼木光,温润其华
Burning the wood, moistening it
-END-
长按关注
最专业的的全案设计,施工,软装
欢迎后台点击预约服务
我们将在第一时间与您联系
苏州市工业园区李公堤三期9幢103室(瑞贝庭酒店旁)
一 贝 设 计 | Y I B E I - D E S I G N
客服
消息
收藏
下载
最近













