查看完整案例


收藏

下载
YIBEI DESIGN SUZHOU
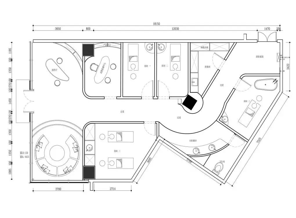
平面布置图▼
治愈心灵 放下疲惫的身躯 让生活的诗意渗透每一处
Heal the heart, lay down the tired body, let the poetry of life permeate everywhere
空间以纯色为主
个性化的装饰就能够让整体的空间品位感十足
The space is dominated by solid colors
Personalized decoration can make the overall sense of space taste
文艺的微水泥与漆面
弧形元素与暖白色调给予了一丝触手可及的舒适温暖
Artistic micro-cement and lacquer surface
Curved elements with medium warm tones give a touch of comfort and warmth
工业化的线条设计成为了点睛之笔,以朴实优雅营造一种私密精简的氛围,以艺术品和道具陈列让空间完整独创。
The industrial line design became the finishing touch,To create an atmosphere of privacy and simplicity with simple elegance,Display art and props to make the space complete and original。
-END-
长按关注
最专业的的全案设计,施工,软装
欢迎后台点击预约服务
我们将在第一时间与您联系
苏州市工业园区李公堤三期9幢103室(瑞贝庭酒店旁)
一 贝 设 计 | Y I B E I - D E S I G N
客服
消息
收藏
下载
最近













