查看完整案例


收藏

下载
YIBEI DESIGN SUZHOU
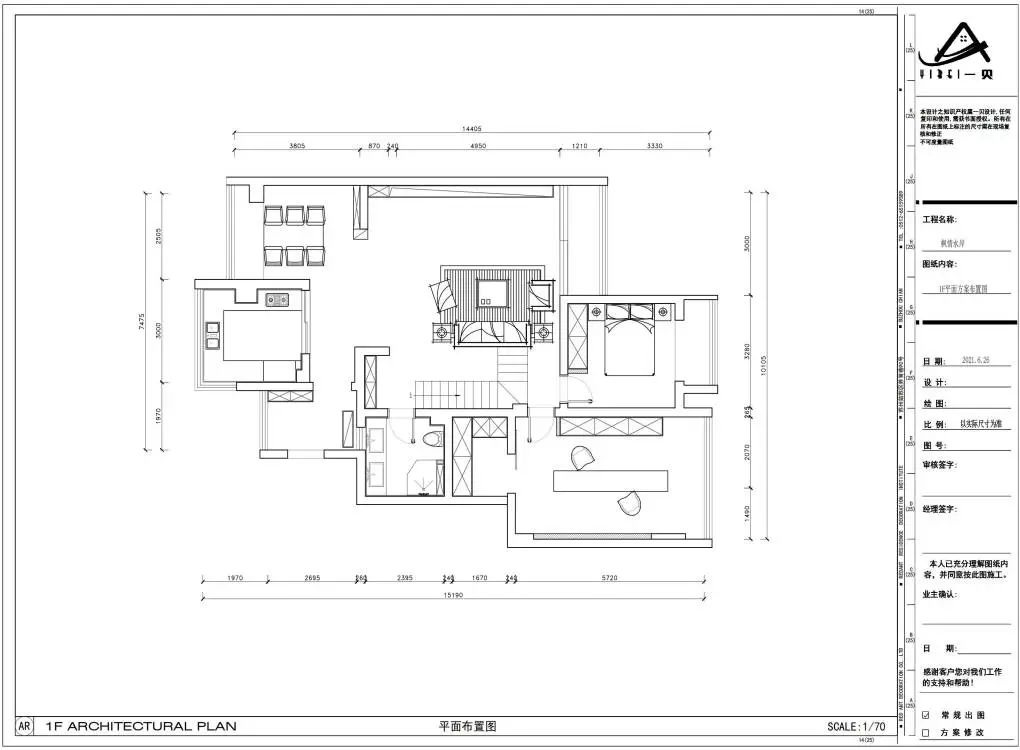
平面布置图▼
当黑白灰成为主角,空间的质感更显干净极致
When black and white ash become the protagonist, the texture of the space is more clean acme
光影的巧思妙用
The Ingenious Use of light and shadow
体块的分割
Partition of volume
空间与空间既有界限又相互沟通,深入其中的细节是制造生活乐趣的最佳表演:材料表现 颜色层次 触感差异建构了空间的品质感
Space and space both boundary and mutual communication, asking into the details is the best performance to create the joy of life: material expression color level tactile difference to construct the sense of quality of space
零星的绿绽放生机
Green reflects vitality
-END-
长按关注
最专业的的全案设计,施工,软装
欢迎后台点击预约服务
我们将在第一时间与您联系
苏州市工业园区李公堤三期9幢103室(瑞贝庭酒店旁)
一 贝 设 计 | Y I B E I - D E S I G N
客服
消息
收藏
下载
最近

















