查看完整案例


收藏

下载
YIBEI DESIGN SUZHOU
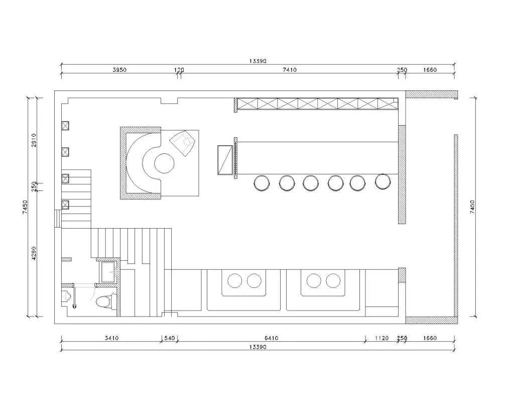
平面布置图▼
设计的起点往往始于一个问题
一旦被捕捉到了 事情就开始运转了
——卡洛.斯卡帕
昏黄的灯光将微醺的氛围感拉满
The dim light filled the atmosphere of the bar
凹凸的背景墙
未经装潢的水泥墙面给人带来厚重的工业气息
The concave and convex background wall
the undecorated cement wall surface brings the heavy industrial flavor to the people
金属质感的陈设 让空间整体提升了质感
Metal Texture of the furnishings, so that the overall space to enhance the texture
-END-
长按关注
最专业的的全案设计,施工,软装
欢迎后台点击预约服务
我们将在第一时间与您联系
苏州市工业园区李公堤三期9幢103室(瑞贝庭酒店旁)
一 贝 设 计 | Y I B E I - D E S I G N
客服
消息
收藏
下载
最近
















