查看完整案例


收藏

下载
简简单单,安然自得,整洁无杂乱的精致与舒适,宁静素雅的时尚与品味,恰到好处地展现在角角落落里。家应该是这样,生活也应该是这样。
项目名称:华远九都汇
面积:200㎡
风格:现代极简
设计师:吕宏音
本案业主是一位单身的精英男士,对生活品质有较高的要求。他崇尚极简的生活方式,喜欢宁静舒适的家居环境,同时喜欢偶尔的朋友聚会。
业主诉求:解决主卧的卫生间与床相对的风水问题,希望自己的新家能够有独立的衣帽间及书房,并且能够满足自己平时会客、休闲以及对生活品质和精神文化的需求。
综合业主的多个需求,设计师对原始户型进行了一系列的拆除与新建。
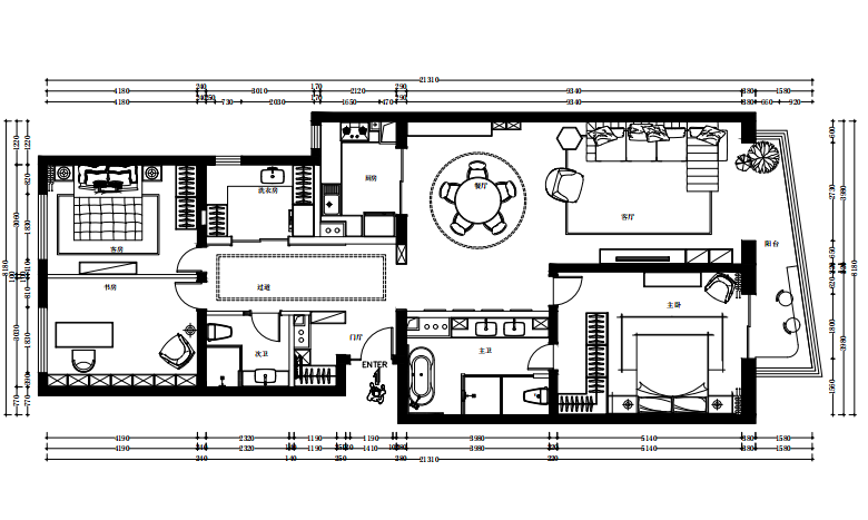
户型分析
△原始平面图
△平面布置图
1. 原始户型为标准三居室,缺点是进门空间狭小。设计师在户型改造过程中,拆除了原始户型门口的储物间,变成开放式的收纳空间,让视觉更加开阔。
2. 将主卧室空间进行了重新的规划,单独分隔出衣帽间区域,不仅满足储物功能,同时也遮挡主卫生间对床产生的风水问题。
3. 餐厅位置的餐边柜位置做了小面积的西厨功能,平时的各种简单易操作的餐品就可以在此完成。
01客厅
Living room
素净统一的色调,是极简亦是深刻。浅灰色的基调素贯穿整个空间,原生态的肌理与质感沉浸出了一种简约到极致的纯粹自然。浅灰色的布艺沙发,大理石的圆茶几,炫彩抽象油画的组合是客厅最吸睛的存在;几本杂志,一杯咖啡,是单身男主人的日常生活写照,亦是生活品味的体现。
另一视角,又是另一番风景。干净而利落的空间,输送着舒缓与轻透,墙、门、柜间以流畅的动线连接;灯光、自然、光影、线条巧妙运用,石材、布艺、金属等材质点缀空间,令每个场景更加鲜活。于极简中现丰盈,于个性处添优雅,缓缓散发出不一般的温度和仪式感。
02 餐厅
Dining room
餐厅与厨房用一道黑色的玻璃移门隔开,既有效地隔绝了油烟又保证了厨房空间的通透性。一通到顶设计的餐边柜,做了西厨功能,放置烤箱、榨果机、咖啡机等电器,供男业主进行一些简单的备餐,分担了中厨的一部分压力。
美观的圆形餐桌与简约的黑色餐椅交织,营造出了独特的用餐环境。个性十足的圆形吊灯增加了时尚气息,使整体风格既清新自然又时尚精致。
03 书房
Study
书房的整体格局偏向于淡雅与沉稳,开放式书柜,既可以摆放书籍,也可以摆放装饰品。
走进书房,手执书卷,徜徉于书香之中,便能净化浮躁的灵魂,忘却身边的烦恼。
04主卧 Bedroom
主卧延续浅灰的色调,同时使用大量木质元素,以色调的冷硬与木质的温暖相融平衡,带来一种宁静的视觉感受。
空间在细腻与饱满之间得到了微妙的平衡,低饱和度的色彩让人瞬间放松下来,引入温柔的自然光线,艺术挂画为寝居空间带来静谧的氛围。
05 卫生间 Bathroom
卫生间是最能体现一个家的品质的地方,本案设计中卫生间与浴室分开,做到了干湿分离,保证空间的干燥卫生与整洁美观视感,从光的引导、色彩及材质调性,无一不显得清新细致。
清新的绿植点缀在白色的浴缸旁边,微垂的枝叶,让整个空间更加生动鲜活。设计师简介
吕宏音
Boloni
国家注册高级室内设计师
资质:
中国建筑装饰协会高级住宅室内设计师
国际商业美术设计环境艺术设计专业 A 级
设计理念:
现代设计的人文环境与传统风水的自然环境相融合
代表作品:
澳洲康都、北京公馆、大西洋新城、东恒时代、丰融园、枫丹壹号、枫林绿洲、富力城、富力又一城、合景邑墅、润泽墅郡、千章墅、双清苑、禧瑞墅、西城晶华、新海苑、新新家园、朱雀门、西山艺境、奥东十八、新城国际、金泉家园、圣世一品、贡院 9 号、朗琴园、首开常青藤、倚林家园、中广宜景湾、润峰水尚、世纪新景园、凤凰城、碧水云天、观湖国际、华庭嘉园、中粮祥云、山水文园、华远九都汇等。
客服
消息
收藏
下载
最近























