查看完整案例


收藏

下载
“家啊,我觉得它像一面镜子,每个角落都有业主生活的影子。本案的业主,他们爱生活,懂生活,最重要的是会生活。所有的细节,都在诉说他们对生活的热爱。”
——设计师说
01 项目信息
项目名称:
金地名京
面积:
120㎡
风格:
日式
设计师:
尤嘉
02 设计需求
业主是一对85后夫妻,有一个三岁的女儿。
设计方面,业主提了几个简单的需求:日式风格、大收纳、开放式厨房;功能方面,希望设计师帮忙协调。
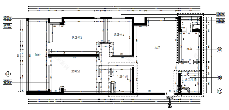
03 结构改造
原始平面图
平面布置图
1、厨房从封闭型改造成开放式,空间开阔性更强。
2、改变儿童房入户门位置,调整空间布局。原户型中,儿童房床体只能靠窗摆放;改造后将书桌放在采光好的窗边,床体放在房间最里面的位置,变成环抱型布局。
玄 关
进门右手边的玄关,采用自带换鞋凳的入户鞋柜,安装一面全身镜,方便进出门换鞋、整理穿着。
绿
植、手办、摆件……看似简单的玄关,也是充满仪式感的一角。
餐 厅
进门左手边是餐厅区域,采用
餐边柜加餐桌的布局,摆上几幅装饰画、一些绿植,和原木色的家具搭配起来,自然的质感为室内带来无限生机。
客 厅
考虑到正对入户门,就采用半墙的设计,减少堆积感,既起到了电视背景墙的效果,又服务于开放式厨房。半墙上面形成一个小的平台,方便放手办和摆件进行装饰。
客厅区域采用沙发加书柜的搭配,形成一个读书角,业主陪女儿在这里读故事、看画册,一起享受亲子时光。飘窗下方的空间也被完美利用,增加收纳。
业主喜欢喝茶,设计师就将原来的飘窗加长,形成一个喝茶的区域,加上优质采光,边观景边品茗,也是一件悠哉的乐事。
厨 房
厨房从原来的封闭型改为开放式后,更显开阔,
加上
门帘的装饰,
日式风更浓
。
半墙对做饭产生的油污和水渍起到了遮挡作用,形成一个正常的厨房台面,从客厅方向
看也更显美观
。
主 卧
主卧背景墙采用业主最喜欢的绿色,加上绿植的修饰,空间更显宁静与清新。业主在床头放上一把梯子作装饰,方便搭衣物,不仅不占空间,还极具美观性。
主卫的浴室柜紧挨浴缸,方便把沐浴物品直接收纳在柜子里。柜体的台面可以用作浴缸的手台,形成一个小的连动,泡澡时将香薰放在台面上,更有氛围感。
玩 具 房
小公主的天堂,到处都是玩具和娃娃,以后会打造成女儿房。为了体现房高,墙壁漆面没有刷到特别靠顶的位置,在上方保持留白。
过 道
过道一边是隐形式收纳柜,一边是磁吸黑板墙,业主陪孩子在这里画画、学字母,将这片大空间充分利用,增强家庭互动性。
设计师档案
客服
消息
收藏
下载
最近





























