查看完整案例


收藏

下载
THE LIFE OF
A PERSON
AND A DOG
HAPPY LIFE
一人一狗的幸福生活
▶◀
又想早点退休的智能“懒”达人,又养着茶杯泰迪犬的爱花小姐姐,会有一个怎样的家?
随性不随意,自然又温馨。
业主传达的感受,化为设计师之手。
Project
项/目/信/息
Project information
项目名称:阳光上东
面积:115㎡
风格:现代简约
设计师:贾朋
Owner
业/主/需/求
Owner requirements
业主是 85 后女高管,文学系毕业
工作上干练,生活中追求极度舒适(LAN)
反差感极强的她和一只茶杯泰迪犬,一起幸福懒懒地生活
作为一名新时代年轻人,业主说:
电器与灯光都要设计成智能的,要最大程度地解放双手。
平日工作忙,周末喜欢宅家,空间一定要自然又温馨,舒适且亮堂。
杂七杂八的东西太多了,大收纳,安排!
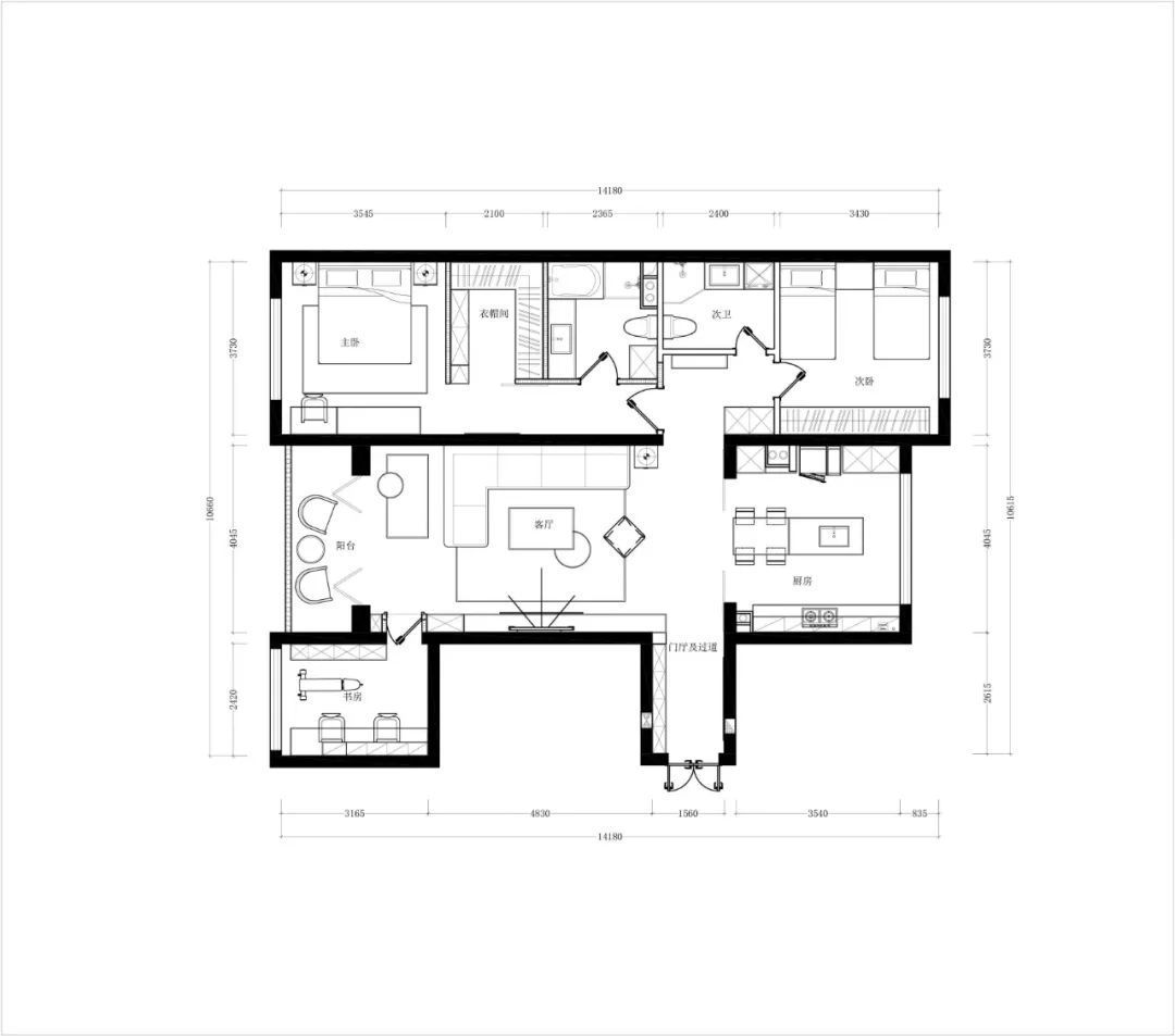
平 面 图
玄 关
方便、实用的玄关柜外,地毯也是绝对地亮眼,把当代年轻人心理展现得淋漓尽致,谁还不是退休预备员了?
客厅
整面墙的电视柜和抽屉柜设计,让收纳翻倍。
背景墙处加入一块岩板,周围安装发光灯带,渲染氛围、增添层次。
电动窗帘智能、便捷,帮业主解放双手。
推开玻璃门,露台与室内连通,生活与自然无边界。
整屋的原木色地板彰显自然本色。纯净的色调、惬意的气息充斥整个空间。摆上两块懒人沙发,展现慵懒又舒适的生活格调。随性不随意,“乱”中有秩序。
餐厨
爱做咖啡和简餐的小姐姐,岛台成了她的最爱。
中厨供父母过来居住时烹饪川菜使用。
拉上玻璃门变成封闭式厨房,既不用担心油烟,两个空间还可以随时互动,想想都是满满的幸福。
餐桌为抽拉式,收纳绝绝子,朋友聚餐可满足五至六人同时用餐。一个人的时候,随时收起,也不占据空间。
主卧
懒人支架深度展现业主想解放双手的决心
高颜值电视也成了业主高审美的代表产品
结束一天的忙碌或是慵懒的周末午后
躺在床上看书或追剧
这样的宅家生活,治愈又惬意
爱美的人绝不能缺席的空间——衣帽间
从主卧里“挤”出来的衣帽间,虽然小但功能分区明显,收纳力强。搭配动物图案的毛绒地毯,打破单调,空间也多了几分俏皮可爱。
书房
文学系毕业的小姐姐的必备空间——书房
多功能区域,办公、看书之余还兼具健身功能
“盘腿椅”“普拉提”都是自律的证明
和狗狗一起锻炼,
成为自律达人
老人房
父母偶尔小住,享受天伦之乐。
无主灯设计,用线条灯增加氛围感。
考虑到老人的习惯,在床头分别安置壁灯与吊灯,可作阅读灯使用,又方便起夜照明。
卫生间
木化石纹理的瓷砖为墙地一体化设计,增强视觉空间感
狗狗也是家里的小主人,所以设计了单独的小浴缸
淋浴屏也做到了干湿分离的设计
功能/卫生两不误
85 后生活的代表
设计师深度了解用户需求后,打造真正实用舒适的空间
设计师档案
客服
消息
收藏
下载
最近






















