查看完整案例


收藏

下载
项目名称:三里河一区
面积:88㎡
风格:现代简约
设计师:叶锦华
本案例位于西城区三里河,88 平米两居,设计师接到这套案子是经之前客户推荐,夫妻 2 人居住,女业主是建筑设计师,对生活有独特见解和向往。
本案风格为现代简约风,设计师整体基调以暖灰为主,用奶油灰烤漆及少量金属点缀,仿佛在忙碌的都市生活中透出生活的光,简单且幸福着。
空间改造
原始平面图
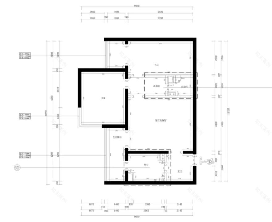
平面规划布置图
1. 设计师将餐厅、客厅、书房三个空间融为一个空间,在格局上做了很大的结构调整,书房用大的玻璃门作为区域划分,当书房门打开时,视觉由三个空间贯通为一整个大空间。
2. 客厅沙发与补妆区由一面半高墙进行区域划分,当在补妆区使用的时候形式上还是能和客厅区域形成互动。
入户门 Entrance doors
入户门厅设计封闭式柜体,多了收纳空间,视觉上简洁统一。
入户门厅跟西厨融合在一起,增加空间感。
将洗衣机嵌入柜体,节省空间,也方便主人使用。
厨房 Kitchen
增加西厨,设计师将原阳台改为中厨,用玻璃门将中厨隔开,隔离油烟的同时,还不影响采光,门厅、中厨、西厨动线流畅,拉伸视觉感。
客厅 Living room
客厅沙发与补妆区由一面半高墙进行区域划分,当在补妆区使用的时候,还可以和客厅区域形成互动。
灰绿色贯穿整个房间,设计师运用线条的整体并列、交替、错落,构成空间中最隐而不显的设计元素。恰如其分的设计既无喧宾夺主的压力,也将原始的生活功能还给空间,给业主营造了一处安适、自在的环境。
在使用角度上,客厅、餐厅、客厅与补妆区相呼应,解决业主在每个使用过程中不脱离同时又存在独立感。
餐 厅 Dining room
空间体验保持绝对自由,且保持间距,以求和谐。直线和圆相结合,灯光高低错落,促进食欲照明,温馨浪漫的二人生活从此开始……
书房
书房采用三联动门,空间独立但又不影响视觉。
设计师将书房阳台空间设计了箱体床,可以作为客人的临时卧房,整体空间还融入了衣帽间,是女主人的最爱哦。
主
卧
Master bedroom
设计师将床头柜灯取消,改为洗墙灯,开敞格和床头柜的融合,增加收纳空间,增添丰富性。格子里散发出的灯光,增加光源利用。开司米亚光烤漆柜门搭配金属线条,让整个空间充满了时尚、现代的氛围。
卫生间 Bathroom
设置壁橱,方便业主摆放东西。
卫生间改动坐厕位置,设计师以浴缸形式融入整个空间设计,让利用有所不同。
效果图
本案最终落地效果高还原率也是源于设计师对空间的合理规划,功能的细致推敲,风格的精准把握。
设计师档案
叶锦华
Boloni 博洛尼高级主任设计师
毕业院校:
2004 年毕业于北京经济学院建筑系
2015 年进修于清华大学美术学院
工作年限:15 年
职称及获奖:
中国建筑装饰协会高级室内建筑师
中国建筑装饰协会高级室内住宅设计师
中国建筑装饰协会高级陈设艺术设计师
国际建筑装饰协会高级室内设计师
设计理念:
有趣的灵魂才是设计的开始,设计就是生活方式
擅长风格:
现代 古典 新中式
主要案例:
格拉斯小镇 华润 8 号 千章墅 棕榈泉 时代庄园 荣尊堡 西山艺境 壹千栋别墅 龙湾别墅 远洋东方公馆 顺驰林溪 金正帝景城 园墅联排 天恒别墅 领袖新硅谷 雍和家园 傲城尊邸 山水文园 誉天下 星河湾 润泽等
客服
消息
收藏
下载
最近


























