查看完整案例


收藏

下载
项目名称:阳光上东
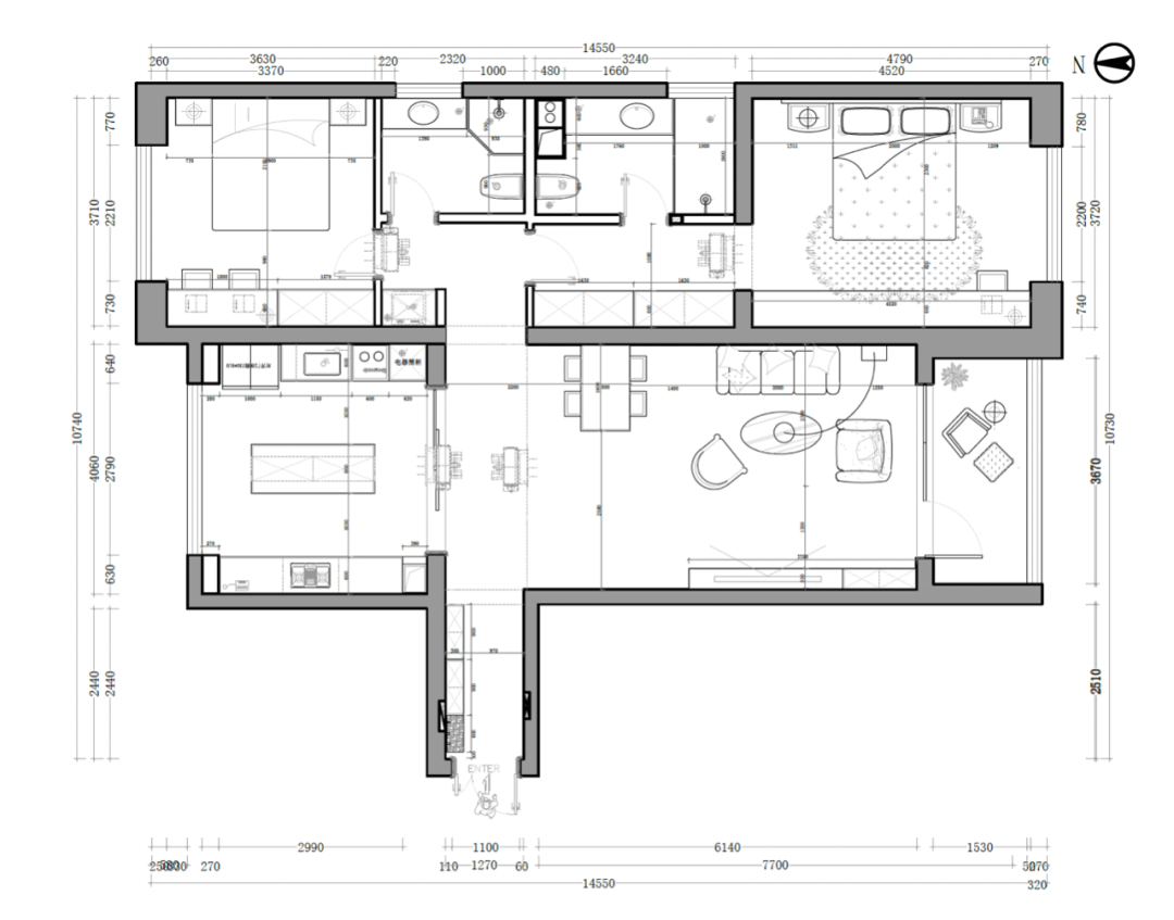
面积:108㎡
风格:简约
设计师:杨庆华
业主是阿根廷留学归国的 90 后小姐姐,从事互联网媒体工作。平时工作节奏很快,于是能拥有回归自然的“放空“时光,就变成了一件“奢侈品”。不想要过多的装饰,不需要家具产品的罗列堆砌;极简且重视质感,是她对于家的全部要求。
# 位置·户型 #
地处东四环,比邻朝阳公园、望京、燕莎商区;阳光上东社区拥有得天独厚的地理优势。整个社区分为 5 种建筑风格,美式、德式、澳洲、西班牙和丹麦,本次分享的业主案例-“安徒生花园”听名字就知道,是来自充满童话色彩的丹麦区;它位于社区东端,是阳光上东的收官之作。
两室两卫、一厨一厅,南北通透的绝佳户型搭配 18 层的适宜高度,天气晴好的时候可以很轻松的看到帝都 CBD 标志性建筑-中国尊。不仅是客厅,两个卧室也都是宽敞的落地窗,推开窗子就能感受住在“云端”的悠闲与自在。
玄关
Vestibule
原木色的哑光地板搭配烟熏橡玄关柜、收纳墙,一进门的玄关处没有过多装饰,主打收纳功能。
深咖色烟熏橡作为贯穿空间的主材质,其高级、沉稳的色调是近年来家居界的热门。而之所以定下这个基调,则是业主在博洛尼家装体验馆闲逛时的灵光一现。
客厅
Living room
没有电视、没有投影、没有任何智能设备……90 后小姐姐喜欢极致的简约、喜欢通透落地的感觉、喜欢与自然的 0 距离接触、追求返璞归真的都市生活。
设计师为了打破空间中直线的“硬朗感”,在局部家具、灯具的选择上倾向于更加曲线感、有机形的产品。而相比金属、石材,木纹材质也是增加空间“柔和度”的关键。
餐厅
Dining room
餐桌椅的部分,设计师进行了别出心裁的搭配。条凳 VS 靠背椅、木头 VS 皮革、传统 VS 现代;选择了不同风格与材质、设计出高矮的错落感,去实现传统与现代的均衡美感。
除此之外,整屋的墙面部分,特意选择了暖米白色壁布。壁布的无缝连接,整体感更好;颜色温和、触感踏实;为极简的空间增添了不少温馨感。而空间里暖色调的灯光也让家更有温度。
作为客餐厅与厨房的过渡,设计师做了一个可以连接起厨房、餐厅“沟通性”的设计-深灰色“无轨道三联动门“。推开,能最大限度的展示南北通透的户型优势;闭合,能作为全封闭的隔断使用;隔绝烹饪油烟和噪音,保证其他空间的舒适度。细节上,为了体现整个空间的高级质感和连贯性,设计师细心的选择了巧克力色边框来搭配整个灰色玻璃门,优雅、精致、时髦。
厨房
kitchen
厨房以浅米白色为主。超薄岩板岛台、亮光烤漆橱柜,在扩展厨房置物空间的同时,也很符合当下年轻人的审美和生活方式。
主卧 Bedroom
空间里,无主灯设计(空间以线性灯、射灯为主;点缀设计感极强的局部照明)是整间房子的一大亮点。而体现在卧室空间中,就更讲究啦。
光线统一使用偏暖色调,为了避免眩光、也考虑到现代人的阅读习惯(手机、iPad 都是有背光的),灯带被设计在床的左右两侧;真正的从舒适性出发,为居住而设计。
同样是烟熏橡材质的梳妆台和收纳柜,延续简约的线条感;床头柜选择相同色调,金色的装饰线和柜角,突显空间层次感。
卫生间
Bathroom
就是这么两个看起来平平无奇的卫浴间,但简约风格下却隐藏着满满质感。瓷砖的纹路经过小姐姐的“慎重”对比挑选,强调暖色系及砂岩般的触感;尺寸上,特别选择 750*1500 的大尺寸去营造浑然一体的“无缝感“。偷偷告诉你,仅仅是瓷砖产品,厨房+两个卫生间的花费就 10 万+。
设计师档案
杨庆华
Boloni
从业时间:18 年
教育背景:
北京林业大学
日本闰间设计工作室进修
清华美院研修
中央美术学院研修
设计理念:
用不一样的思路、不一样的想法,创作出适合您的室内设计解决
擅长风格:
侘寂风、中国风、轻奢风、轻古典等
获奖信息:
2012 年度搜房网中国室内设计百强设计师
中国建筑装饰协会注册高级室内建筑师(证书编号 A010177);
国际设计师联盟认证设计师(证书编号 F013038)
代表作品:
碧水庄园、国奥村、绿荫别墅、新新小镇、罗纳河谷、朱雀门小区等
客服
消息
收藏
下载
最近


















