查看完整案例


收藏

下载
华美的客厅洋溢着娴静优美的气息,素洁轻盈的色线营造着浪漫的情趣。
生活,本就该如此无拘无束。
The gorgeous parlor isfull of peaceful and elegant breath, and the simple and slight light makes the romantic taste. That’s what life should be.
项目信息
项目名称:首科花园
面积:230㎡
户型:复式
风格:现代轻奢
设计师:孟蒙
业主需求
业主是对 80 后夫妻,有一对聪明可爱的儿女,三代人一同居住。男主工作之余喜欢品茶、看书,女主喜欢烹饪,对餐厨有一定的要求,追求高品质是二人的初衷。业主希望设计师开放、有艺术性,设计达到简约、大气的效果,整体风格为极简轻奢,在合理利用空间的同时,突出奢华感。
原始结构改造
一层原始平面图
一层平面布置图
因为是三代人居住,保留四间卧室即可,就把一层一个原有卧室打掉,改为岛台搭配餐桌的设计,使得餐厨一体化,缩短生活动线,提升生活品质。
二层原始平面图
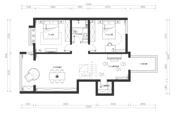
二层平面布置图
将之前楼梯间的卧室打掉,扩充为钢琴区和孩子的活动区,整体空间更加通透、大气。
玄关
玄关设计简单大方,以干净利落的线条组织、划分空间,用大面积金属材质将品质感融入到简约而规则的室内空间中。
入户配有白色鞋柜,点缀橘黄色的穿鞋凳,强化体验感和仪式感的同时,也彰显出空间的高级、大气。
客厅
客厅整体以奶咖色为主,打造温馨舒适、奢而不华的空间基调。无主灯的设计高级大方,简洁的大理石背景墙搭配木制格栅,凸显空间大气。搭配低饱和度的橘色皮质沙发,活跃空间氛围,提升空间品质感。植入艺术品元素,提升空间美学调性。
大面积落地采光配以飘纱窗帘,明亮通透、飘逸灵动。光线随着纱帘的开合,在明暗的光影中捉迷藏式地摇曳起伏,颇具韵律。
餐厨
漫漫时光里,用餐不仅是满足口腹之欲,更是“寻一处静雅,觅一点闲情”的生活美学。白色橱柜搭配流线式的灯饰,高雅精致,仿佛看到了女主人烹饪佳肴的美好;大理石和皮革的组合,温雅明净,精而有质,营造出空间的高级感和恰到好处的餐桌氛围。
一方天地,尘世烟火,三餐可期。
楼梯间
楼梯间采用大面积的大理石,呼应电视背景墙和全屋色调的同时,彰显空间的恢弘大气。石材踏步、玻璃扶手、若隐若现的灯带,使整个空间灵动通透。扶手的金属线条为空间增添视觉焦点,于细节之处显示不张扬的奢华。
楼梯间的吊灯倾斜而下,灯光在几何线条上下翻动,轻盈、生动,连贯的灯带设计延伸视觉感官,空间更显高端大气。
主卧
主卧色彩以高级灰为基调,咖啡棕为点缀,床头及柜子简约大气,灰粉色和白色的加入使空间干净温馨。左侧的灯饰以其柔和姿态,软化空间硬色,营造舒适的休憩空间,将生活意趣极致升华。
女儿房
迥别于轻奢素雅的整体风格,梦幻、跳跃的灯饰选择,灰粉背景色搭配充满童趣的摆设,创造出专属儿童的居住空间。
设计师档案
孟蒙
毕业院校:进修于清华⼤学美术学院
获奖情况:
2019 年度设计源·世界观设计公益精英⼈物
2018 年度获博洛尼设计师⼤赛优秀奖
2017 年荣获中国北京设计杰出⻘年奖
2013—2016 年荣获筑巢提名奖
擅长风格:现代、简约、轻奢、新中式、古典、美式、现代美式、现代法式
设计理念:倾听、想象、专注,做有温度的设计
代表作品:天恒水岸壹号、西山壹号院、领袖翡翠墅、保利垄上、紫金长安、远大园、观澜国际公寓、晴雪园、万柳书院、北湖壹号、西山华府、金源国际公寓、复地首府、首开琅樾、中海尚湖等
客服
消息
收藏
下载
最近


























