查看完整案例


收藏

下载
活着不是为了取悦世界,而是用喜欢的方式取悦自己。喜欢工作带来的成就感,也享受独处时的舒适感。独处的魅力,如绚烂的花,可以肆意开放。
项目名称:西府颐园
面积:80㎡
风格:现代
设计师:李士佳
本案例属于老房改造,业主本想换把椅子,但是机缘巧合,歪打正着碰见博洛尼,最后决定整体装修,业主笑称这是“一把椅子引发的装修故事”。
业主做进出口贸易,喜欢收藏模型,这所房子自己一个人偶尔居住,比较喜欢硬朗的东西,对于灯饰和灯光有自己的习惯要求。因此设计师在整体色调上采用灰色,体现男性主张,蓝色的点缀,增加空间灵动感,灯光设计完全遵循业主意愿。
原始结构改造
原始平面图
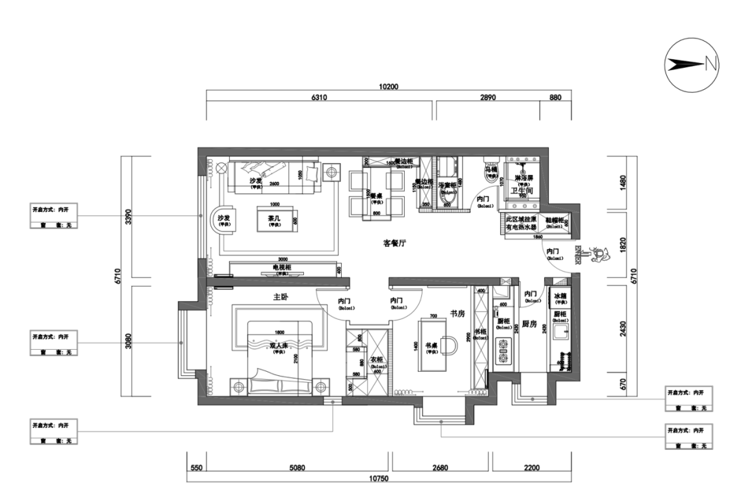
平面布置图
1. 次卧改成书房,将次卧一侧的墙后移,余留出位置给主卧增加衣帽间。
2. 整合卫生间空间,业主一个人居住,将手盆设计在里面,使动线更流畅,手盆下面设计镶嵌式洗衣机,节省空间。
01 玄关 Vestibule
入户门厅设置封闭式鞋柜,回家便享受尊贵般待遇。玄关与客厅的过渡区域置入置物架,陈设业主喜欢的模型,彰显业主品味。02 餐厅 Dining room
餐厅上方的吊灯是整个空间的中心,打开灯光,照亮石材台面,大理石的纹路在照射下凸显出高级感,搭配皮质的餐椅,让人用餐时也能享受高雅,予人惬意的用餐体验,享受自在舒适的用餐氛围。03 客厅 Living room
客厅开阔的落地窗设计,使得空间变得更为通透。沙发和电视柜都选择浅色系,布艺和绒面的温馨感,使客厅的整体氛围轻松又温馨,沙发墙没有过多的设计,简单的抽象画,就足以衬托出整体的氛围感。
04 主卧 Bedroom
主卧背景墙板采用撞色,奶油灰搭配博洛尼经典色苍与木,3:7 的尺寸比例,形成视觉冲击。卧室设计提供宁静、舒适的睡眠环境,创造一个完全属于主人的温馨环境。
05衣帽间
Cloakroom
衣帽间占用了主卧部分空间,打造了一处通透敞亮的不如实衣帽间,充分满足屋主的衣物收纳需求,小小的空间也可以拥有秩序井然的生活。
06 卫生间 Bathroom
在卫生间的设计上,设计师将手盆下面设计镶嵌式洗衣机,节省空间。通过合理地规划布局设计,营造出流畅的空间动线,空间与设计融为一体。
07书房
Study
书房门板采用奶油灰,整体配色体现高级感,黑色玻璃门,尽显男性气质。书房设计将严谨的设计理念和美学的思考融入其中,高级的质感与大气的曲线相结合,形成相融万千姿态的格局。
李士佳
Boloni
全案室内设计师
毕业院校:黑龙江大学
获奖情况:
2016 年全国主流户型设计铜奖
2018 年中国优秀青年设计师银奖
2020 全国设计风尚奖
擅长风格:现代、美式、中式、欧式、古典、北欧、新奢华
经典案例:兴涛园、西斯菜公馆、润泽郡、世纪城、盛鑫嘉园、华润城、乐城国际、顺驰领海、北注路 25 号院、城南嘉园等
设计理念:设计是从旅行、生活、衣食住行中去发现不一样的生活方式以及对未来不一样的生活规划。
客服
消息
收藏
下载
最近


















