查看完整案例


收藏

下载
生活不止一种风格,工作一天回家,在精致的舒适感的熏陶下,卸下疲惫,独留万千快乐。
项目名称:首创·澜茵山
面积:240㎡
风格:简欧轻奢风格
设计师:梁鸿亮
本案业主一家三代人居住,最少三间卧室需求,业主要求整体风格大气,与建筑风景要相融,空间动线要合理,居住空间和活动空间要分离,卫生间要干湿分离,美观的同时保证舒适性。
设计师依据业主喜好、人员结构、风格及现有的空间、采光进行针对性的规划设计,将古典与简约进行融合,展现出精致且娴静的生活气息。
空间改造
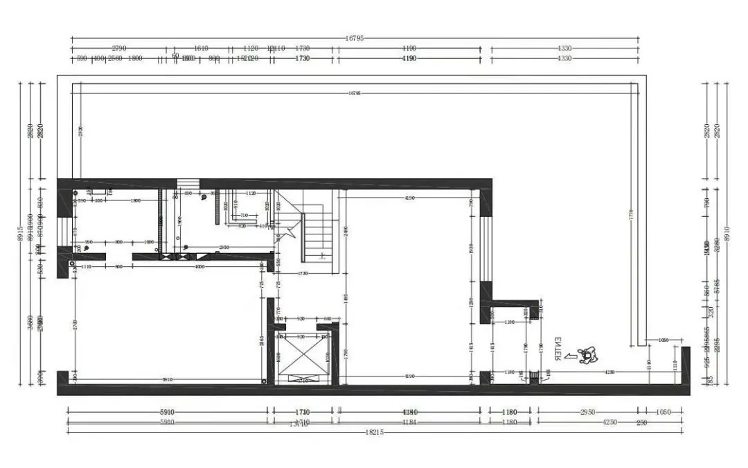
原始结构缺点:改造前厨房和餐厅面积很小,卫生间也比较拥挤。
改造方案:
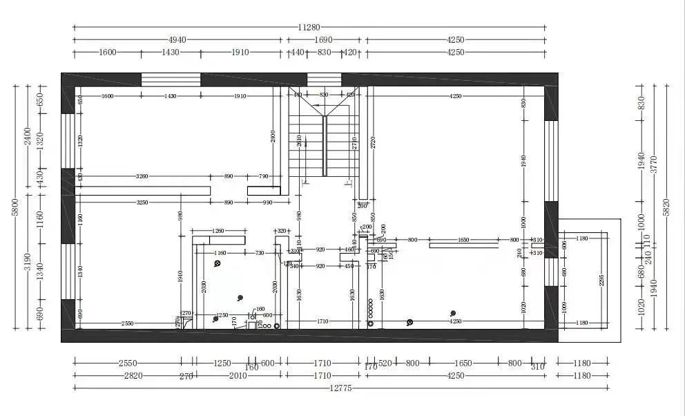
1. 设计师考虑到业主是三代人同住,需要较大的就餐空间,就将二层左边区域的隔断打通,扩大了用餐区域,方便了家庭聚餐。
2. 将四层主卫的洗漱台和淋浴间分至两个区域,避免拥挤,还提高了空间利用率。
原始平面图:
▼顺序依次为一层、二层、三层、四层
<< 滑动查看下一张图片 >>
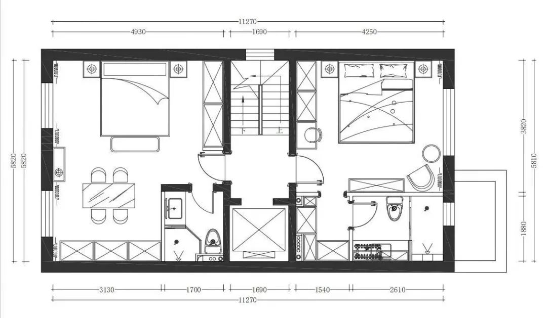
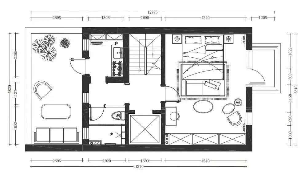
改造后平面图:
▼顺序依次为一层、二层、三层、四层
<< 滑动查看下一张图片 >>
01客厅 Living room
一楼客厅整体造型简洁大气,天花造型增加一些欧式线条,沙发背景采用整副油画风景作为装饰,让空间氛围非常雅致。空间墙体采用简化的欧式墙板,既有欧式的元素,又有简约的气质,与整体造型相呼应。
02 餐厅 Dining room
二楼餐厅空间与整体的设计风格统一,吊顶的石膏线灯花造型与圆桌相互呼应,为空间带来几何美感,搭配皮质的座椅提升品质感,整个用餐环境大气、舒适。业主要求有宽敞的用餐空间,可容纳一家五口人同时就餐,设计师就为他们选择了直径为 1.5 米的大圆桌,满足了业主的需求,也节约了空间,佳肴美味丰盛,一家人其乐融融。
悠然的下午,自然光隔着落地窗溜了进来,伴着浅浅花香,沏上一壶茶,捧上一册书,这惬意的生活就足够美好。
03 厨房 Kitchen
开放式厨房不仅增加了空间利用率,视觉上更加开阔,使得各空间的动线更为合理,还拥有优质采光,极大范围地利用了自然光线。饭菜喷香流溢,阳光丰沛鲜盈,幸福感也在不断增强。
04 主卧 Bedroom
主卧暖灰色为空间主调,三分格式的床头背景庄重经典,床头硬包配合铜色金属条让空间更加精致,女主人特别喜欢这种格调。玉兰花窗帘幽静素雅,这古典与简约的结合,生活精致也超凡脱俗。
05女儿房
Daughter’s room
牡丹壁画,素净窗帘,将软式主题融入空间,少女心展现的淋漓尽致。花瓶中插上一捧小雏菊,为整个房间增添了勃勃生机。静坐窗边,沁著茶香,光影若影若现,品味慢节奏,感受好时光。
设计师档案
梁鸿亮
Boloni
博洛尼特级主任设计师
工作年限:13 年
设计理念:用心体会每一个空间的不凡之处,体会每一位客户对生活的细致感悟,坚持美的理念,创造出非凡的亲心之作。
代表作:永泰喜来登酒店璟泰公馆中餐厅/莱茵山联排别墅/丽斯花园别墅/泷悦长安联排别墅/正东大厦康宅/光大水墨杨宅/长河湾/远洋新干线等
客服
消息
收藏
下载
最近






















