查看完整案例


收藏

下载
花看半开,酒饮微醺。万里蹀躞,以梦为归。日子,要和懂你的人一起过,才算值得。
项目名称:鹿港嘉苑
面积:150㎡
风格:现代简约
设计师:谢岳
本案业主在银行上班,希望家中简洁大方、轻奢时尚。要求室内储藏空间多,书房有足够空间陈列书籍,厨房能够满足不同烹饪方式需求,阳台要满足洗衣、晾衣和休闲的功能,比较注重生活的实用性。
设计师考虑到业主的需求后,对原始结构进行重新规划。
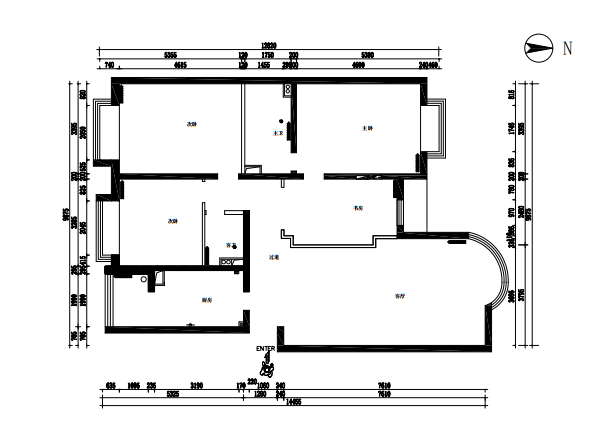
原始结构改造
原始平面图
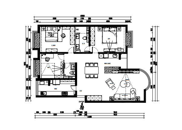
平面布置图
1 原始结构为四室两厅,考虑到一家三口居住,设计师将原书房改造为西厨,中西两厨满足女主人不同烹饪方式的需求。
2 将西厨与客厅整体打通,增加视野的通透性。
3 将小窗外拓,改造成晾衣房,功能分区,让生活更加便捷。
01 客厅
Living room
客厅进门处是中空的玄关柜,客厅与门厅用整块的岩板作为分割,高级却不浮夸。沙发背景墙采用简洁的石膏线条装饰,整面刷漆,整体效果简洁明快。石膏板侧贴装饰的吊顶线条简单流畅,四周的筒灯与磁吸灯设计,光线上相辅相成,尽显大气。客厅整体采用不对称设计,延展舒适,给人柔和优雅的气质。
02 厨房 Kitchen room
客厅后面是西厨空间,客厅、西厨整体动线流畅,让整体空间更显层次感。中西厨两厨设计,满足女主人的不同烹饪方式需求。
当日落跌进迢迢星野,人间忽晚,忙碌了一整天,为日子加点蜜,感受女主人温度,对生活一往情深,专为一家人洗手作羹汤。
03 餐厅
Dining room
餐厅连着西厨,设计师从整体性去规划空间,繁华之外,幸存一份对空间的享有,营造诗意生活。从客厅荷叶灯造型到餐厅带有灵性的灯饰,装饰物丰富的变化,互相交织,共同使空间变得丰盈而迷人。
04书房
Study
书房设计满足业主要求,采用壁床设计,既可以作为临时客房,又能够满足平时业主读书办公的需求。
设计师在房屋装饰中,给业主营造简单又时尚的设计美感,现代色彩的轻奢风格,简洁而不随意。
05主卧
Bedroom
主卧延续客厅风格,采用不对称设计,格栅墙板加硬包,柜子采用无拉手设计,平面感觉更整体,凸显高级感。
整体配色比较简单,整面浅色的床头背景墙,简简单单、干干净净,温馨而不失时尚。
06儿童房
Children
这是一个 8 岁男孩的主空间,设计师采用书桌靠衣柜设计,增加视觉的延伸感,黄色、蓝色整体空间采用跳色处理。
床头软包,石膏线造型,多了一丝浪漫,整体色调干净,在私密舒适的同时,拥有了更多的情感体验。
设计师档案
谢岳
Boloni
国家注册高级室内设计师
别墅设计专家
中国室内高级建筑师
获奖:
2010 北京青年报家居设计优秀案例
2010 瑞丽家居刊登多套作品
2011 多乐士杯设计大赛“最佳创意”奖,多乐士杯“最佳色彩”奖
2014 第一届美标梦想浴室设计大赛最佳空间设计奖
2017 华鼎奖银奖
2019 国际环艺创新设计作品大赛(会所类)金奖、以及住宅类银奖
2019 年度设计公益精英人物
设计理念:
我的设计始终是在控制与失控的零界点,平衡奢华与舒适,实用与梦想
代表作品:
天际高尔夫、香醍漫步、西山华府、天兆家园、中海城、远洋东方公馆,上林世家,爱这城,朝阳嘉园,珠江帝景,乐成国际,远洋国际,珠江罗马嘉园,希格玛公寓,阳光上东,中海瓦尔登湖,红橡树,禧瑞墅,阳光假日花园别墅等。
客服
消息
收藏
下载
最近




















