查看完整案例


收藏

下载
外面的世界欣欣向荣,异常之快。家里的氛围清清爽爽,安静优雅。你在外为小家努力,我在小家培育未来。有些东西、有些事,适合自己最重要。
项目名称:世华龙樾
面积:150㎡
风格:现代简约
设计师:丁蕊
该小区位于海淀区清河商圈,三口之家,男业主是 IT 高端技术人员,女业主因为孩子教育问题全心培养孩子。
业主喜欢安静优雅的环境,并且喜欢冷淡一点的色调,不喜欢喧闹和暖色系,功能上更偏重于收纳和动线合理性。
设计师针对业主的喜好和需求点,一是从格局上做了三处改造,调整动线;二是整体风格以极简的现代简约为主,主体色调选择的是浮雕新黑橡+奶油灰颜色,跳色主要体现在灯具、窗帘、餐椅的局部颜色选配上。
— 本案亮点 —
▲ 原始户型图
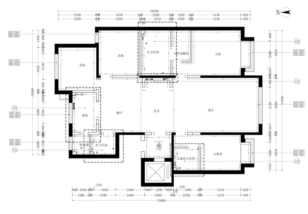
▲ 改造后平面图
空间改造
1、门厅增加了两侧入户门的玄关鞋帽柜,解决了进门的衣物、鞋子、钥匙、包包和雨伞等物品的储物功能。
2、将厨房封闭,把储物空间与卫生间的墙打通,扩大了次卫生间的空间。
3、主卧原始结构一进门,衣帽间的墙对着门,拥挤且进出不便,要先关主卧门才能进衣帽间,改造后的主卧空间动线更合理。
客厅 LivingRoom
因其他空间足够大,客厅没有考虑储物,主要就是家庭聚在一起休闲娱乐,以及展示家里大气的主要场所。窗帘用对缝添加绿色,跟窗外的树木衔接并作空间跳色,安静中也不会显闷。
餐厅 DiningRoom
餐厅的宽幅很大,因此增加了两侧的餐边柜,一边操作,另一边主要展示和储存红酒等物品。
厨房 Kitchen
厨房在北边,墨尔本定制橱柜,白色主体加灰色地面和黑色台面,黑白灰的搭配,富有层次感。考虑到烤箱味道的问题,因此把烤箱放置到了厨房而不是外边的西厨,可 2-3 人同时操作,美观又舒适。
卧室 Bedroom
主卫生间的动线和布置做了重新的规划和演绎,淋浴屏把整个湿区隔开,浴缸和淋浴在一起,动线更合理。双台盆设计,男女主人互不影响,吊顶增加氛围灯光源,活跃空间。书房 Study
书房也在北侧,整体安静的基础上加上两块红色的跳色,与室外的绿树成荫形成对比,相得益彰,琴棋书画一应俱全,收纳储物无所不有。
设计师档案
丁蕊
Boloni
高级主任设计师
教育背景:毕业于东北林业大学
进修院校:清华美院
设计资质:中国室内装饰协会注册设计师、中国建筑装饰协会高级室内设计师
代表作品:世华龙樾、上林世家、枫丹丽舍、双清苑、叠翠庭院、紫禁壹号院、泷悦长安、润泽公馆、福熙大道、阿凯迪亚庄园
擅长风格:现代简约、现代轻奢、新中式、简欧轻奢
设计理念:设计可以提高生活品质,让生活变得更加便利,使身心更加放松愉悦。通过空间、功能、灯光、材质、色彩等的完美配合,创造适合的人居环境。
客服
消息
收藏
下载
最近



















