查看完整案例


收藏

下载
△ 地址:陕西省西安市莲湖区丰庆路中段丰庆苑小区3楼
本案屋主喜欢
灰白色调
的现代简约风格,简单线条勾勒足矣。对于设计的要求,就是有尽可能多的储物柜和书柜,将空间利用最大化。因为随着生活的变化,要为未来的各种可能性预留足够的储物空间。
于是,设计师为屋主设计了好几个超大储物柜,甚至可以说,没有超大储物柜,就没有玄关。我们一起来看看吧!
房屋布局
— House layout
【面积】:140m²
【户型】:3室2厅2卫
【风格】:现代简约
【设计】:生活家装饰
【装修预算】:30W
户型改造
— House modification
△ 一楼户型图
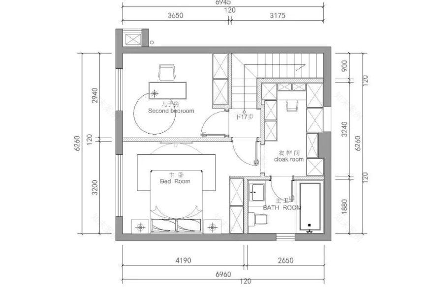
△ 二楼户型图
△ 玄关改造户型图(一排通天柜隔开了玄关和厨房)
原格局的入户区域与现厨房区之间没有隔断,也就是说没有单独的玄关空间。于是设计师安设了一排玄关柜,增加储物空间的同时,也隔出了独立的玄关,更使得客厅、餐厅、厨房三个空间的格局清晰许多。
客厅以现代感为基调,使用了无主灯的设计,采用灰白色调的墙面,硬朗又简单。为了满足屋主想要更多储物空间的需求,设计师将电视墙直接做成了一面超大柜子,储物功能升级。透过透明的玻璃柜门看见书籍整齐地摆放在柜内,方便日常看的时候拿取,美观又实用。
为了搭配电视背景墙,天花板上还做了黑色线灯的处理,看起来整个空间不会呆板,让空间的层次感和质感油然而生。
电视柜的上方墙内,藏着一个电动投影幕布,想看电影的时候就徐徐放下幕布,幸福感猛增。
餐厅舍弃了一般的餐边柜形式,依旧采用了一面顶天立地的柜子,既增大了储存空间也代替了餐边柜的功能,与屋主喜欢的简约轻奢的质感契合。
设计师在楼梯踏步的位置增加了一些感应灯,让屋主及家人在上下楼时,不会因为光线的原因看不清,避免意外,确保居家安全性,也为楼梯增加了美感。
在这个家中,设计师可谓是把安设储物柜做到了极致。步入卧室,映入眼帘的又是一个高大的柜体。由于家中已经有衣帽间,所以卧室的柜子并不是作为衣柜来使用,而是展示和收纳小物件。
玻璃的柜门搭配灯光带,让整个柜体显得通透大气,即使柜门高大也不会逼仄。
关于生活家
生活家装饰,是一家集设计、施工、家具、软装等为一体的整体家居企业,成立于
2010
年
12
月
。经过将近
10
年
的奋斗,生活家品牌已经覆盖北京、成都、重庆、武汉、南京、长沙、西安等全国
26
个
一二线城市,累计服务超过
20
万
客户。公司拥有超过
8
万
平方米的仓储面积,超过
12
万
平方米的实景展示面积,天猫商城
10
大品牌商家之一,国内家装品牌综合实力
排名前三
的企业。
西安生活家从
2012
年入驻西安,致力于为客户解决全屋家居问题,如今已经服务了超过
5000
户
家庭,装修服务和品牌质量更是受到多位业主的高度赞誉。其中大众点评
5
星好评度
9
5
%
以上,天猫平台
5
星好评更是高达
99%
。
Email
客服
消息
收藏
下载
最近






















