查看完整案例


收藏

下载
泡温泉已经成为现代精英人群
普遍欢迎的休假方式
尤其置身于有地域特色的温泉客栈中
更是别有一种赏心悦目的体验
今日分享
民宿温泉客栈设计
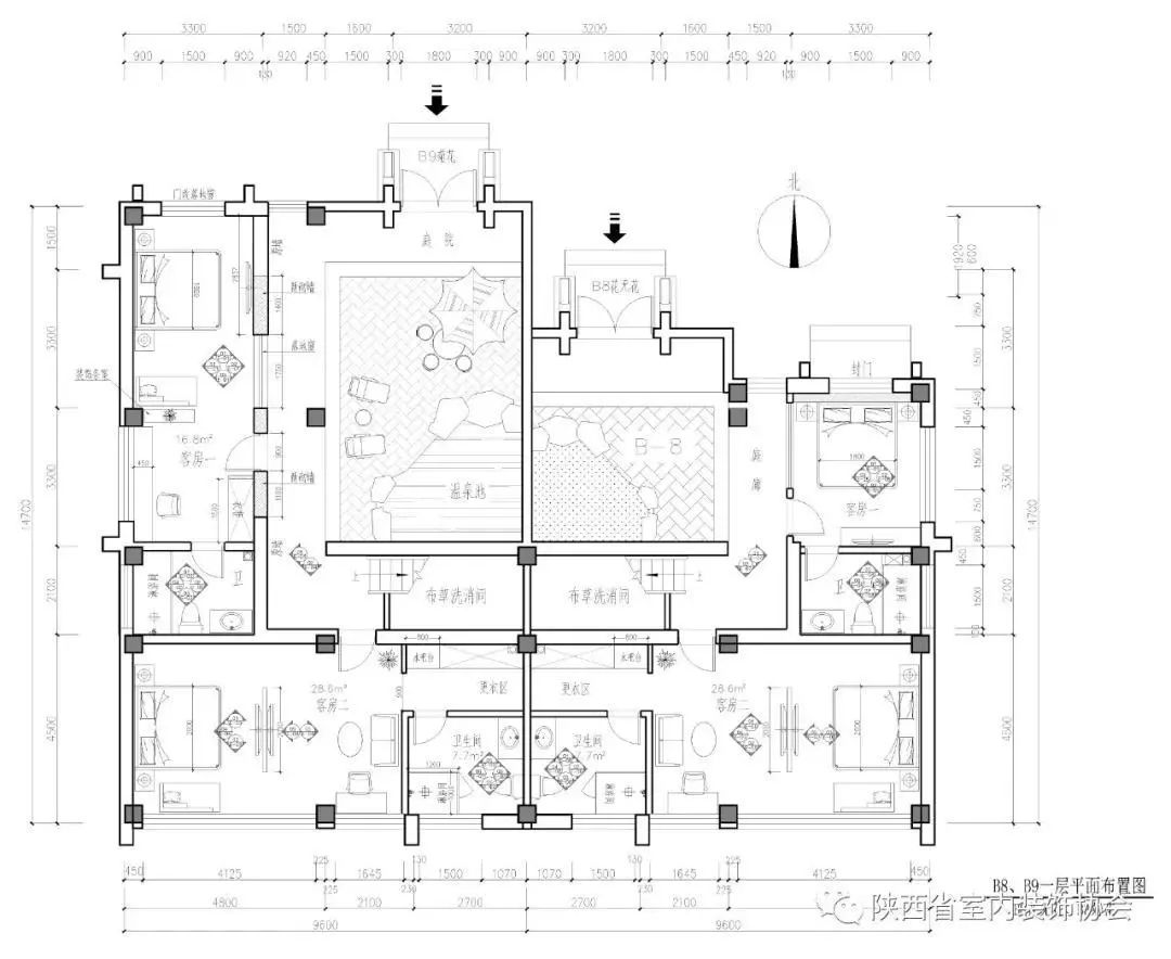
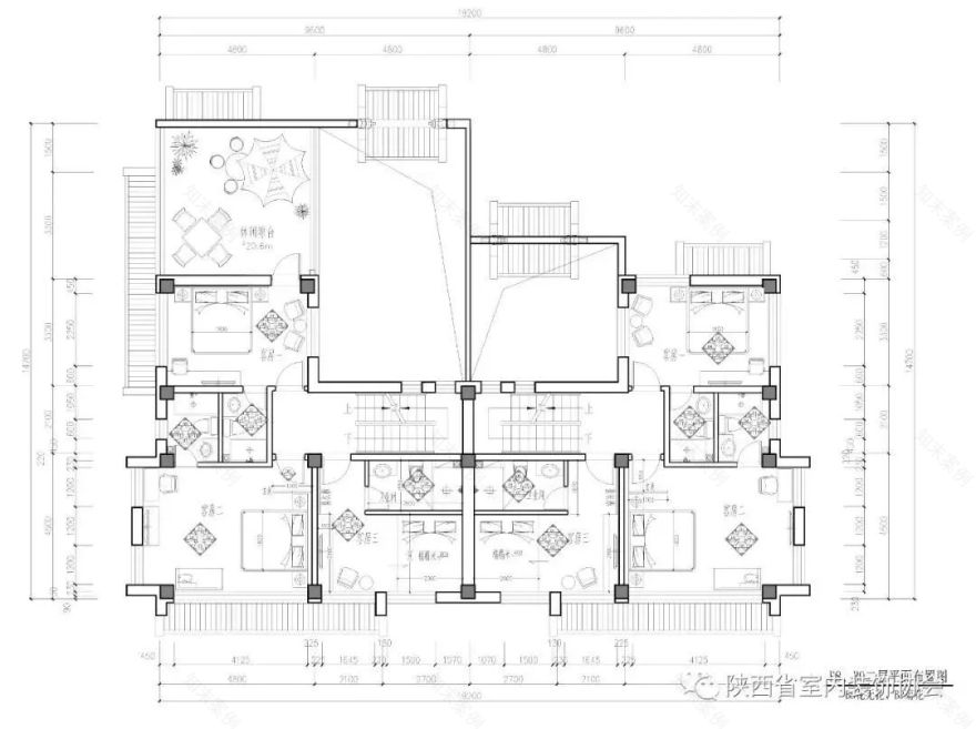
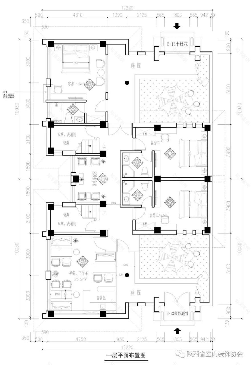
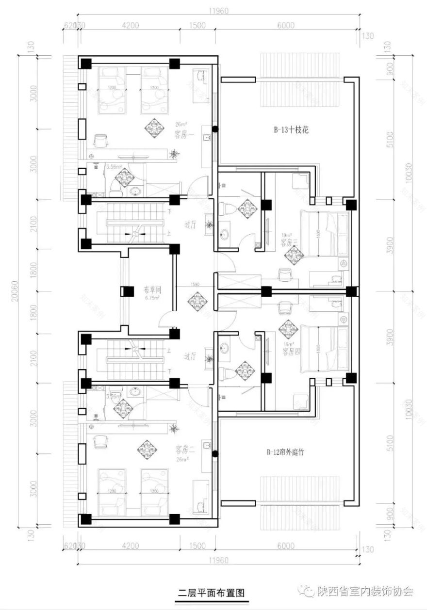
效果图及部分施工图:
设计说明:
本案位于陕西洛南县,综合体别墅区6栋,规划为民宿温泉客栈,面积约为1800平米。整体风格清新雅致,民风意浓别具一格,用现代的工艺手法阐述本土文化;置身于此赏心悦目、卸去杂念、自然朴实。打造为商业、旅游、文化、休闲度假的好去处。
“老板电器杯”陕西省第十届室内设计大赛获奖作品
作品类别:公共空间方案类
获奖奖项:铜 奖
项目名称:陕西洛南华阳老街花溪弄民宿项目室内设计
设计团队:杨 丽
参赛单位:乐天设计工作室
项目时间:2017年5月至2017年11月
项目地点:陕西商洛市洛南县
项目面积:1800㎡
主创设计师 杨 丽
参赛图版
大赛简介
陕西省室内设计大赛是陕西室内装饰协会常设的一项专业性设计大赛,是陕西省室内装饰行业的最具有权威性、专业性和影响力的设计大赛,受到了全行业高度关注和社会各界广泛参与。大赛在推出设计新锐和精英、扩大设计团队及个人的公众认知度、加强“设计创新”等方面获得极大的社会影响;获奖团队和个人作品带来“设计驱动”,在创意设计、室内装饰、关联产业等领域取得了显著成效。该赛事进一步提高了我省室内设计水平,推动了全行业和相关产业的创新发展。
2018年陕西省第十届室内设计大赛,由“老板电器”独家冠名赞助。
陕西省室内装饰协会家装专业委员会
地址:大明宫建材家居·钻石店
- END
-
客服
消息
收藏
下载
最近






















