查看完整案例

收藏

下载

翻译
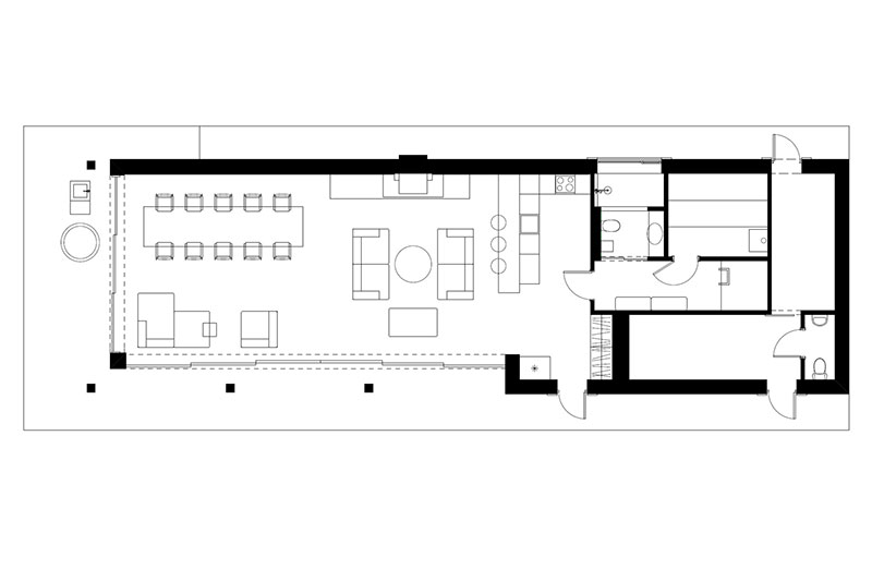
This year turned out to be quite fruitful for ourdesign studio– we have submitted threeprojectsfor theInterior of the Yearcontest. Today we want to share the home that won one of the awards last year. This is a guest house with a swimming pool near Kyiv, designed byForm Bureau. The house is an addition to the main one, and serves as an excellent place for receiving guests and organizing family holidays. Such a stylish and comfortable modern design!See more:Wooden cottage with Scandinavian feel in Kyiv
客服
消息
收藏
下载
最近


















