查看完整案例


收藏

下载
一围合院
纯粹生活家
住宅应该是人们灵魂的依靠,绝不会满足于商品的属性,而我们现在很多居住环境既没有丰富的多样性也没有对居住的渴望和梦想。
哈尔滨中海合院,中式合院别墅,前庭后院,自成一脉。本案建筑面积
415㎡
,结构分为地下一层,地上三层,可满足三代同堂的居住需求,整个室内功能丰富,
以人为本
,承载了中国家庭的一种
生活志趣和惬意居家
。
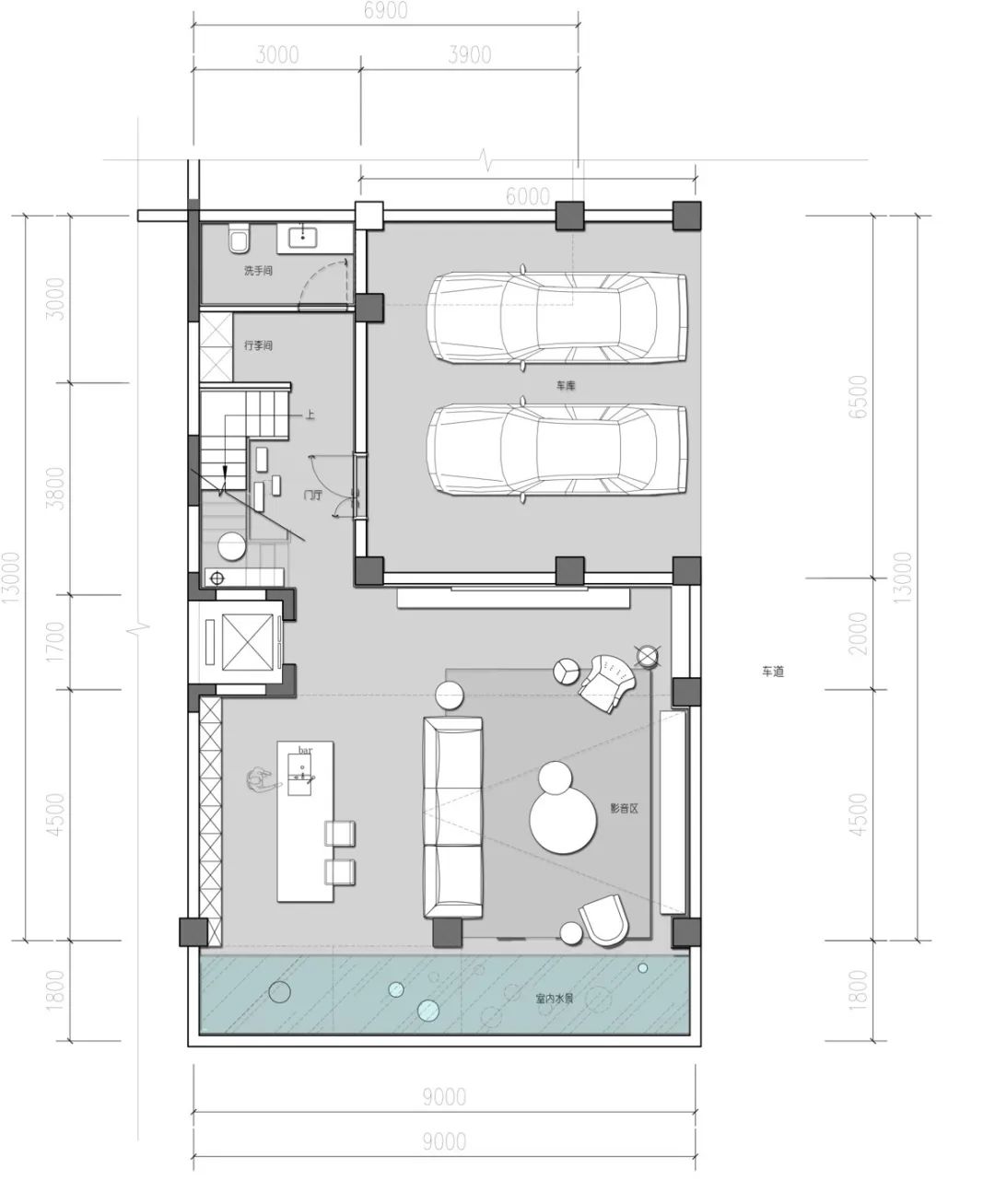
01
休闲娱乐的多元平台 | 社交空间
一侧采光井的开辟,将负一层的光感激活,阳光或月色,均可挥洒空间。5.5m的挑空增加夹层设计,极大地丰富了地下空间的功能性表达。大面积的酒柜通过异形的结构处理与夹层相接,成为视觉的中心点,创意的展现为社交空间带来
趣味和活力
。
夹层展示架为主人的收藏提供了恰当的空间,储物间隐身于夹层入口墙体之内。采光井下设计了一水池,一侧幕墙制造水景,光线通过水的折射漫散,墅居生活的
悠然与舒适
不言而喻。
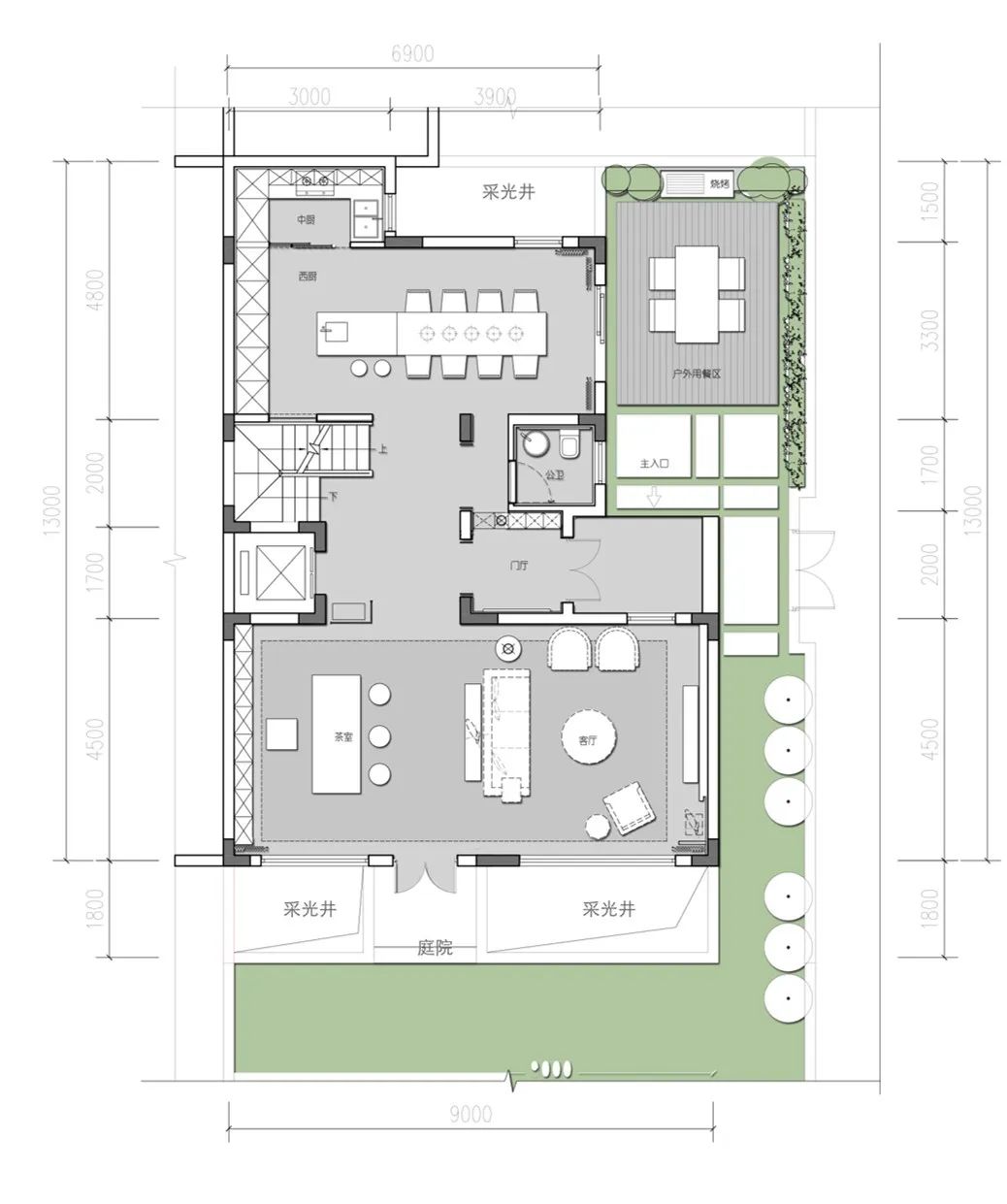
02
家庭生活的温馨共享 | 家庭空间
客餐厅的
方正布局
和
朗阔尺度
,包含了品茶区、备餐区、用餐区、休闲区,一家人的大部分时光会在这一层共享,会客起居,动静分离互不打扰。
茶室与客厅融为一体,摒弃了寻常的客厅搭配,以一种较为
庄重
的形式体现。圆餐桌是中国家庭更青睐的形体,大理石的台面显得
冷静而高雅
。优质石材的天然纹理与素色的简练界面,勾勒出空间营造的主要脉络。通过简化的布局、色彩、线条,让居者感知内心中真实的需求。水晶、布艺、金属材质互相交织,呈现
现代时尚观感
。
书房置于二层,半开放式的布局让空间兼具隐蔽性与流动性,室内的视野和光线俱佳,家人们的阅书写字可平心静气,不被干扰。
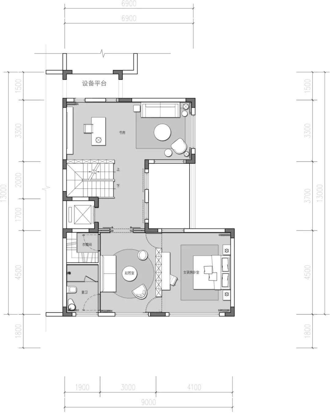
03
构筑情境的轻松愉悦 | 休憩空间
休憩空间设计基于对使用者的洞察,让居住的每一个主人翁融入到空间氛围中,唤起家人对
愉悦生活的热情
。卧室皆为带衣帽间、卫生间的全套房设计。
女孩房完全不是小空间的局限表达,开间可达7米,
奢阔的尺度
能够充分地营造一个
愉悦与趣味的童话梦境
。浅粉、深蓝、明黄、雪白……温柔的地诉说着空间的柔软氛围。温柔的织物、多样的家具造型为孩子创造一个
友好舒适的环境
,让成长
充满色彩
,
不失趣味
,更饱含
自由与纯真
。
三层为顶层布置主人房,另一端为露台观景平台,私密性舒适性俱佳。主卧
色调清雅
,白灰色、孔雀蓝、深沉棕浓淡相宜。主卧
无主灯设计
,细节灯具局部照明,渲染温和气氛,雅致的挂画和红枝花器再增添几分暖意,素雅与和谐自然衔接,使生活的实用性和对艺术文化的追求同时得到了满足。
对设计师而言,让空间自然打动人,引发人们对于
美好生活的畅想
,是设计的灵魂所在和最终价值体现。
负一层平面图
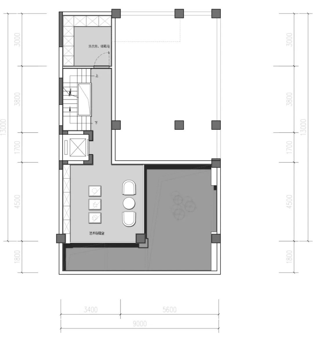
夹层平面图
一层平面图
二层平面图
三层平面图
项目名称:哈尔滨中海合院
项目地点:黑龙江·哈尔滨
设计面积:415平方米
室内设计:李益中空间设计
软装设计:李益中空间设计
设计团队:李益中、范宜华、熊灿、刘晓红、俞常青
项目摄影:大斌
经典回顾
新作|1338㎡世茂西山龙胤临泉样板间
极致惊艳红,越复古才越高级!
现代精致别墅,开启惬意精致的一天
近境制作唐忠汉新作——270㎡大平层私宅
复古灰+高贵蓝 ,别具一格的设计格调
吴文粒新作——极致东方情韵
顶级别墅,满足你对奢华生活的所有想象!
160㎡简奢之美
近境唐忠汉新作
这样的顶级设计帅极了!满满的高级感
贝克汉姆斥资1.7亿买的超级豪宅曝光!!!
中国设计界的后浪来了!
耗资15亿美元,全球独一无二的“吉他酒店”C位出道了!摇滚范儿十足~
156m² 精致简约现代别墅
珠海奢华别墅!这才是真正的「酒店级」豪宅
金茂府—当代美学,历史文化中探寻空间意蕴
106m² 时髦艺术之家,令人心醉的优雅气
YANG杨邦胜2020酒店设计新作 | 南京凯宾斯基酒店
精彩生活 | 源于设计
回复数字“
1
” 或 "
福利
" 有惊喜
点个关注.证明我曾来过
点击“阅读原文”有惊喜
客服
消息
收藏
下载
最近











































