查看完整案例


收藏

下载
简约的设计风格中融入了日式元素。
空间在立面造型上做到墙地一体,简洁的平顶、干净利落的立面形成素美简约的内部整体空间。
Name | 项目名称:弘阳小别
Area | 项目面积:别墅 210㎡
Style | 设计风格:日式风格
Interior Design | 室内设计:崔强 DESIGN
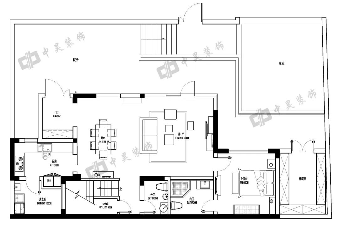
▲一层平面布置图
▲二
层平面布置
图
本
案的设计风格为日式风格,
日式设计风格讲究空间的流动与分隔,流动则为一室,分隔则分几个功
能空间,空间中总能让人静静地思考,禅意无穷。
全屋以白色和大面积浅灰艺术涂料奠定了日
式简约的基调,大面积的留白空间让视觉放松下来,原木色家具朴实无华,自然纯朴,还原空间真实美感。
▲客餐厅效果图
▲卧室效果图
▲卧室效果图
▲卧室效果图
设计师的设计完美结合了弘阳小别独特的地处优势,日式风格特别能与大自然融为一体,借用外在自然景色,为室内带来无限生机,选用材料上也特别注重自然质感,以便与大自然亲切交流,其乐融融。
设计师/简介
本文由“壹伴编辑器”提供技术支持
崔强 :
W.爲空間 董事合夥人
进修学习:
中国建筑装饰协会高级室内建筑师、IAI/CIID会员、中国装饰协会会员
设计理念:
设计本身是技术与艺术的结合,
当从行业本身角度分析,设计是定位,是解决问题,
给业主一个定位准确的设计,就是一个好的设计。
- End -
●
崔琪 DESIGN | 时光倒影 自然雅韵
●
许钰 DESIGN | 蠡湖瑞仕花园247户型专题解析
●
丛一 DESIGN | 实景《光影》
●
吴悠 DESIGN | 摩登现代美式
感恩阅读 随喜分享
戳原文,更有料!
客服
消息
收藏
下载
最近














