查看完整案例


收藏

下载
独立住宅, 西雅图, 美国
建筑师:Hybrid
面积:6600 ft²
项目年份:2020
摄影师: Rafael Soldi
设计团队:Robert Humble
项目设计:Thomas Gesslin
室内设计:Alex Herbig
施工方:Hybrid Assembly
厨房设计:Akkarawin Valinluck
景观设计:Glenn Takagi
工程师:Malsam Trang
City:西雅图
Country:美国
耐候钢外层,通透和良好的隐私性是真正的宜居的联排别墅不可或缺的部分。在这个复杂的商业地段上有一栋残破失修的单层建筑。业主与西雅图的建筑公司Hybrid合作制定了一项重新开发的计划以挖掘该地块的巨大潜力。最终的方案要求建造四个宽敞的房屋,每个房屋都有灵活的空间布局方便作为起居室或出租空间。不像普通的联排别墅,住宅使用了鲜明的耐候钢外观,底层材料则和毗邻的咖啡厅形成统一,使这些房屋不仅脱颖而出,同时和谐的存在于街道和社区内。除了灵活的空间外,每间住宅还拥有一个私人庭院,挑高的天花板,充足的光线以及宽敞的封闭式屋顶花园或天窗。
西雅图正在经历城市逃离,越来越多的城市居民被郊区的许多生活元素所吸引,例如前廊后院,更宽敞的房间和光线。设计团队希望能在城市环境中也可以实现这些元素。西雅图钢构小屋将许多城市中缺少的郊区生活元素容纳进来,让住户留在他们打拼的城市,成为城市中活力的一部分。成本问题同时也是需要考虑的问题–中产阶级的可负担成本和他们的生活所需。钢构小屋说明了在如今的住房市场下也可以建造高性价比,为城市中的年轻人和专业人士提供一种新的选择,一种无需搬离他们热爱的城市,一个灵活的设计以适应长期居住的生活空间。
为了实现此项目,Hybrid采取了几项关键性的决策,这些举措也许比在房屋外部看到的耐候钢覆层更为明显。Hybrid部门负责人罗伯特·汉布尔(Robert Humble)表示:“我们喜欢使用诚实的材料,这些材料可以优雅地老化,并且与大多数西雅图的’Hardi Party' 风格形成鲜明对比。耐候钢不需要重新粉刷,并且反映了该地区的商业特征。”西雅图钢构小屋距Nucor钢铁厂仅0.8千米,钢铁厂是这里的历史和发展的印记。浪漫并扎根于工业。在Nucor,钢被回收利用并变成钢筋,在钢构小屋中,这些材料被转换成阁楼住宅,承载区域的文化与商业印记。
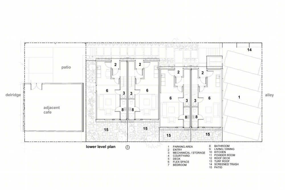
扩大的排水管被用来在屋顶集水,并将水管引到建筑物底部的植物种植区。种植区像一个花园被木制过道穿过进入前门。建筑内部,区别于传统的房屋布局,起居室被放置在房屋的顶部,以便获取充足的光线和开阔的视野,并可以轻松进入屋顶平台。朝南的窗墙将光线带入房屋,前两个单元和后两个单元交错排列,以使转角窗也拥有较好的视野。中层有两间卧室和一个大型共享浴室,底层的是“灵活空间”,可以用作AirBnB,家庭办公室或主卧室。带有护墙的屋顶创造了开放的空间同时保证了隐私性。室外的灯串形成了天台层虚拟的“天花板”。
首席建筑师罗伯特·汉布尔:“我们为我们对空间和材料的大胆实验感到自豪,西雅图没有其他联排别墅能像这样。底层的空间允许建筑物随着居住者需求的变化而随时间变化,从而解决了诸如住房负担能力和居住密度等问题。” 为重视设计和社区联系的人们精心设计的钢构小屋体现了Hybrid的雄心壮志:创造美丽的密度。通过与原始财产所有人合作,Hybrid为现有居民提供了获得房屋产权的途径。这是一个快速绅士化城市下美好的愿景。
译者:郭智淳
项目完工照片 | Finished Photos
设计师:Hybrid
分类:独立住宅
语言:简体中文
阅读原文
客服
消息
收藏
下载
最近




















