查看完整案例


收藏

下载
高中, Gällivare, 瑞典
建筑师:Liljewall
面积:23000 m²
项目年份:2020
摄影师: Anders Bobert, Anna Kristinsdóttir
主创设计师:Lars Olausson
室内设计师:Jonas Hermansson
市政工程师:Johan Lindkvist
建筑师:Veronica Sundqvist
客户:Gällivare kommun (Gällivare municipality)
工程师:Johan Lindqvist, civil engineer, Liljewall
景观设计:Marianne Hansson
主顾问:MAF Arkitektkontor
施工方:WSP Byggprojektering
电力设计、暖通设计、节能设计、环境建设:WSP Systems
声学设计:Tyréns
防火顾问:Brandskyddslaget
萨米艺术家:Monica Edmondson, Britta Marakatt-Labba, Anders Sunna
City:Gällivare
Country:瑞典
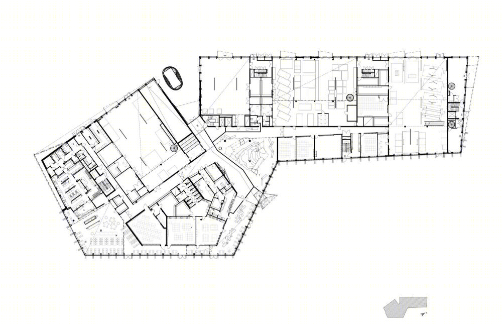
位于北极圈以北的耶利瓦勒 (Gallivare) 是一个正经历着独特转型的城市。由于矿业的发展,邻近地区马尔姆贝里耶 (Malmberget) 被迁移至此,两个中心面临合并的局面。通过与市民的对话以及与当地商业部门和其他利益相关方的交流,当地政府提出了打造“世界级北极小镇”的愿景。由Liljewall 建筑师事务所设计的“知识之家”项目为实现这一愿景做出了贡献。这座六层高的学校建筑以矿井和自然地形条件为灵感,作为地标,容纳了该地区的高中和成人教育中心,同时讲述着当地的记忆和文化。非对称的设计打破了建筑的尺度,并赋予它经久不衰、震撼人心的建筑特征。
设计的重点落在如何创造出一个既灵活又引人入胜的教育环境以适应未来的变化和发展需求。知识之家外形的独特性通过其内部和外部醒目的木质元素展现出来。建筑立面彰显了当地的设计传统,并为小镇注入了一种工匠精神。立面由胶合层积木和配有垂直木柱的玻璃幕墙构成,位于内部承重结构外围。每组木柱都有着不同的形状和切口,它们成对设置,形成多样的形态。
当行人路过这所学校时,会感知到一种变幻和韵律。从某些角度来看,学校坚固结实,而从另一些角度来看,则变得十分通透。学生、教职工和游客可经由一个黄铜饰面的迎客入口进入学校的核心空间。接着,一个宽敞的门厅印入眼帘,它有着令人难以置信的挑高,一处噼啪作响的壁炉和一组专属此地、与众不同的楼梯,可通向能欣赏到绝美山景的上层空间。楼梯被一层深色波纹钢包裹着,橡木块制成的台阶将其打破。楼梯在与底层地面衔接处化为阶梯状的座位,供学生们休闲聚会。
这里的大部分固定家具和一些可移动的家具都是为知识之家定制的。例如,一组定制座椅,它的设计灵感源自萨米艺术图样,而整个学校的设计也基于此。由胶合层积木制成的结实长凳具有重要的象征意义,与建筑的整体特征相呼应。三位精心选出的萨米艺术家也参与到项目的设计过程中,各自代表了萨米族文化不同的趣味方向。
他们分别是画家 Anders Sunna ,玻璃艺术家 Monica Edmondsson 和纺织艺术家 Britta Marakatt Labba 。其中的一件作品是融入外立面、延伸超过21米、印有环形萨米图案的大型混凝土浇筑物,另一件是入口大厅的采光井。重要的是,这些艺术作品最终与建筑完美交融,而非沦为建筑的附属品。
译者:熊赫男
项目完工照片 | Finished Photos
设计师:Liljewall
分类:高中
语言:简体中文
阅读原文
客服
消息
收藏
下载
最近











































