查看完整案例

收藏

下载
现代空间 Kamran Kerimov 新作,一个现代轻奢的公寓,面积是 141㎡,位于阿塞拜疆巴库。在空间设计的色彩配搭上,精准地把控节奏,用设计表达空间的包容性,更多的是通过人性化思考,创造一个功能性完整的生活空间。
该项目选择了混凝土、木材、玻璃和不锈钢作为主要材料,其主要目的是创造宁静的空间。混凝土墙和圆柱是工业设计风格的主要元素。在各个方面,总体上保持混凝土元素像装饰墙一样,混凝土与原木营造出漂亮的色彩对比氛围。
玄关以木色和灰色的搭配,整体设计无不透露着一种简洁大方,色泽搭配和谐自然,很是干净。
客厅用高级灰对空间进行主基调铺陈,是对空间本真之美的极致追求,打造现代生活范本,定制都市新贵格调,呈现专属于家的惬意。
白色大理石的电视背景墙与深木色收纳柜相遇,渗透引入柔和光线,赋予空间最妥帖的温度与共鸣。局部以绿色点缀,在清冷的空间中注入几笔生机,雅致而盎然,希望而美秀。
主卧室空间的铺叙看似平淡素雅,设计将思考的切面还原到居住,将生活的所有降回本质,由此映射出居住者日常的充实和情感的丰富。
次卧的背景墙选择了裸露水泥的做法,保持原本样貌,带着做旧的感觉看起来非常有个性。一排在型的衣柜,突出现代风格的独特美感,给人简洁、舒适的居家享受。
卫生间面积不大,进门左手边靠墙设置洗漱台,对门放置马桶,选择了壁挂式的设计,淋浴区的墙面还有壁龛设计,摆放一些洗浴用品,使用起来非常方便。
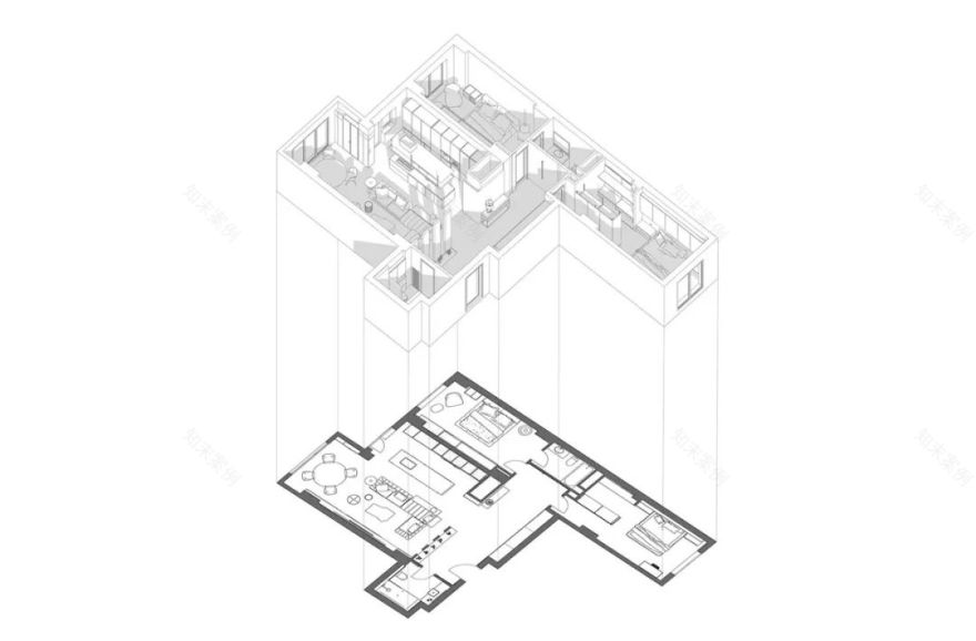
平面图▽
设计师 Kamran Kerimov
Kamran Kerimov,卡塔尔多哈
室内设计师以及可视化,与时俱进,考虑设计的所有最新趋势,感受灵感和创造性冲动,目标是创造让人的舒适空间,从工作中获得真正的快乐。
其他新作
NGDKEF
这个项目的面积是 115㎡,主要目的是保持空间清新,光线充足,通过建筑美学与材质质感显露出空间的优雅与张力,以减法设计概念,弃繁从简,以自然舒适的生活理念结合材料的颜色、质地和使用规模,从功能出发,赋予空间舒适的感受,让人不自觉沉醉其中流连忘返。
平面图▽
商务联络:13535331549
投稿:shejiyouxue2016
‘星标’:第一时间接收精选内容
近期热文:▽
设计师的 65㎡小宅,复古优雅!
她的 35㎡小家,独具品味!
59㎡小宅,简单平静!
62㎡现代小宅,太有腔调了!
2023 巴黎软装饰品展
↓↓↓
客服
消息
收藏
下载
最近














































































