查看完整案例


收藏

下载
由西向东鸟瞰项目
西班牙殖民艺术与庭院设计的融合
项目坐落于泰国巴蜀府著名的度假小镇——华欣(Hua Hin)。“La Casita”意为充满爱及温暖的家,建筑师采用“西班牙殖民时期建筑”与庭院设计的融合作为设计风格和理念,在华欣这著名的度假小镇,打造温馨的度假式住宅社区。
项目内的所有区域都通过泳池连接在一起
泳池上的小桥与景观亭细部。受西班牙殖民时期建筑和其花园小品的启发,拱门、下沉广场和花园的设计元素充满异域风情,以当代的设计语言重新诠释在项目中,更好地适应了泰国的热带气候以及当地的滨海生活方式。
拱门组成的长廊
社区户外用餐区
沿步道设置的水景。设计师还采用了耐盐、抗旱、抗风,能在海边茁壮生长的植物作为景观配植,来打造具有高品质的植物雕塑与树篱。
由东向西鸟瞰项目。
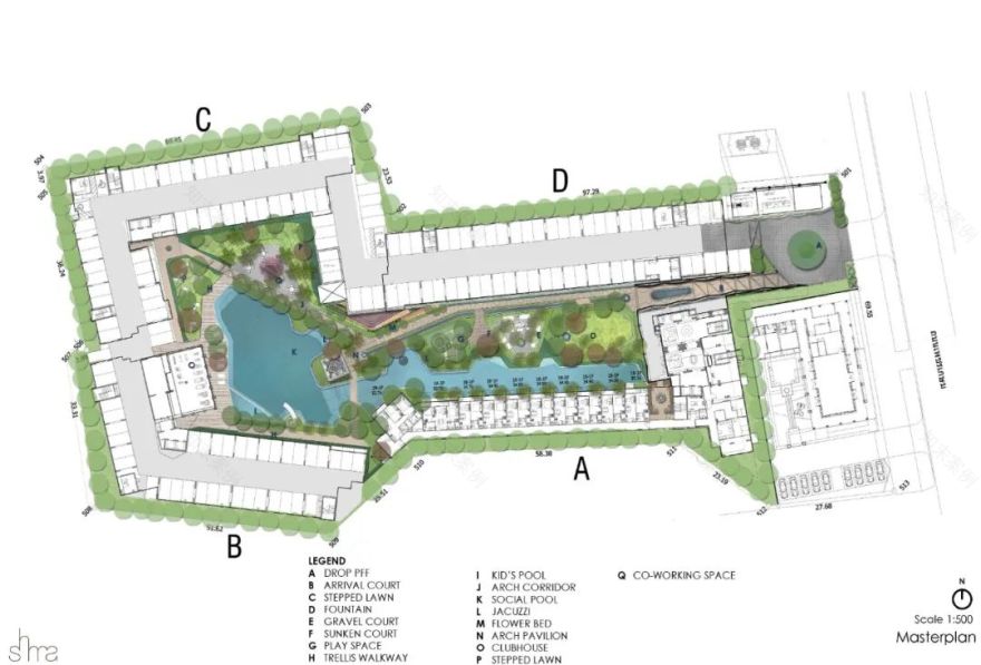
此项目有 5 个主要区域:广场、天堂花园、花墙、棕榈庭院以及泳池露台。
广场
La Casita 的迎宾广场以成列的拱门,打造出特色景墙,充满迎宾仪式感。上有攀藤植物,增加了浪漫氛围,广场铺装也模拟西班牙风格。
入口广场
拱券组成的小巷
景观墙图解
拱券组成的小巷
住宅区入口设有喷泉的半室外空间。进入主要景观区,空间豁然开朗,一片大型开放式绿地吸引着人们的注意力。绿地被周围的阶梯式座椅与茂盛的树木环绕,成为室外休闲玩耍的理想场所。
大草坪走向项目内部,以大面积的绿地空间链接主大堂。
天堂花园&花墙
以优美的花园作为休闲与游戏空间,且每个空间具有独特的区域亮点。用不同纹理和颜色的树篱使这花园充满西班牙气息。
以高高低低的多彩植物打造景观花墙。
花园中设有供人们聚会洽谈的小型庭院。细长的水景引导视线向场地内部延伸,引导人们走向底端的喷泉及景观小亭。
沿步道设置的水景。这里的下沉座位,可以让居民在遮阳的条件下畅享大自然的气息,获得充分的放松。
景观亭及景观桥
水渠尽端的景观亭与喷泉
景观亭顶棚细节
拱形亭图解
棕榈庭院
拱门连廊是此区主要的景观元素,且与内部的共享厨房及户外用餐区相连。
拱门组成的长廊
拱门组成的长廊
拱门连廊的特殊元素。该户外空间以棕榈树和砾石铺装作为亮点装饰。户外用餐区,设计简约的桌椅与吧台与周围自然景观融为一体。
户外用餐区
周末或节假日,人们可以集聚一堂,欢度聚会时光,共享美食。
棕榈庭院
设计简约的桌椅与吧台与周围自然景观融为一体。
泳池露台
社区内所有的区域都通过游泳池互相连接,泳池长百米。首层各住户单元更有私人的走道进入泳池。
公共泳池入口
项目内的所有区域都通过泳池连接在一起
景观亭及景观桥
泳池包含成人池及儿童池,並附有按摩池和滑梯。
泳池细节
泳池滑梯
在植栽配置中,于主要空间使用特殊外形的植物,增添西班牙风情。并选用适合沿海气候生长耐盐,耐风和耐旱的植物。
耐盐,耐风和耐旱的植物
滨海度假社区增强了人们的幸福感,异域风情的设计提升了社区格调。人们可以在自己的社区中,躺在躺椅上享受日光浴,或进行清爽的水中运动,获得度假般的居住感受。
La Casita 提供了舒适且活泼的空间氛围,让所有居民都能体验到充满温暖和乐趣的家。
充满温暖和乐趣的家
分析图
总平面
平面分区
整体流线分析
各区尺度
拱形亭位置
材料平面
功能分析
景观元素组成分析
配植平面
项目名称:La Casita Huahin
项目类别:住宅(公寓)
设计总监:Yossapon Boonsom
设计师:Worawe Jamsomboon, Pawida Bualert
园艺家:Tanee Sawasdee
工地经理:Anongnard Jungmongkolswad
项目摄影:Wison Tungthunya & W Workspace
位置:泰国华欣
设计年份:2017-2018
施工完成年份:2019
业主:Sansiri
感谢
Shma Company Limited
文章仅用于交流学习,欢迎分享给更多同行。平台
阅读推荐
元素的对白 | 曼谷 Quarter 39「阶梯」别墅景观
阳光灿烂的公园 | 郑州 万科.湖与城
END
客服
消息
收藏
下载
最近











































