查看完整案例


收藏

下载
社区
包含着人与人、
人与环境等元素的相互交融,是生活的缩影。而人们对生活的期许,也就自然而然地折射在社区之中。
在我们的思考中,人们对理想社区的憧憬是多样化的,不同的人群,表达出不同的想法。摒弃传统视角下的场景拼凑,充分从客户的心理需求出发,予以场景串联,才能形成完整的客户体验。
现在,就请随我们一起看看大家眼中理想的社区是什么样的吧~
⇩
我们希望可以静享归家之路,或与邻为友,延续社交的乐趣!
我们希望有一个大大的草坪和随时休息的空间,能够尽情享受阳光!
我们想有一个欢快的游乐场,
和小朋友们自在玩耍!
我需要一个全能健身区和有氧跑步道,让我释放运动活力。
我想给宠物们一个玩耍的空间,为陪伴留下更多美好记忆……
这么多美好的憧憬,在一个社区中,全部完美实现,那就是——
绿地象屿·德馨嘉苑
,一个绿色健康、邻里和谐、有温度的地方。
绿地象屿·德馨嘉苑
Huaqiao,Kunshan
构筑一个城市的理想生活港湾,让每一个理想的生活场景都变成现实。设计通过社区内各个场景的灵活组团,将建筑有机连接,让生活从心出发。满足一个家庭、不同年龄乃至不同人群爱好的生活所需,处处彰显和谐氛围。
设计思考
DESIGN THINKING
— —
只有关注人的成长,将这些元素有效的链接再一起,
才能构建出社区的理想生活场景。
项目位于花桥镇绿地大道与花园路交叉路口,毗邻上海国际汽车城。绿地凭借
得天独厚的区位优势,
在花桥塑
造一线城市相比肩的项目品质
,
绿地象屿·德馨嘉苑景观成本按实际施工完成测算虽然仅约375元/㎡,却完成了十分理想的绿化效果。
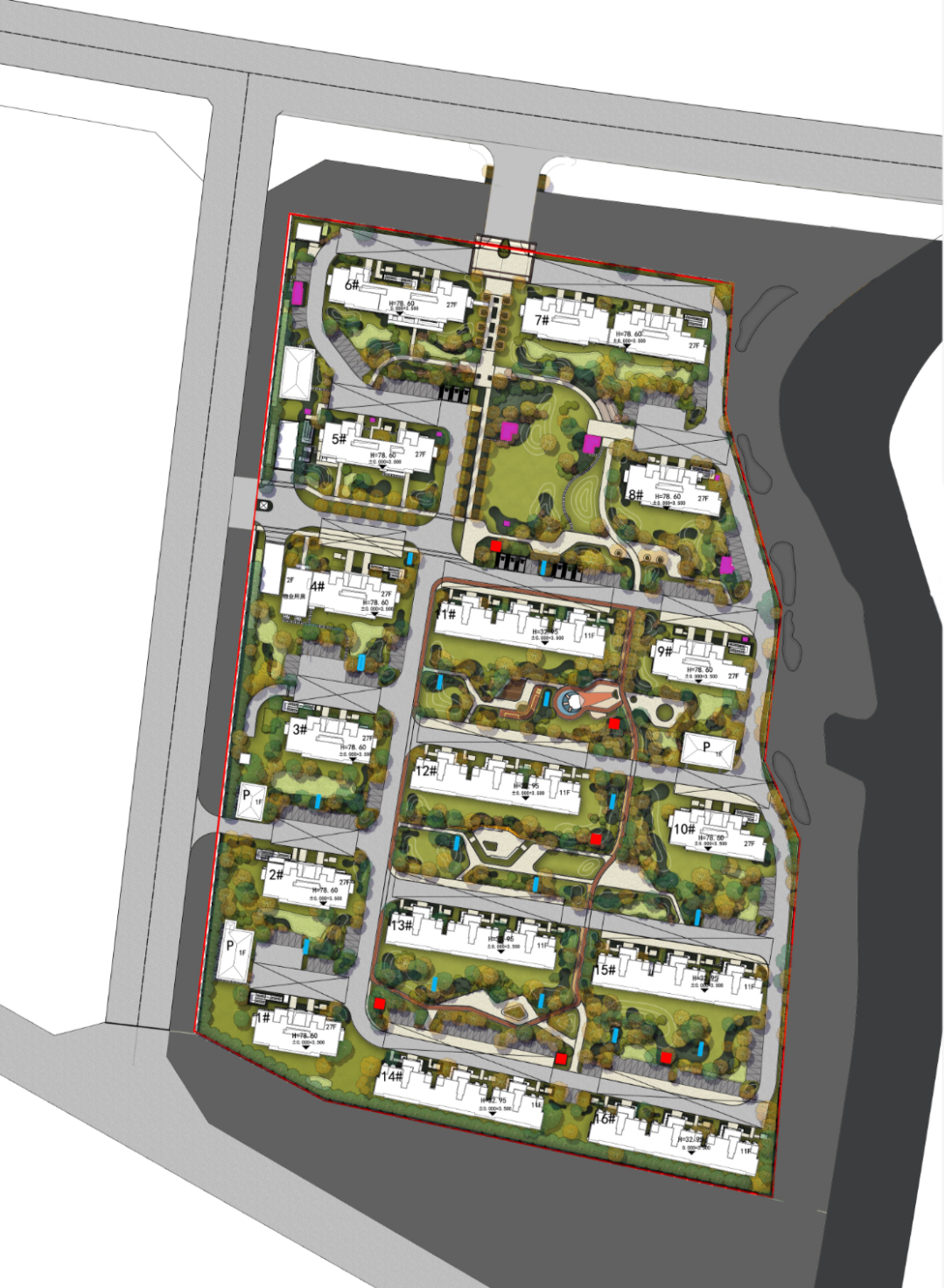
◆社区彩平效果图
项目地块与花桥镇的中央公园花溪公园仅一路之隔,因此,设计希望
把公园的脉络延续到社区之中,
从入口处的相互对应,到绿植的视线关系,再到整个社区的轴线关系,都将公园的气息贯穿和引导在人们的生活轴线中,南北贯通,串联起社区中的各个组团。
设计基于对建筑布局较为平均化的分析,
在规则的动线中,打造出不规则的退进关系,
使人居获得最大限度的舒适感。地块一侧流有一条自然河谷,是社区的天然屏障,设计将
社区内部沿河一侧放置较为静态的“时光花园”
,
在中间部分放置相对较动态的“悦动空间”和彩色乐跑步道
,
以
“
一轴两区、动静相宜
”
的脉络,展开一个家园的生活故事。
接下来,让我们一起去看看
在绿地象屿·德馨嘉苑
我们拥有着怎样的生活?
○
○
»
氧气活力圈
HEALTH RUNWAY
周边绿植环绕,脚踏彩色跑步道,这里是邻居哥哥最喜欢的跑步道了!
在这个氧气十足的运动空间里,看着他不断燃起的运动火苗,也让我们忍不住想要和健康的生活方式Say Hi!
一条闭合的健康跑道,串联起儿童乐园、成人健身、宠物空间几个动区。跑道设计的独特之处在于从功能上关心每一类人群,在靠近不同的活动区附近,贴近区域主题形成多样化的功能段,同时,在中途设有能量加油站,一个小小的花园让跑步的人们在运动中途也可稍作停留,也成为运动社交的一个重要节点。
○
○
»
儿童专属乐园
CHILDREN'S PLAYGROUND
跳沙坑、滑滑梯、坡地攀爬、荡秋千……
这是属于我的游乐场,一天中最欢乐时光,莫过于在此和小朋友们共同欢快的玩耍了!这些开心的时刻,让我享受着一部有声的动画,也让我拥有了一个彩色的童年。
设计让陪伴不仅仅是单一的陪同,更是可以共同享有的趣味时光,和孩子们共同编织成长的梦想。出于看护的考虑,设计将成人健身活动场地就设置在儿童活动区的一旁,同时勾连起两者的活动。
儿童乐园设置的“感官步道”、“微地形”,不仅能提升儿童感官体验和对视觉空间的认知,更提供了一个可以启迪他们去探索、激励潜能、坚定意志、解决疑惑、创造理想的空间,这里是“孩子们的小王国”。
在场地铺装的构思中,利用折线、圆环进行视线的拉伸和收缩,巧妙地运用空间布局和多彩的环境变化,使整个空间层次错落有序,
色彩的搭配绚丽而不乱,丰富而有序,让孩子们尽情探索整个世界,是设计最温柔的渗透,也是我们送给孩子们最好的礼物!
○
○
»
轻松健身场
FITNESS AREA
社区专为爱健身的人们打造的运动Space,在这里人们可以卸下疲惫,畅快身心。
爸爸也常在结束一天的繁忙工作后,在这里来一场酣畅淋漓的运动。我在一旁的游乐场看到他与可爱的邻居们互相监督打卡,还时常交流生活,分享美好。
最好的年纪塑造最好的自己,社区的运动氛围倡导着健康的生活方式,让人们关注成长,也让邻里在此相遇相知,重拾和睦温暖的人情味。
○
○
»
欢乐归家
COMMUNITY PORTAL
妈妈常说:“回家,就是最美的旅行。”
我们每一次归家,都像是开启一场特别的旅途。她会向我讲述不同的故事,而这里带给我的亲切感,仿佛每一个目的地,都有属于我们的家。
在绿地大道一侧的社区北入口,是链接花溪公园最直接的通道,代表着项目面向城市主干道的形象。延续花园的绿意,设计在宽阔的人行道两侧列植大乔,营造出序列、庄重的氛围,高大的社区门头强调出尊贵的仪式感,让每一次归家都与众不同。
○
○
»
林荫下的邂逅
FIREST ROAD
紧接着,我们穿越一条林荫大道。
我把它当做我的魔法森林,在这里看植物们神奇生长。而爸爸妈妈则喜欢偶尔小坐一番,和邻居们有说有笑地聊聊天,好像一天工作结束的疲惫都得到了释放。
社交可以无处不在,归家之路途径多个树池,是设计为人们提供的休憩空间,它们让这条路不仅仅具有交通功能,更是邻里间交流互动的悠闲场所。
不经意的时候,我们与浪漫不期而遇,林荫大道下的繁华与雅致,是社区给予人们归家路上的礼遇,也将人们引向核心的草坪空间,期待一番豁然开朗。
○
○
»
享受阳光
GRAND LAWN
这片大大的草坪,是我们所有人都热爱的乐园。爷爷奶奶喜欢在晨间晒太阳,我时常和小朋友们在草坪上和蜗牛们躲猫猫,还能看到邻居阿姨推着小宝宝悠闲散步……
它就像是一颗无瑕的琥珀,收藏着时间,也收藏着无尽的美好。
作为社区最主要的功能核心区,大量草坪和雨水花园的实际落地使用,不仅实现了设计之初“海绵城市”理念的落地,也让人们拥有着无限变化的视角,随着地形的起伏,绿植的密度和层次有着多重变化,令无论人们站在那个点,都看不到草坪的边界。
○
○
»
光影下的时光
GALLERY FRAME
听说,大自然是最伟大的造物者,无论是季节更迭,还是天气变幻,都会成就出不一样的风景。
是草坪一旁的休闲廊架,让我看到了生活中的无数种可能。清晨,我可以在这里朗读诗词;傍晚,爷爷奶奶们可以在此聊天下棋;晴天,我们能感受廊架下光影变幻的神奇魔力;突如其来的雨天,我们也可以躲在这期待风雨后的彩虹……
该功能性廊架选用最简单的钢木结构材料,不张扬但能够满足保障人们风雨无阻的功能。其体量在墙体的造型引导下有着一定的延续性,沿草坪北区形成一个整体化的背景,同时为一层的住户带来一定的隐私保护。
光与影,都是廊下的风景。设计十分注重光影关系带来的体验感,无论从结构的框架,还是石材的肌理角度来看,都形成了十分和谐的呼应,光与影的变化让场地多了几分动感,也让人们不知不觉间感受着与自然的互动。
另一处安静的阅读花园,既是人们怡然自得的休闲场所,也可在特殊时刻作为消防扑救场地使用。场地周边绿植以落叶树为主,夏天绿树成荫,冬天落叶阳光,轻松自然的氛围营造出现代生活的美好场景,也让时间成为我们最好的朋友。
○
○
»
萌宠欢乐场
PET SPACE
这个宠物乐园让社区里的小狗狗们也有了专属空间,养宠达人们享受着与宠物共度美好时光的同时,也可和邻居们一同分享养宠心得。
情绪层层浸染
,大家都收获了简单生活中的另一种欢乐……
这个稍微下沉且相对闭合的小场地,对宠物活动区域相对有所限制,从而避免对周边生活区域造成的影响。聚合性的交流空间,让狗狗们在主人的看护下一起玩耍,享受着一场欢乐的嘉年华。
设计细节
DESIGN DETAILS
— —
人性化角度出发 。
社区中不可忽略的,还有许多人性化的设计细节。让景观座椅融入自然,融入场地气质,例如种植池旁的座椅,就以完美的石材切割造型,配备木质板面而成,为人们提供随时可以在树荫下休息的场所,也让关怀无微不至。
结语
EPILOGUE
— —
设计在追求多维度全面发展
的道路上
从未停止过探索。
从人性化最深层次的需求考量出发,深度聚焦便捷畅达、邻里互动、社区空间等维度,关注健康、细节、家庭和社交,在指标和成本的限制条件下,仍在功能上实现了全民化社区的营造,诸个场景的完美呈现共同塑就了一个完整的理想社区!
绿地象屿·德馨嘉苑
,用家的温暖讲述着人们对生活的态度,品质与舒适相辅相成,愉悦的景观归家动线,不同的节点带来不同的空间感受,漫步的、观赏的、停留的,让每一寸土地都得到了善待。
PROJECT FILE
项目名称:绿地象屿·德馨嘉苑
项目地址:江苏,昆山
开 发 商 :绿地集团、象屿地产
景观设计:上海致社路(原红杉国际设计)
景观面积:54,605.3㎡
项目摄影:鲁冰
本资料声明:
1. 本资料为要约邀请,不视为要约,所有政府、政策信息均来源于官方披露信息,具体以实物、政府主管部门批准文件及买卖双方签订的商品房买卖合同约定为准。如有变化恕不另行通知。
2. 因编辑需要,文字和图片无必然联系,仅供读者参考;
3. 本资料制作时间为2020年9月。
注:项目编辑来自
绿地景观与室内设计中心
,仅用于交流学习。
阅读推荐
冶炼留痕,今焕新生 | 绿地香港 · 也今东南景观
客服
消息
收藏
下载
最近



















































