查看完整案例


收藏

下载
建筑师 OBRA Architects
地址 北京,中国
类别 幼儿园
主创建筑师 OBRA Architects, Pablo Castro, Jennifer Lee
设计团队 Shin Kook Kang, Samuel Zumsteg
建筑面积 5000.0 m2
项目年份 2017
摄影师 OBRA Architects
客户 Beijing Century Property Group, Sanhe Bai Jia Real Estate Co.
工程师 China Architectural Design Research Group CADRG
景观 OBRA Architects
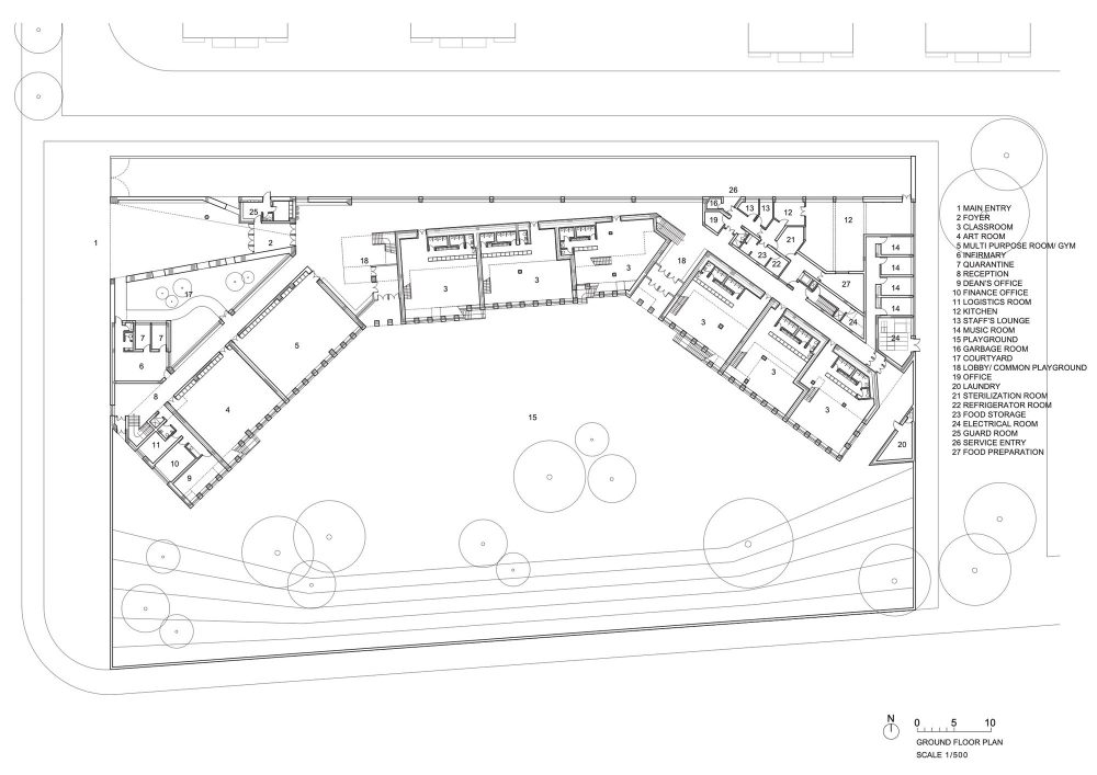
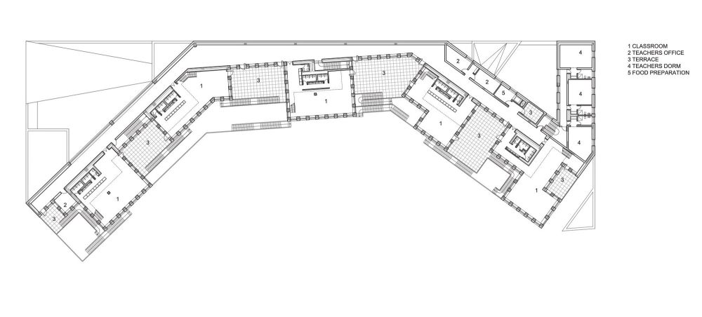
由OBRA Architects设计的三河幼儿园位于北京,建筑面积5550平方米,由18间教室、体育馆、音乐教室、公共厨房、办公室和15间教师公寓组成,一共可容纳540名学生。
为了让小孩能有足够的光照健康成长,三河幼儿园建筑的三个部分组成了拱形的面,并且坐北朝南,坐拥一个孩子可以尽情玩耍的游乐场。
该项目有一个孩子熟悉和容易记住的概念:三的组合。幼儿园有三个侧翼,每个侧翼有三个教师,每个侧翼三层楼,并且建筑室内由三组楼梯,等等。
这个三位一体的组合概念又与其他的概念一致,不仅仅是简单的逻辑结构:左/中/右,是/否/也许,空间/时间/物体,等等。同样结合普遍中国家庭里父亲母亲和孩子的三位一体的结构。
三河幼儿园的室外又像是孩子们的保护壳,保护他们不受快速发展的城市带来的环境的污染影响。此外立面不仅简单, 功能上也不刻意,并且用随意设置的露台和楼梯连接教室和游乐场。
该建筑设计用一系列连接室外楼梯的露台打破了平面规划上的单调,定义了连接每个教室和室外游乐场的连续性的通路。在一个教育普遍比较严格的国度,三河幼儿园通过利用建筑元素含蓄地提出了折衷的教育理念,通过玩耍来传递知识并且把这种机会传递到幼儿园的每个角落。
客服
消息
收藏
下载
最近































