查看完整案例


收藏

下载
建筑师 华南理工建筑设计研究院
地址 Taizhou, Jiangsu, China 类别
中小学校 Design Principals 何镜堂、郭卫宏
项目年份 2016
摄影师 姚力, 战长恒
规划团队 盘育丹、麦子睿、孙阳、邱伟立、刘临西、伍源铿、张智勇、廖若雯等
教学区建筑专业 盘育丹、邱伟立、黄冠男、刘临西、李飞、陈纵、罗梦豪、钟日鸣等
生活区建筑专业 Zhirui Mai, Yan Sun, Kaixin LiLinxin Liu, Menghao Luo
文娱区建筑专业 麦子睿、战长恒、梁景韶、曾健全、张智勇、伍源铿、吴领
景观专业 郭志盛、晏忠、陈思韵、冯彩霞
结构设计 劳晓杰 、黄志坚、余学红、仲胜利、潘志刚、陈小锋、郑洋
设备专业 王琪海、黄璞洁、耿望阳、陈卫彬等
室内专业 郑炎、梁景韶、梁均宇、马军、李飞、刘临西、陈纵
文脉
泰州自史以来,学堂林立、书院盛行,著名的安定书院便位于泰州中学老校区。泰州中学是我国极富盛名的百年名校,始于在宋代著名教育家胡瑗讲学旧址上创立的泰州学堂。原校区内还有纪念胡瑗的祠堂,校园文化气息浓厚。
新校区方案通过对泰州以及泰州中学文化和历史进行分析研究,并参照泰州传统的“学堂书院”空间布局,试图重塑一种清新淡雅的书香氛围,从而使新校区体现百年名校的文化积淀和地域特色。与此同时,校园规划融入现代校园空间特征,以基于传统、推陈出新的设计理念,传承校园文脉,再现安定书院的韵味。
雅院
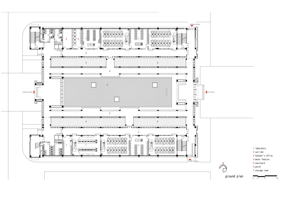
整个新校区借鉴泰州传统的“学堂书院”空间,以院落为空间结构组织基本元素, 并运用南北的“学术轴” 和东西向的“文化轴”统领整个空间格局。每处空间都设置相关的文化视觉焦点和文化主题。校园以礼仪性的书院主空间为主轴,再融入错落有致的书院园林空间,空间层层相套、开合有度,传达出重教尚文,外儒内道的精神内涵。通过对校园中的教学区和办公区空间统一规划,形成荟雅院、尚礼院、崇儒院、达理院、敬师院、国学院和思源庭等多个主题院落空间,各空间相互渗透,层次丰富,各种自然元素渗透其中,局部再点缀亭台楼榭,烘托出校园静谧典雅的氛围。以生态绿轴贯穿校园,以“水院”沉淀空间氛围,显示出泰中海纳百川,生生不息的人文精神。
水韵
泰州以水文化著称,泰州中学新校区的设计更将水视作设计的一个灵魂元素。整个校区设置三处水景,分别为思源庭、国学院、银杏湖。三处水景风格迥异但都透露出浓厚的文化气息。思源庭之水规整现代,整体氛围静谧安宁,创造一种静思之境;国学院中水景传统小巧,营造出婉约之境;银杏湖中水景博雅大气,构建深远之境。静谧内敛的水院空间奠定了整个校园的氛围基调。倒影因水而生,校园空间也因此而显得更为开阔生动。水为生命之源,水的引入,使得空间更具灵气。
筑形
建筑形体端正典雅,简约内敛,建筑细节精细优美,建筑逻辑理性严整。通过简约的形体和细节对比,透射出博雅大气的建筑气质。建筑从立面的开窗排布形式到建筑细节的肌理都采用相同的建筑语言和建筑母题。
将窗花和篆体文字等传统文化元素进行重构并用其对建筑细部进行点缀,赋予建筑文化灵气和传统的意韵。建筑饰面主要采用石材、灰砖等灰色系建筑材料,局部点缀木材等暖色系材料。深蓝灰的建筑色调,勾勒出清新淡雅的书院氛围;局部点缀的木色则渲染了淳朴浓郁的书香气息。建筑造型以现代的手法表现出传统的意蕴,整体风格精致、典雅,实现现代和传统的有机结合,表达出校园的文化性和时代感。
客服
消息
收藏
下载
最近








































