查看完整案例


收藏

下载
(图片转自网络,侵删)
海明威曾说过:“假如你有幸年轻时在巴黎生活过,那么你此后一生不论去到哪里,她都与你同在,因为巴黎,是一席流动的盛宴。”
案例档案
项目名称:
瑞学府
建筑面积:
121
㎡
房屋类型:
3室1厅1厨2卫
设计师:
牟岩冰
装修风格:
现代法式
生活的浪漫,从家开始。本案在整体设计上既有法式的优雅,也有现代风的时尚简约,在这个家里的每处角落都成风景,尽享平和的时光,细品生活的美好。
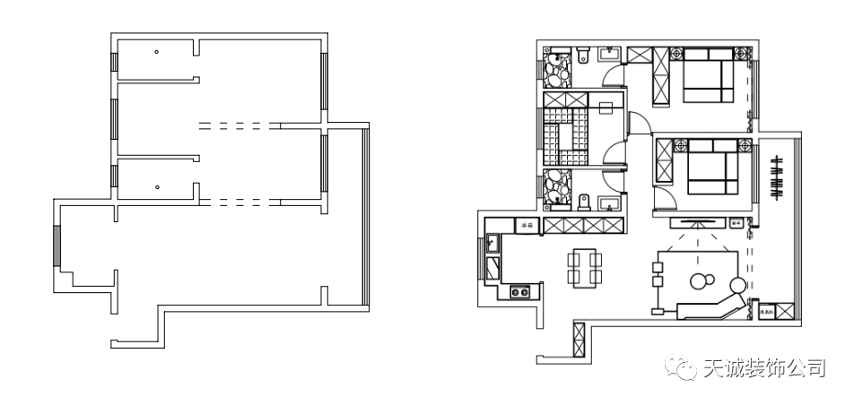
[ 原始户型图&平面布局图 ]
01
玄关
玄关是让客人留下第一印象的地方,运用护墙板结合嵌入式定制柜的设计,通过艺术雕塑灯和大理石的装饰,丰富入户空间的层次感。
02
客 厅
客厅空间,设计师巧妙用心在简约大方的硬装设计中捕捉法式风格的气韵。硬朗复古的石膏走线,立体的护墙板与大理石的碰撞,铺就客厅空间的浪漫法式氛围。
客厅的壁灯与吊灯摒弃法式繁复的水晶灯,轻盈的时尚之感伴随灯光踏步而来。
柔软舒适的沙发,哑光金属与触感细腻的地毯,以及圆润的家具线条......这一切组合起来犹如优雅的女士,很好地中和了
现代极简的硬装基调带来的
冷硬感,起承转合着客厅的精致格调,而一点绿色的提亮,更让整个空间迸发出生机。
03
阳 台
客厅与外连阳台以浪漫的法式拱门隔开,仪式感得以展现。阳台一侧规划为洗衣区,以定制柜形式将洗衣机、烘干机、洗手台、储物区合并,空间利用有效且利落。
04
餐 厅
光线透过窗户照射进屋内,整个客餐厅通透明亮。餐边柜的色调同样采用了奶油灰,与整体色调一致。
05
厨 房
用玻璃门推拉门将厨房与餐厅隔开,独立与开放兼顾,利于家人之间的互动。U型橱柜布局,灰色柜门搭配仿理石纹墙地砖,打造干净整洁的下厨空间。
06
主 卧
映入眼帘的就是被温暖包裹的主卧:柔软的床,温馨且质感的窗帘,以及全屋元素统一的石膏线条;金属色的灯具华丽但不繁杂,提升了家居的质感,再加上轻盈灯光的点缀,营造出低调的优雅气质。
07
儿童房
白色与胭脂粉的搭配,打造出温柔且舒适的睡眠环境。设计师在此空间内选择了吊灯+筒灯+隐藏光源组合的多重灯光设计
,营造空间的通透敞亮感,使整个空间充满灵动性。
▼
我们相信“星光不问赶路人,时光不负有心人”
如果你与众不同,我们终会遇见
客服
消息
收藏
下载
最近
















