查看完整案例


收藏

下载
建筑师 GLA 建筑设计
地址 海潮路, 上城区, 杭州, 中国
类别 幼儿园
建筑面积 5339.0 m2
项目年份 2018
摄影师 苏圣亮
厂家 Asia Alum Group
介入
杭州市海潮幼儿园位于杭州市中心上城区望江单元,规划为16班幼儿园,用地呈现不规则形状,地块西北面为高密度住宅区,东南面为城市道路。建筑师希望在这片高楼和城市道路包围的环境中,通过设计的策略为孩子们创造一个健康快乐成长的空间。
布局
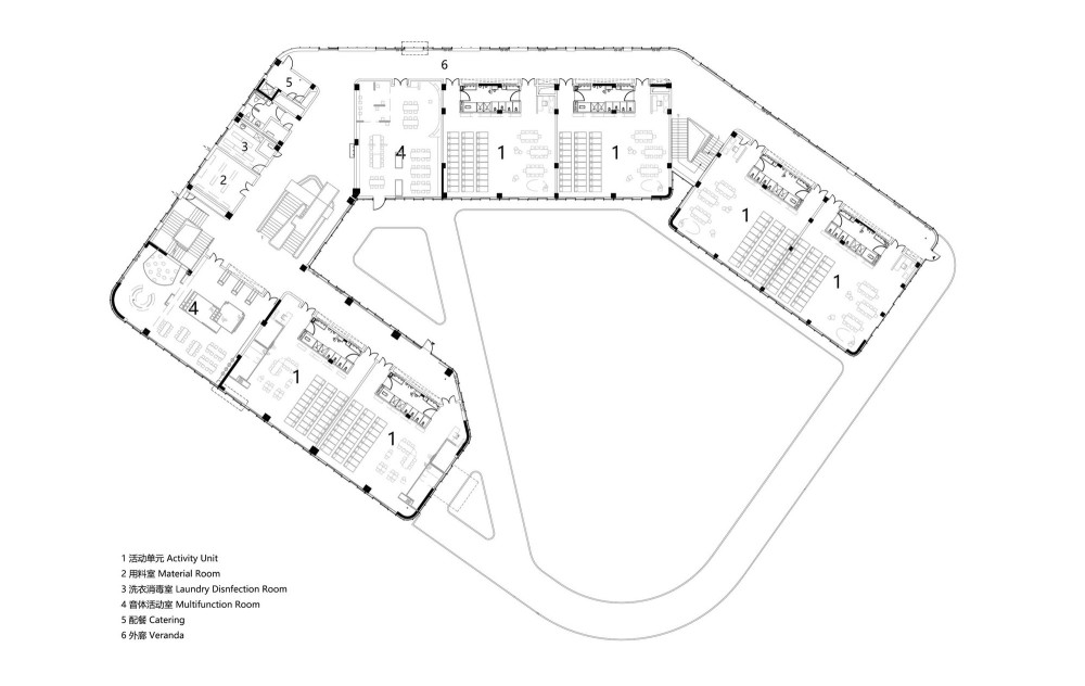
将建筑主体集中布置于西北侧,满足容积率要求的同时,远离城市道路,避免道路噪声对室内活动影响。东南面的留白最大化,形成了充裕的室外活动和开敞空间。通过退台的形式,建筑体量削弱的同时,营造出了二三层的室外活动空间。东南两侧风雨连廊与建筑相连,围合出集中的室外活动场地,并与城市道路形成隔绝之势。
渗透
空间与流线之间的关系密不可分,有趣而丰富的空间激发了更多活动的可能性。幼儿园容积率做到了规划设计要求的最大值,除了满足更优越的教学空间之外,室内的共享空间被放大,多功能厅达到了300平方米;
追逐嬉戏的场景对这个年龄的孩子有着特殊的吸引和诱惑,东南两侧环状连廊与建筑室内外相连,无论是烈日或是雨天,可自由穿梭的流线产生了;室外活动场地营造达到了最大化,东南侧的大片场地留白,没有建筑遮挡,光线极佳,孩子们在鲜有棱角的连廊与建筑退台空间自由穿梭。
表皮
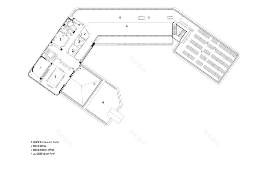
各楼层空间拥有不同的物理特性:首层室内外活动空间的渗透,二三层教学空间的连续与退让和四层办公空间的集聚,在立面上层层叠加,以纯水平线条来构筑建筑最本真的状态。立面细节处理上,外窗玻璃环绕外墙通体设置,层间楼板通过外挂白色穿孔铝板和刷白色涂料的做法凸出楼板的体量,远看幼儿园,就像片片纯粹的板块漂浮在空中。
通长玻璃的设计增加了室内外视线上的联系,在建筑内可以更好地看到户外的千姿百态,而城市的人群也可以透过玻璃看到建筑内幼儿活动的天真烂漫,室内外的对视创造了有趣的生活体验。
客服
消息
收藏
下载
最近




































