查看完整案例


收藏

下载
P. 01
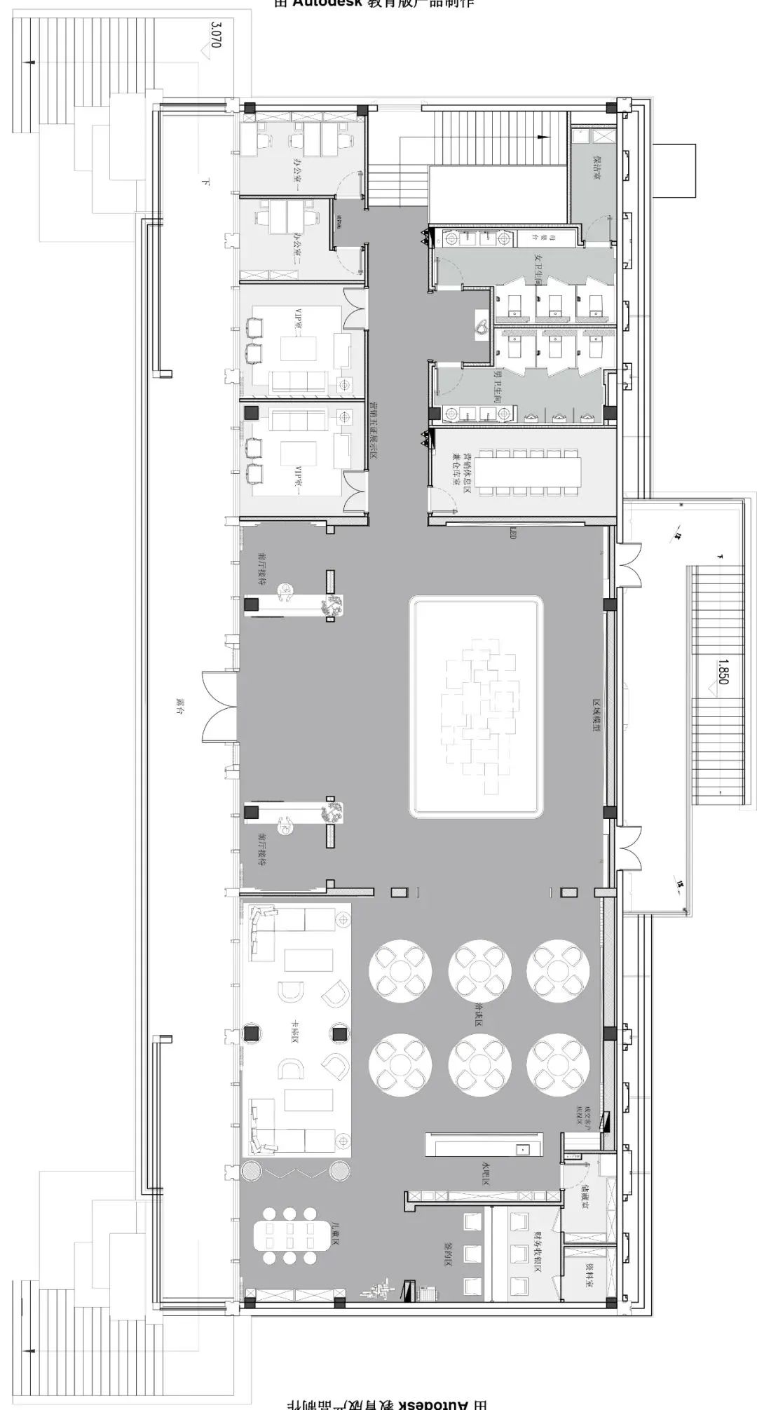
本案用简洁的设计手法,融入了宋代文化的意境,自由联想,“少即是多”,以设计作为切入生活的路径,基于线条、材质与形式的差异化表达,探索当代理想人居的崭新面貌。将售楼空间的定位从销售功能演变为艺术体验馆
P. 02
色彩清和、雅淡,迎合文人雅士对闲雅、平和、宁远淡泊的居住氛围的偏好
P. 03
P. 04
P. 05
P. 06
P. 07
P. 08
P. 09
P. 10
P. 11
P. 12
P. 13
P. 14
P. 15
P. 16
P. 17
P. 18
P. 19
P. 20
P. 21
大面积木饰面墙身观 感温柔、质感朴拙而单纯。
一抹绿意,十分悦目。
玻璃幕墙的上半区一条条细木格栅,使得顶部的自然光能够折射于隔断墙面。
刺绣山水画与木饰面的结合,为空间延续沉稳的质感和安静纯粹的精神观感,铺陈空间的特有格调
P. 22
P. 23
P. 24
P. 25
P. 26
P. 27
P. 28
P. 29
本案从自然和原始的形态中萃取灵感,利用光影与自然的结合,将过去与现在的风华盛景,以虚带实,在白描空间下带来无尽的想象
P. 30
P. 31
INFO
项目名称 :南昌联发·美的悦玺台
竣工时间 :2021年11月
甲方团队 :罗嘉 王程 梁超
硬装设计 :深圳集聿设计有限公司
项目摄影 :ENV恩万建筑摄影
DESIGNER
深圳集聿设计公司,主营地产、办公、会所项目,是一个致力于中高端设计服务的专业团队。善于兼顾业主单位的经营发展性,融合国内知名艺术机构及艺术品平台,汇聚各类艺术资源, 为业主单位打造更具有商业与艺术价值的专属艺术文化空间
客服
消息
收藏
下载
最近


































