查看完整案例


收藏

下载
深圳 月照心舍
商业空间丨 建筑面积:900m²
明镜止水,皓月禅心
质朴无暇,回归本真
艺术是生活的升华,设计是艺术的呈现
净心
守
志,可会至道
尘俗的光阴,应有一处如是这般清静闲雅。
山深是山,云深是云,而我只做一个追梦客,流水空泉,小林幽径,纵迹山川水色之间。
空间坐落于深圳智慧广场,整栋建筑外观犹如一个飞碟的停靠站,极具未来感。
▲建筑外观图
受此设计委托,是大象未来设计生涯的一个全新挑战。因月照心舍创办人空山先生超前的思维方式,善于透过古老的智慧,结合现代科技,创造光音境相,赋予空间特殊的需求属性——“疗愈性空间”。而空间的疗愈性亦是大象一直以来的设计核心。为此,造就“心舍”是大象与空山先生共同打造的高维空间。
从物件看文化,从自然得道。从人具合一才知道其文化传承与经验累积,从自然法则观察到真正的生活。而设计和创作也是如此,在最贴近生活的细节里,观察其日月星辰、风雨时节并发展一套精微的顺应方式,这是智慧和经验的累积,也是文化。
▲初期平面草图
借天 用地 為人
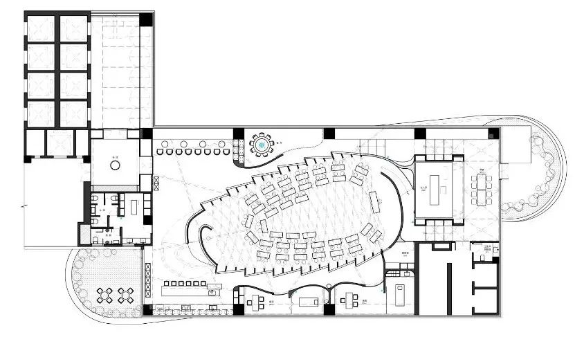
在整体规划中,以月形露台中轴线为纽带,连接前后建筑与自然的对应关系,这样的划分随着不同的时间与需求,表现出灵活、兼容、与流动性,让空间得到更大的利用。
▲平面布置图
同时希望它在满足基本使用功能的基础上,透过空间细节与比例尺度的拿捏,以及光激声荡的作用,让空间产生和谐共振的能量场,对组织、宾客、等人伦关系起到了很好的作用。
开门入境,玄关造景,以“透光”塑造空间安静的氛围,幕墙后引入光与影,使宾客从都市的喧闹到访此处时,透过静寂的空间美感,感受到心神收慑的作用。
金砖墁地,其明如镜,声如磐,墨如玉。如同海面波澜的砚石地面,每走一步,都轻轻的,慢慢的,到这里,希望您一切都慢下来。
心随境转谓之迷,境随心转谓之悟。从浮躁的空间进入心舍的领域,境由心坐,物随心转,心之所向,境之所在,虚与实中镜像。透过镜像与转折手法,将天花刻意拔高,搭配静谧温暖的灯光色调,以及充满仪式感的步道,让所有的纷扰顿时回归当下。
提供健康具能量的优质食物,让饮食回到与自然结合的源头,也让来访的人透由饮食、空间与文化,提高能量与振动频率,找到自我内心片刻的宁静与稳定。
宋朝的无门慧开法师曾创禅语:春有百花秋有月,夏有凉风冬有雪。若无闲事心头挂,便是人间好时节。充分叙述了平常心在养生过程中的重要性。
在这个空间的容器中,大面积的留白,借景及光影,通过不同物品的属性,营造一种静谧空间气质。
瓦楞玻璃带来了若隐若现的光影效果,以及布帘所形成的活动屏障,使空间灵动而不沉闷。当有需求时,可将布帘拉上变成独立的包间形式,让空间富有可分可合的特质。
松果设计以松果为载体,将空间具象化,以上升空间的维度。松果课室占空间总面积的 30%,220m²,是空间的聚焦点。
理清空间序列,依照空间脉络,融合人造光线与自然光线;将空间具象化,上升空间方向维度,以提升空间的使用性能。
▲松果体构造
设计从【数】【理】【气】【象】四个层次做为根基,依次递进,层层包裹。设计的起心动念需有迹可寻。概念需与实地落地相结合,从概念的种子发芽,生长出功能性、灯光系统、影音系统,甚至是能量系统,孕育成苍天大树。
松果丨内部
空间导航能力即方向感是松果空间的起初,松果也是心舍传播精神文化的中心,定期举办各项沙龙、精品课程,包含花茶香道、以及各项艺术品鉴会等。
松果鳞片共计 4280 片松鳞,配合七彩微光。如同为松果体披上一件炫彩“外衣”,视觉上更是同祥云入境般,迷幻神圣。
▲松麟的研究与测试
茶室正西处如来位,借天势,是空间与内涵的核心。经过一道光影变换刻意营造的廊道,突出体验西侧的整幕园林景观,树荫投射在深色的墙壁和地板上,给静态的空间带来随风摇曳的震动感,产生巧妙的空间能量。
午后西侧斑驳的树影投射在深色的墙面与地板上,给静态的茶空间带来随风晃动的震动感。
夕阳西下,落日余晖,透过金黄色的玻璃砖,洒下斑驳的琉璃光。珠玉光辉,如琼瑶璞,辉煌夺目。光灼灼,明耀水晶洁,宛如珎宝光错落。
禅茶空间用于招待主人来往宾客,与主人办公室以可开合式折叠门相间,不同时段的自然光线,在空间内交错。
“银杏”图腾,作为不可或缺的元素,它柔美的线条,富有东方色彩的表达方式,贯穿整个设计脉络——银杏泛黄化作春泥,飘落如蝴蝶翩翩飞起。
虽置身于城市却淡看市井喧嚣,而不受打扰的宁静。周遭色调稳重而不带压迫,反衬出一股随风逸动的薄纱般,自在飘扬的轻淡;
世事如落花,心境自空明。空间应有的属性,就是在其融入人的生活态度。没有奢华张扬,如同“见山是山”是一种观山者的心境,而非山自身的呈现。带人走进“静,净,境“的进化过程,是此次空间设计围绕的主题。大象的设计工作历时一年,完成此作品,是多方共同努力下的成果,是能量的汇聚。空山先生指引,带着慧心之眼观人观己观世界,带着慈爱之心入境转化,从黑暗中解脱。走入“月照心舍”,就是走进了另外一种生活状态,时间都将缓慢下来,一心沉浸其中。山静似太古,日长如小年。月照心舍,心安即是家。执大象,天下往。大象设计。
了解大象未来请点击文末左下角阅读原文
大象设计有限公司
设计机构|大象设计有限公司
摄 影 | 杨 俊 宁
客服
消息
收藏
下载
最近

















































































