查看完整案例


收藏

下载
主案设计丨
帅伯尤
项目名称丨
《空间•旋律》
项目面积丨
280㎡
风格倾向丨
现代
案例地址丨
中信君庭
设计理念
本案坐落于广州珠江岸边,视野开拓,清风徐徐,站在一览无余的落地玻璃窗边,让人有一种一览众山小的感受,色调上的递进感把空间的层次一步步推向纵深,让空间处处有形且融于整体,色调和且不张扬,给现在的年轻人一种避世的归属感,找到属于自己独立且静谧的空间。
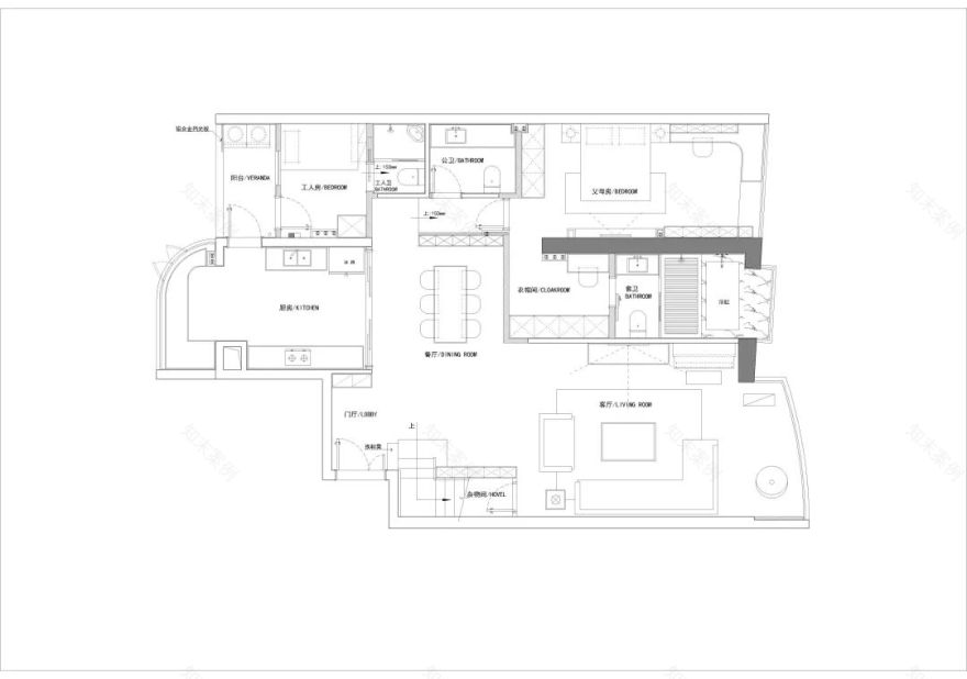
一楼平面布置图
1
二楼平面布置图
2
如今,随着各种文化的兴起
当代人的审美也发生变化。
有人喜欢做个与众不同的弄潮儿,有人重新穿上汉服。
忆往昔
都能发觉传统文化因为时代的更迭在逐渐没落。
所以新古典主义成为了许多人的“心头好”,
这是传统文化和现代文明的碰撞。
每天都像是在打开新世界的大门!
客厅首先就给人一种清幽的意境,黑色的皮质沙发,搭配上拼接的黑白圆桌和深褐色的格子地毯,吊灯也没有用复杂的水晶灯,而是是简约又设计感的圆管白灯,合理的空间分配平衡了厚重天花板带来的压迫感,把黑白灰的高级感发挥到了极致。
客厅中还有一大亮点就是黑白相间的旋转楼梯了,对于复式公寓来说旋转楼梯极大的起到了装饰的作用,彰显时代气息,而且总的占地面积也比较小,提高了空间的利用率,放上照片和摆件极具艺术感染力。
用餐区也是用经典的黑白搭配,圆形的设计感吊灯提升了整个区域的精致度,而长长的大理石餐桌和磨砂皮质的座椅,不管是朋友聚会,还是吃一顿浪漫的烛光晚餐都非常合适。
最让人惊艳的还有无处不在的“相思豆”,它代表着爱情,婚姻,幸福,平安,古代常用来代表相思之情,是情侣间定情的信物,是朋友间深长的情感连接,也寄托着人们对美好生活的向往。
主卧主要打造一种平和静谧独立空间,利用极佳的地理优势,在站在落地窗前每天都能看到不一样的珠江风景,视野开阔。床头上坊还有玻璃碎片拼图,不需要太多的装饰,房间也不会显得空落落的。
次室也是黑白灰的主场,白色墙面用黑色线条勾勒,和黑白灰相间的地毯相呼应,墙上的挂画也都用层叠的矩形图片,看似重叠却又不显得凌乱。
另外单独设计了浴缸,同样是黑白搭配,但是两边用白色瓷砖让整体空间都拉大了,窗边放上一束花,下班回家舒舒服服得泡个热水澡,这就是简单的幸福吧。
厨房部分是最能体现空间感的地方,白色的大理石台面搭配灰色的收纳橱柜,简约而不失高级感,透明的移动玻璃门和黑边的修饰都很好的协调了大面积灰色带来的沉闷感。
错落的光影,藏在每一处的小细节,设计师都在用情感打造这个“小世界”,小角落里的鲜艳的文心花增添活泼感,就像是穿着小裙子的女孩在翩翩起舞,让你每天都能快乐无忧。
客服
消息
收藏
下载
最近



















