查看完整案例


收藏

下载
tototo02 了
继幸福集荟·幸福里、幸福集荟·黑石之后,位于漕宝路 36 号的“幸福集荟”伴随「M+谊园」的开放焕发新生,这不仅是一个集图书、时尚、咖啡、艺术展览为元素的生活体验空间,更成为周边街区的全新城市文艺地标。
—
幸福集荟・谊园
NICE TO MEET YOU
WJID 基于项目旧址,在城市更新的背景下,以光影营造、材质融入切入设计命题,打造城市街景下的复合式阅读空间。
#01
Bookstore
拱门的艺术
穿越时空的隧道
时光就像是一个个串起的光环,里面贮藏着记忆的片段。设计师以时空廊道的概念串联起负一层的书店功能空间。大体量的藏书通过几个栈道空间的分隔形成不同主题的分区。
拱门,常见于西方恢宏建筑,带来的是时间洗礼下的经典意味与后辈对文明的永恒致敬。
秩序分明的墙面展陈如画境一般呈现,过道展台空间开辟出一个新的区域,为访客设定停留点,使随心翻阅融入更多闲散游逛的都市生活味道。
空间的功区融合中不乏丰富的层次处理,大量运用曲面元素,带来感官层面的舒适。就如同文字直抵内心,丝丝入扣,仿佛一场敲打心灵的雨。
在这里,线条与材质始终呈现为自然拥抱的气息,弱化了单纯工业风的硬朗,带来雨林般的视觉观感,让人错觉沉浸于参天古树的庇护,是一种脱离喧嚣、步入雨林深处的治愈与亲密。
原木材质包裹于墙面,形成一种大量的留白,将空间让步于读物本身,体现出不喧宾夺主的谦逊。
设计师将书店理解为一种情怀,在对功能的复合中,更珍视阅读这件事本身。在飞速更迭的生活中,仍愿意留余整片时间沉浸于阅读,分享人与人之间面对面的时光。
#0
2
Gallery
曲线分割
连接记忆的回廊
循步“时空通道”,来到画廊展厅。楼梯偏于一隅,过渡出空间更深一层的宁静氛围,使访客移步间,更能感受空间的探索趣味。
展厅空间顶面玻璃天花落入自然光,削弱地下空间的闭塞感。这也是两处空间的贯通,通过艺术画作的美术展陈,主动面向更多访客。
自然光散落墙体,使一抹纯白映照出空间的诗意。原木材质的巧妙覆盖如同自然生长于墙体,自然与建筑空间无缝衔接,显露时间酿就下树木原生材质的自然光泽与质感,带来的是城市生活方式对自然的崇敬与回归。
#03
Cafe
休闲/办公/咖啡/社交
场景的 plus+
当传统的书店模式渐渐退出舞台,人们在思考究竟怎样的书店空间才被需要?这也许是一处“城市客厅”,是可供奔赴与集会的街区节点,荟萃城市、艺术、人文,这才是“幸福集荟”的真正意义所在。
大面积的玻璃窗将整体空间打造成为开放、拥抱的姿态,开放的空间带来的也是大量的采光,为未来的植物养护预留良好的条件。
一层区域的视觉重点被设定在水吧区。开放式吧台便于迎接访客,水平线加强视觉的延伸感,敞开、开放的姿态带来整体空间气质的平和。
开放式的空间构筑起自然、社会、生活相互作用的生动风景。在城市的流动街景中,认真工作、阅读也酿成一道人文风景线。
咖啡厅长桌缩减了陌生人之间的距离,加强自由的社交氛围感。曲面天花如同跳跃的浪花,强化空间体量,秩序分明,动线清晰。
城市在飞速发展的浪潮中不断迭新,然而承载老街坊记忆的元素仍然值得保留。新与旧的时空承接由拱门元素呈现。穿行其间,仿似能重回纸笔传递书信、偏爱纸质阅读的旧时间。
「时」与「光」被埋藏于空间的线索之中,或者以材质、体块、形态、陈列、布光的方式融合于空间,或者呈现为几张简单的艺术画。这些都嫁接起新与旧的桥梁,以及人与人之间情感的对话。设计师希望,书店空间的设计既可以激发访客对当下生活的珍视享受,又可以在翻阅驻足的时间激起纯真学生时代的心绪翻涌。
幸福集荟・谊园
NICE TO MEET YOU
融合城市、街区、记忆的书店
是对街坊的主动迎接
WJID 以自然、简明的设计
带来一场文化的心灵旅程
愿读者来这里喝咖啡、交朋友、尬山湖!
DESIGN
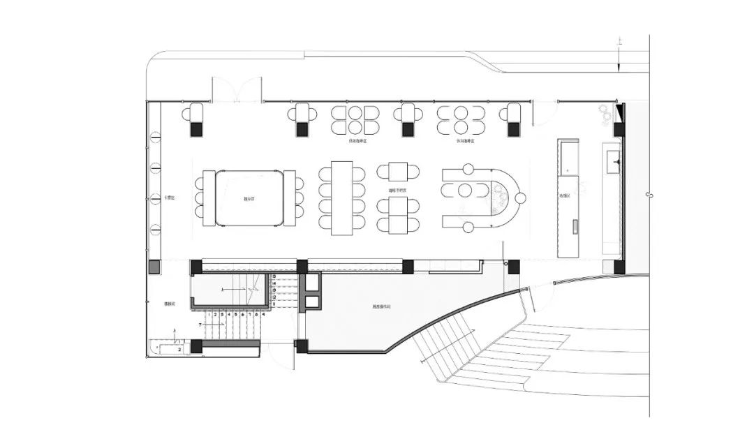
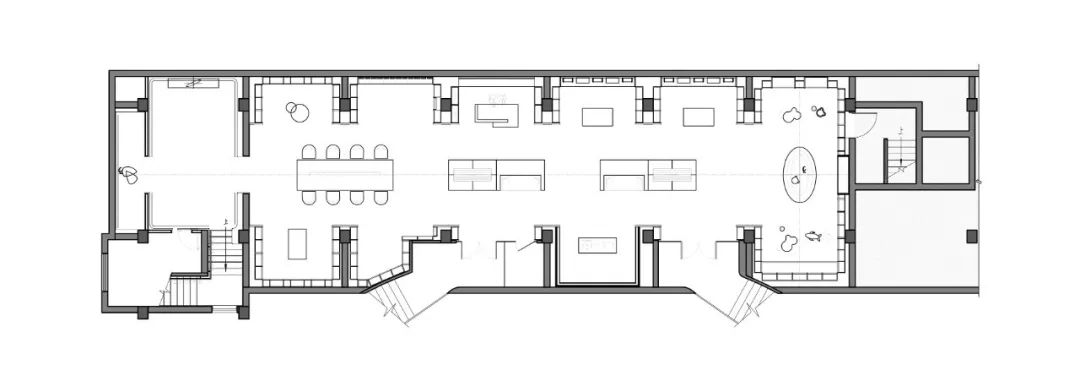
PLAN
平面图
△ 一层平面图
△ 负一层平面图
ABOUT THE PROJECT
项目信息
项目名称:幸福集荟・谊园
项目地点:中国 上海
项目面积:400㎡
甲方单位:上海集宾文化创意有限公司
硬装设计:WJID 维几设计
软装设计:WJID 维几设计
完工时间:2021 年 6 月
项目摄影:骏尔天钦工作室
—
幸福集荟・黑石
NICE TO MEET YOU
作为上海音乐文化街区的“黑石 M+”中心项目,老灵魂在城市更新的洗礼下获得了新生。设计师黄全,为一栋有着一百年历史的老建筑以飘散咖啡香的书店样貌打开了一扇门,将“幸福集荟·黑石”打造属于大众的城市文化客厅,也让驰骋十里洋场的古今上海人物,可以在以文字架构的记忆城堡中相遇。
幸福集荟·谊园
上海市徐汇区漕宝路 36 号
幸福集荟·黑石
上海市徐汇区复兴中路 1331 号
WJIDPROJECTS
近期作品
本文素材图片版权来源于网络。如有侵权,请联系后台,我们会第一时间删除。
Images copyright from the official website.
if
and we will delete it as soon as possible
- END -
点击下方进入
云想衣裳视频号
跟我们一起走进郑忠的设计专访
点击下方进入
云想衣裳
视频号
一起走进
郑忠×胡佬
的专访
点击下方进入
云想衣裳视频号
观看季裕棠的设计分享
点击下方进入
云想衣裳
视频号
郑忠 × 胡佬 30 分钟解析三里屯洲际
点击下方进入云想衣裳视频号,走进琚宾的设计分享“淡然无极而众美从之”。
将【云想衣裳名师资料集】设为“星标”,可第一时间接收设计圈最新精选内容。
客服
消息
收藏
下载
最近










































































