查看完整案例


收藏

下载
点击蓝字关注我们
案例背景
这是一套老房翻新的小户型浪漫婚房,面积 98 平方,目前是夫妻两人居住。虽然房子户型不大,但麻雀虽小,五脏俱全。
夫妻俩非常喜欢当下流行的原木奶油风,被阳光暖暖地包围着,给人朴实无华、自然舒适的感觉。原木与留白的结合,流露出一种雅致与宁静,充满了治愈力。
房屋信息
面积:98㎡
户型:两室两厅一卫
风格:奶油原木风
常住人口:2 人
装修成本:15 万
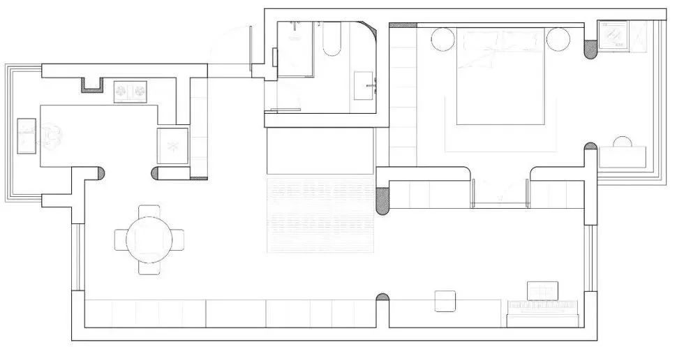
户型图
原始户型是比较标准的结构,比较方正,但隔断墙太多,采光效果不够理想。厨房的阳台功能性不强,厨房区域布局上受到限制,整体家居面积小,缺少储物空间。
设计亮点:
1、在不同区域巧妙布局储物柜,壁龛式开放格设计,与柜体虚实结合,既满足全家人储物需求,也保证家居的简洁美观。
2、奶咖、米色、菩提黄等低饱和色系搭配原木材质家具,构筑轻盈而有质感的住家环境。
3、把厨房阳台打通之后,重新规划厨房布局,扩大使用面积,增加采光。
4、客餐厅一体式布局,最大化提高利用率。
5、通过墙体的拆改,次卧改造成开放式书房,改变主卧门口位置,优化家居动线。
6、主卧阳台进行功能改造,延伸出一块休闲区。
客厅
客厅按照“轻装修,重装饰”的原则,沙发背景墙选择低饱和度的菩提黄,铺设温润的原木地板,搭配暖色系布艺沙发,删繁就简,让整个居室更加大方、美观。
在客厅可看到书房全景,整体视觉更加开阔通透。采用无主灯设计,让家里看起来更加规整,减少层高带来的压迫感,多照明点位充分将室内光源分散化,更能营造惬意的居家氛围。
沙发边墙是弧形壁龛收纳格,实用性更高,完美替代边角柜,上面摆放各种陶艺装饰品,每个陶艺品都独具特色,让人想细细品味。
沙发前的地板上铺上一张厚厚的地毯,还有造型新颖的小茶几,旁边的网红 INS 月球落地灯格外吸引眼球,让客厅变得舒适且温馨。
餐厅
客餐厅一体化的设计,中间没有隔断,提升空间利用率,动线合理流畅,采光毫无阻碍,整体环境宽敞明亮,家人之间也能有更多的交流互动。由于是小户型,安装中央空调取代立式空调,提高居住舒适度的同时还不占用家居面积,使用也更方便,视觉上更为宽广大气。
圆形餐桌搭配实木藤编餐椅,上方一盏复古奶白玻璃吊灯,每天一起坐在餐桌前享用美食,分享当天趣事,浪漫又温馨。餐边柜是嵌入式收纳柜,烤箱等大家电嵌入式摆放,可以省下不少面积,让家里看起来更加整洁、美观,档次也瞬间得到提升。厨房
厨房是半开放设计,整齐划一的白色橱柜为厨房提供了大量的储物空间,锅碗瓢盆、瓶瓶罐罐等都可以归置其中,让烹饪环境变得干净整洁,清新舒适,让人下厨欲望满满。主卧
卧室延续了客厅的奶油风格调,原木矮床高度适中,扫地机器人可进入到床底清洁打扫,减少卫生死角。
白色背景墙简单大方,立体半墙加上光带修饰,缓和视觉感观,呈现出温馨宁静的休憩氛围。
1.8m*2m 的双人大床,床品素雅洁净,床的左侧是收纳袋,右侧是木墩边几,非对称式设计,为睡眠环境增添了不少趣味。
卧室阳台进行功能改造,延伸出一块休闲区。宽大的窗户带来良好的采光和通风效果,更能安然入睡,有利于身心健康。
阳台左侧打造嵌入式收纳柜,缓解卧室储物压力。柜子前摆放一张羊羔绒懒人沙发,奶油风的云朵造型软萌可爱,可以舒适地坐在上面,享受窗下暖暖的阳光浴。
阳台右侧是一张意式梳妆柜,清晨醒来在这里化个美美的妆,开启一天的好心情。偶尔也可当书桌使用,一举两得。
书房
打开卧室门,就是书房了,生活动线合理方便,更懂当代青年的理想生活。
书房设计极具特色,兼具高颜值与实用性。左侧弧形壁龛内嵌,摆放一张黑白经典的钢琴,平时在家中弹弹钢琴,陶冶艺术情操、提高文化修养,休闲娱乐两不误。
右侧搁板书架,可收纳书籍、画框等物品。超长定制书桌,满足男女主人共同办公的需求,提升书房的整体舒适度与品质。
这里既是书房,也是家中休闲好去处。闲暇时坐在窗前,欣赏远处的美丽景色,让疲惫的心灵得到疏解。
卫生间
卫生间干爽洁净,洗手台下方几个藤篮可收纳日常洗浴用品。边墙是黑色的免打孔毛巾架子,搭配轻奢方形浴室镜,更美观,呈现出舒适、雅致的生活品位。
❤❤❤预约 0 元设计点击下方链接-了解更多装修案例????
戳“阅读原文”领“0 元设计”啦!
客服
消息
收藏
下载
最近






























