查看完整案例

收藏

下载
本案是位于北京密云的一处 670m² 独栋别墅。
房主夫妻二人和父母,还有一双可爱的儿女,是这栋房子的常住人。
男主人是一位成功的企业家,喜欢喝茶,同时偏爱中式元素。
女主人从事高定行业,对审美有自己的见解。
对于新家,他们希望能充满中式韵味,但不要沉闷老气,要有现代简约风的时尚感和高级感,彰显自己的品味。
改造重点
1
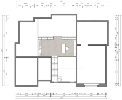
▲花园层
平面图
花园层改造重点:设计师拆除了入户门口西侧和西厨南侧的墙体,扩大了餐厨面积,加置电梯,方便全家尤其老人使用。在楼梯南侧设计了 2 间小平米客卧。另外还规划了酒窖、影音室、设备间、洗衣房等功能区,满足了一家人休闲娱乐和待客需求。
▲首层平面图
首层改造重点:
首层面积 188m²,设计师将玄关打通做整体的礼仪玄关,两边做整体储物柜,满足最基本的收纳需求。老人房也设置在首层,方便出入,茶室兼书房的多功能区域同样规划在这一层。
▲二层平面图
二层改造重点:
二层是房主和孩子们的生活区域。原户型挑空部分空间利用率不高,设计师将该部分改建为家庭室,串联走廊通往不同的房间,起到很好的衔接作用。
▲阁楼平面图
阁楼改造重点:阁楼采光不错,设计师将这个空间改造为书房兼衣帽间,增加了收纳功能,男主人在家办公的时候也能有一个相对安静的空间。
实景赏析
2
玄关
HALLWAY
进门第一眼看到的玄关空间,以古香古色的木质屏风作为背景,墙面上有中式元素的山水画,清新淡雅,沉稳质朴的格调扑面而来。
客厅 LIVING ROOM
进入客厅,挑高的空间布局恢弘大气,对称式设计让空间更具协调性。沙发选用了饱和度较高的藏蓝色,与红色抱枕形成了鲜明的色彩对比。
俯瞰望去,地板的图案勾勒成沉稳的底色,木质家具质朴自然,整个客厅让人仿佛置身于水墨画中,移步易景,处处为景,处处为画。
餐厅
DINNING ROOM
餐厅延续着客厅的格调,餐桌餐椅同样选用了木质的材质。餐桌的螺旋式纹理桌脚带来粗犷的氛围,绚丽夺目的吊灯又凸显了细腻精致的气质,对立式的设计让空间更加高级、自然。客餐厅打通,在视觉上放大了空间面积。傍晚时分全家围坐在一起,在温馨、自然的怀抱中享受围炉欢笑的幸福。
厨房
KITCHEN
西厨位于花园层,与吧台相接,活动动线更加合理。湖蓝色吧椅清澈时尚,与清新的绿植搭配,营造了自然的气息。操作台是自然哑光的大理石材质,结实耐用的同时颜值也是满分。最抢眼的还是吊灯部分,金属元素搭配造型时尚的灯饰,充满了轻奢的质感。
卧室
BEDROOM
主卧以舒适淡雅的风格为主,室内的门廊设计师以颇具古代特色,棕色木质家具遥相呼应,点缀的挂画以及绿竹,给空间带来了更多的活力,让人体验东方传统文化的美。
女孩房清爽通透,房间是功能完备的大套间,配套的衣帽间和卫生间跟卧室风格统一,都有优雅清爽的居住氛围。女儿房空间有趣的天花、静谧的氛围、舒适的布艺,带给小主人每天的安好睡眠。选用米色床头板,与空间留白的天花板形成呼应,营造出静谧甜美的卧室氛围。
角落里配置了绿色单椅,清新自然的配色在自然光线的照耀下,让女儿房充满了阳光与温馨的味道。
男孩房的设计更加具有特点。设计师结合小主人的生活需求,打造出这处充满想象充满活力的休憩空间。被蓝色填充的男孩房,低调深沉,这里既是隐私空间,又有内在的流动和多元性,学习、生活、休闲层次分明。
卫生间
BATHROOM
卫生间的设计比较简洁,没有过多的设计,满足日常使用即可。设计师做了干湿分离的设计,淋浴区利用透明玻璃隔开,大理石防水槽可以很好地防止洗澡时的水外漏到其他区域,方便洗漱过后卫生间的清洁工作。浴室镜也选用了当下流行的智能镜,有除雾功能的同时还能均匀照亮脸部,是女主人的最爱。
影音室
AUDIO-VISUAL ROOM
蓝色格调的影音室,空间更显得潮流个性十足。大胆的设计往往能碰撞出惊喜的效果。处于同一空间的休闲吧台,以一幅色彩清新明艳的挂画作为装饰,给这处休闲空间制造了更多的浪漫与惊艳。
拐角处是方便品酒休憩的小吧台,每个细节倾注主人的喜爱,同时兼具现代功能与时尚的韵味。
茶室
TEAROOM
大书房分为阅读空间和榻榻米空间两部分,内饰主要以传统的中式元素为主,彰显了优雅淡然的东方禅韵。房主喜爱的茶具又为这个空间增添了一分精致的气韵。
榻榻米可以作为喝茶聊天及主人读书累了临时小憩一会的床榻,亲朋好友来的时候这里也可以作为一个简单的卧室来使用。这里,在角落阅读、在茶区品茶,都是一种优雅。
阁楼
ATTIC
阁楼的空间不大,设计师将这个区域作为书房兼衣帽间多功能区。白天阁楼的采光不错,相对来说也很安静,很适合男主人在家办公时处理工作。书桌和书架都选用了造型简单的家具,22㎡的空间看起来完全没有局促拥挤的感觉。
-END-
图片均为尚层装饰实景拍摄,未经允许请勿商用
客服
消息
收藏
下载
最近
































