查看完整案例

收藏

下载
本案是一套 1100㎡的独栋别墅,男业主是一位成功商人,平时工作忙碌。妻子优雅知性,有一双可爱的儿女,照顾孩子之余,喜欢游泳、瑜伽和烹饪。我们将负一层设计有台球厅、茶室、酒吧、影音室等专区,满足男业主的待客需求。法式风格的打造,使空间弥漫着优雅奢华的独特气息。
改造重点
1
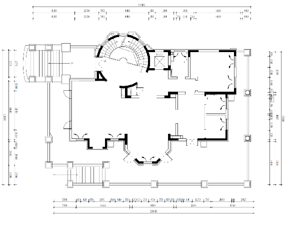
▲一层
原始平面图
▲一层平面改造图
一层改造重点:
1.原始建筑空间划分零碎,更改整体空间划分为中西厨和花园餐厅,西厨位置增加导台功能;
2.卧室增加一处室内阳台休息区,拆除原始建筑楼梯,新建楼板设置一处家庭会谈区。
▲二层原始平面图
▲二层平面改造图
二层改造重点:
1. 南向房间阳光充足,因此将原始结构挑空位置封闭,作为女儿房使用,空间呈现阳光明媚的光感;
2. 考虑到女儿的学习环境,在此处设置一处书房,便于孩子的学习和阅读。
▲三层原始平面图
▲三层平面改造图
三层改造重点:
1.拆除原始隔墙,并新建隔墙作为主卧室,设置一处休闲区;
2.拆除室外墙体,增加外围玻璃隔断,增加书房位置,并置放一处沙发区便于休闲洽谈。
▲负一层原始平面图
▲负一层平面改造图
负一层改造重点:
1. 在家务动线最明确的位置设置一处保姆间,以便家政人员有效节约时间;
2. 拆除原始的卫生间,考虑到业主的休闲健身喜好,在此处设置棋牌室和健身娱乐区。
实景赏析
2
玄关
HALLWAY
一入门厅,可以用“金碧辉煌”四个字来形容,圆形的屋顶采用套环设计,与大理石地面相呼应,金灿灿的吊灯,将雍容华贵发挥到极致,蓝色贵妃椅和窗帘是此处的亮点,金属质感的桌面采用雕花修饰,大气中更显精致,整个门厅的设计,让人感受到无尽的高雅与尊贵。
客厅 LIVING ROOM
客厅延续着门厅的格调,蓝色窗帘用金色镶边,大面积的落地窗将阳光迎进屋内,围合式沙发与二楼休闲区相对,保证家人的沟通与交流。雕花是法式风格中不可缺少的元素,蓝色的沙发、雕花的坐垫,搭配柔软的抱枕,打造一处精致、华丽的休闲待客空间。
挑空式的客厅布局,让整个三维空间变得更加立体和高耸。优美华丽的吊灯照耀着整个空间,蓝色雕花地毯与整体呼应,白色茶几点缀着几何形状的金属桌腿,使空间充满了艺术美感,山水画彰显业主的艺术品位,壁炉的融入打造有温度有质感的家庭氛围。
休闲厅
LEISURE HALLL
休闲区延续整体风格,同款的窗帘设计,以木质长形桌子和座椅搭配,可办公、可聊天、可做茶、可手工,将空间的作用发挥到最大。木质蓝色座椅,雍容华贵,水晶吊灯与水晶壁灯相结合的方式,与双面落地窗使采光增加到最大,也让空间更加贴合自然。
钢琴区
PIANO AREA
这里既是过渡空间,也是体现家庭氛围的空间,一家人弹弹钢琴,聊聊天。经典对称罗马柱与精致美妙的雕花相结合,将西方建筑的优雅、大气打造成极致,圆形的屋顶与圆形的大理石地板结合,采用精美的印花元素修饰,让家更加具有艺术气息。
餐厅
DINNING ROOM
餐厅天圆地圆,采用圆形餐桌,木质材质的设计,与休闲厅的座椅为同一系列,木质的材质搭配绿色的座椅,充满了现代精致的质感。餐厅背景墙,是西方的经典建筑元素,在绿植的搭配下,减轻了餐厅空间的单调,也让空间视觉更加具有异域风情。
厨房
KITCHEN
厨房采用不同色彩的搭配与深浅的变化,渗透出温暖优雅的层次感,木质上下储物柜,搭配白色的操作台,使厨房成为最有烟火气的地方,岛台的融入,便于家人的交流沟通,又可暂时摆放一些饭菜,量子灯将光洒在每个物件上,让人回归至家庭生活的温馨中来。
主卧
MASTER BEDROOM
主卧套房将休憩、衣帽间和卫生间集于一体,充分地满足了家人的生活需求。延续公共区域的华丽与精致,主卧利用金色与浅蓝色打造背景墙,交织出充满诗意的淡雅清新。床品采用金属与布艺的色泽交映,在整体清雅的格调下点缀小面积灰色,亮眼的同时并不过分艳丽,像一个浪漫甜蜜的梦境,完美诠释轻奢风格的大气与干练。
主卧衣帽间主要是为了满足业主日常出行的穿衣需求,设计风格以简洁为主,白色的衣柜点缀金属镜面,在黄色灯光的映衬下,简约不失高雅。
卫生间
BATHROOM
主卫的设计比较低调沉稳。梳妆台采用灰色的家具,搭配灰色的背景墙,表现出内敛的气氛。大型浴缸的融入,打造精致生活,正对浴缸的天花板,采用金属材质组成的雕花,让空间更加具有艺术性。大面积的落地窗使卫生间有足够的采光,保证舒适的空间。
书房
STUDY ROOM
书房不同于其他空间的设计,而是采用古典沉稳的木质地板,搭配大面积的浅蓝色书柜,金属雕花元素的书桌设计,红色座椅的融入,空间高雅明亮。书柜的浅蓝色清新优雅,结合地毯的花卉元素,金属元素的天花,营造出一种庄严肃穆的办公空间氛围。
地下空间
BASEMENT
地下室完全打通,用于家人、朋友、客人的休闲场所。临窗而设的麻将桌,旁边是茶室,长方形的木质茶桌搭配木质座椅,古风古韵,背景墙上的莲花挂画,让空间充满了勃勃生机。一幅业主最喜爱的字画摆放中间,彰显业主不凡的艺术品味。
地下室的正中央是一个大型的台球桌,置身其中,宛如在台球厅一般,以一扇镂空屏风与楼梯相隔开来。整个空间既统一又独立,长方几何图形的屋顶,在水晶灯饰的烘托下,打造一处集休闲、娱乐于一体的空间。双面落地窗,完美解决地下室的采光问题,使内外环境紧密结合。
-END-
图片均为尚层装饰实景拍摄,未经允许请勿商用。
客服
消息
收藏
下载
最近












































