查看完整案例

收藏

下载
本案情况
业主 M 先生与太太,因摩托车相识、相知、相恋,最终拥有三个可爱的宝贝。设计师以此为灵感,塑造出关于摩托、关于生活、关于自由的新居。
业主需求
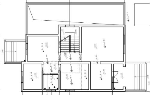
▲一层原始图
一层空间:
●空间划分多且各个区域面积狭小,导致光线较差。
●楼梯处在中央区域,过道狭窄,不符合动线需求,且为传统式楼梯,美观度较差。
●厨房面积狭小,且旁侧储藏间更显阴暗,利用率低。
▲二层原始图
●M 太太希望将此层打造成孩子专属空间。要有大大的书房,满足三个孩子阅读使用。
▲三层原始图
●改变空间格局,打造主卧套间。因小儿子年龄较小,需与父母同住,要在加建属于他的卧室。
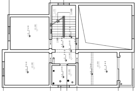
▲B1 原始图
●空间划分多,空间利用率低,动线错综复杂。
●业主 M 先生想要健身空间和酒吧休闲区域,M 太太则希望将影音室设置于此。
设计亮点
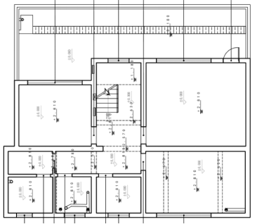
▲一层设计图
●原有楼梯墙体通通拆掉之后,建造旋转式楼梯,赋予了全新的空间功能和视觉冲击。
●超长的门厅与客厅比邻,通过两根承重柱的装饰使空间敞亮又有相对的私密性。
●改造后的空间南北轴线串联着客厅,餐厅,楼梯厅。
●拆除原有储藏间变成厨房,满足日常烹饪需求。
▲二层设计图
●二层打造超大书房让孩子们畅游知识的海洋。
▲三层设计图
●三层独特两个卧室空间的套房,满足业主夫妇的需求。
▲B1 设计图
●地下室的健身区、影视与酒吧有着紧密的互动。
●天井与室内在拆改完之后有了非常充裕的光线。
案例赏析
私人机车博物馆
推门便是呈现在玄关的一辆机车,在灯光的渲染下犹如艺术馆的艺术品。此设计极为大胆,舍弃部分空间功能,却能创造出个性化美学空间。
高挑空+落地窗,绝佳采光效果
此案客厅采用高挑空设计,房间显得更加开阔大气。背景墙壁布铺贴呈现留缝工艺与 LED 线型灯光相匹配,营造空间层次感,缓解大面积单一材质的单调。
暖金色环形组合吊灯闪耀着光芒,以简约的线条勾勒出精致的场景,营造空间的现代美学格调。
配色采用经典的黑白灰色系,和谐的配色让空间开阔但不单调。顶面弧线过渡,空间更加柔和。
主卧空间延续客厅风格,背景墙、地毯造型、吊灯上与客厅一致,体现设计的完整性。
顶面弧形过渡,缓解顶层异形房顶带来的压抑感,空间柔和自然。
玻璃衣柜,运用浅灰色调与玻璃柜门塑造通透摩登的空间调性。简约线条在比例的把控下,缀以灯带转换气氛,一种特有的安宁气氛应运而生。
鱼骨拼工艺地板独特又讲究,丰富的纹理使空间充满了立体感。
蓝灰铺陈儿童房,圆弧避危险
整体空间以不同饱和度的蓝灰色调铺陈,颜值高有质感。壁纸加入了云朵元素,激发孩童时期的创造力和想象力。
两个相同的书桌并成一排,让双胞胎兄弟俩有相对独立的学习空间,又能加深彼此交流。
在结构上,与其他空间的设计不同,家具边角全为圆弧形,防止孩子磕碰出现危险。充满童趣的摆件、床、床头柜制造空间的视觉焦点。
钻石型淋浴间,角落也是宝。
淋浴与浴缸相结合,满足不同的沐浴需求。清晨洗漱时,双台盆也满足全家的使用需求。墙面通过不同材质、颜色的对比,以视觉变幻减少异形顶带来的冲击。钻石型淋浴间有效利用卫生间角落,提高空间利用率。
上下之间,延展空间
旋转式楼梯极受年轻人喜爱,在别墅中不仅衔接了空间,也是夺目的艺术装置。
简化建材,利用黑白灰构成视觉连贯的空间,犹如黑白琴键拨动着优美的空间旋律。
吊灯呼应着随处可见的艺术气息,不经意间一瞥,便能激发出生活中的幸福灵感。一杯红酒配电影,惬意生活从此开始。
“一杯红酒配电影,在周末晚上,关上了手机,舒服窝在沙发里”正如黄小琥在《没那么简单》中所唱出的场景。
设计师将影音室与酒吧台串联在一起,让小两口能在生活的平淡中有轰轰烈烈的爱。
灰白交错的开放式书架,起到划分和隐蔽空间的作用。
本案情况
主创设计 | 李鸣
设计机构 | 尚层装饰浦西分公司
项目名称 | 英伦美墅馆
项目面积 | 420㎡
设计时间 | 2019.02
竣工时间 | 2021.06
-END-
本案图片均为尚层装饰实景拍摄
客服
消息
收藏
下载
最近









































