查看完整案例

收藏

下载
点击蓝字 关注我们
现代简约
本案为130m²的平层,房主是一对年轻的小夫妻,两人喜欢安静舒适的现代风,不要过于繁杂,整体空间需要彰显业主的品味。所以本案设计要创造一个舒适、自由的空间,在满足功能的同时,保留人性化的设计要素,既避免过于严肃冷静,又能满足居住者的居住需求。
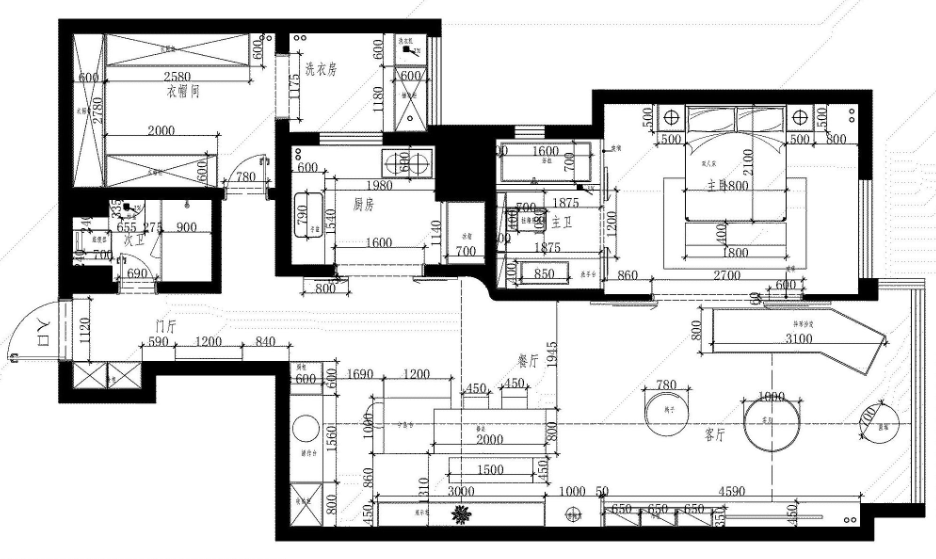
平面图
设计师遵循“少即是多”的设计理念,重新调整空间的布局,使其利用率更高,追求空间划分的交流性及流通动线合理性。根据业主的喜好,设计师为本案提供全屋灯光设计,包含无主灯设计、重点照明等,提升整体空间氛围,高级感满满。
01
客厅
Living room
灰色布艺沙发及组合茶几,搭配蓝色沙发单椅的设计,拉伸了整个客厅的体量感,强化入户的第一感官,令空间更显开阔。电视背景墙引入功能性柜体,兼具功能、特色与美观,同时便于书籍和藏品的展示和存储。
在灯光方面,客厅空间选择使用磁吸轨道灯,凸显了简约的格调,空间也更加开阔。智能化照明系统可以实现自主调节灯光色温,冷光暖光尽在一键之间。
02
餐厅
Dining room
宽敞的餐厅与客厅联通,开放式的设计让视线能够穿过客厅,将窗外的美景尽收眼底。低头、抬头的瞬间,定个了生活中的此时此景。灰色餐桌搭配造型简约的餐椅,点缀精心挑选的餐具,彰显了空间的高级感及房主精致的生活。
摆放的绿植为流线型的空间注入活力,定制的柜体点缀金属元素,空间充满时尚格调。设计师利用家居配饰以求带来最为惬意放松的体验感。
03
厨房
Kitchen
L型的操作台动线清晰,便于使用。简约的推拉门设计使厨房拥有独立空间,在一定程度上隔绝声音和油烟。合理利用上下壁柜,增加厨房的收纳空间。
04
主卧
Master bedroom
主卧的设计,在材质细节与自然气韵的碰撞中折射生活的温度,鱼骨拼木地板结合线条感十足的背景墙,丰富了空间内在质感。舒适的床头、松软的床品泛着柔和的光泽,予人乐活的悠闲自在感,身心俱得惬意。
卧室与客厅一门之隔,打开门即使宽敞、开阔的空间。床头以球形吊灯和金属吊灯的组合形式设计,打破常规,提升层次。柔和的灯光撒下恬静与美好,为空间赋予了艺术气息。
06
卫生间
Bathroom
间以黑、白色为主基调,动线合理,功能齐全。洗手台悬空设计,方便清理打扫。放置舒服的浴缸,劳累时洗去一身疲惫。
客服
消息
收藏
下载
最近

















