查看完整案例

收藏

下载
主创设计ORIGINAL DESIGN
|
兰波
项目类别
ITEM CATEGORY
|
住宅空间
房屋结构
HOUSING STRUCTURE
|
三室两厅2卫
设计面积
DESIGN AREA |
140㎡
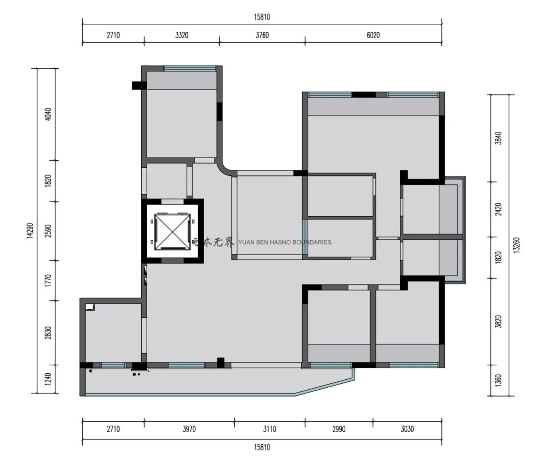
原始结构图
ORIGINAL STRUCTURE
关于设计理念
ABOUT DESIGN CONCEPT
位于龙湖
.
揽镜一个带花园的四室两厅两卫顶层住宅,建筑整体材质为玻璃幕墙,南北通透,采光通风性能俱佳。业主为一位极具个性的女性,对风水有一定的了解和要求。据说因自身缺金和水买下这套房。房子处于
九曲河,林山傍水还有湿地公园,被自然环抱,
与业主需求贴切。业主喜欢简单自然的生活,因此
设计的灵感也来源于自然和山水
。将这两个元素搬进家里,与业主的生活息息相连。业主希望在基本功能基础上对品质和舒适度有所提升,于是我们提炼出
简约、自然、生活
这几个关键词来延伸设计。
平面布局图
LAYOUT PLAN
关于我们所做的一些细节
SOME DETAILS ABOUT WHAT WE DID
1
/
厨房
一个美观且实用的厨房,可以带来更为轻松的生活氛围,为了满足当代住房潮流下中厨
+
吧台的生活格局,我们拆除了原有墙面,向外挪移
40
公分,与吧台连接。把原有的墙体改为玻璃,满足视线的通透,在简约大气的同时,营造出原始自然之感。
2/
客厅
6.9x4.4
米的尺度用作客厅起居和餐厅,的确彰显得小气了些,使卧室面积也十分局促。我们将靠近客厅的独立空间一分为二,解决客厅狭小问题的同时复合出一片儿童玩耍区,与实体墙连接在一起还能增加小孩手绘墙,同时卧室空间也变得更加宽敞。整体增加了一份雅致与和谐。
3
/
独立生活区
原本尚未存在的一片区域,为了最大化的利用有限的观景阳台,将洗衣机隐藏于吧台下,能够打破空间局促性,升华整个住房的幸福和轻松之感。
4
/
动线观赏性塑造
为了充分利用别致的空中花园,我们做了水景和植物的打造,把动线打乱再进行设置,让业主从回家、到客厅、进出过道、主卧都能观赏景观花园的
“面容”。沐浴阳光、感受自然,能释放怡然自得的生活情趣,也能展现满目旖旎的生活品质。
5
/
过道
解决过道过于狭长的难题,我们通过对动线的规划,扩大了过道的尺度,让观景过道更具灵动性和便能性,任意一个角度和视野都具备自然光源,仅在房子过道足不出户便能体验与自然近距离接触的惬意。
6
/
空间层次感
我们将入户空间进行了台高,与景观花园相连接,在整体空间的格调与布局增强空间层次感,清晰的线条、简约的质感,呈现光与空间的完美结合,能更直观感受到大自然云影变化中的色彩,高雅与亲近应运而生。
更多效果图一览
MORE RENDERINGS AT A GLANCE
END
国内外权威奖项
AWARDS
·
2017年 金堂奖年度住宅空间优秀奖
·
2018年 设计源观世界年度精英人物
·
2018年 芒果奖中国别墅优胜奖
·
2018年 创意双城金蝴蝶奖银奖
·
2019年 美国《室内设计》ID室内设计公开赛
·
2019年 APDC亚太精英邀请赛佳作奖
·
2019年 第七届ID+G金创意奖国际创新设计奖
·
2019 FRANCE DESIGN AWARD法国双面神GPDP AWARD 国际创新设计大奖
购物狂“复地上城”案例阅读量30
万+
元 本 无 界
硬装设计|软装设计|全案托管
设 计 对 于 我 们 来 说
让设计引领生活
让生活更艺术
让艺术为生活添彩
创意 生活 时尚 艺术
咨询设计
TEL:18382472142 023-6503 4388
中国•重庆市渝北区汇丰路1号5栋3楼13号商铺
MON-SAT 9:30AM-6:30PM
客服
消息
收藏
下载
最近















