查看完整案例

收藏

下载
Fulfill your needs; give you an ideal home.
晓君所需,安君所居。
01/设计师前言
我的这位客户自己也是学设计的,对于设计落地效果要求很高,前期我们在做设计效果的时候花了大量的时间打磨细节和验证可行性。
可能都是学设计的原因我们沟通起来没有任何的障碍,做完效果图也是从来没有改过,施工过程中选材都是按照效果去执行,业主极力的配合。
也正是遇到了这样一位全力支持和配合的业主,才有了今天的落地效果,说实话我非常感谢她,一个案子想要完整的落地离不开这样有追求有要求的业主。
02/项目信息
项目坐
标 / 虹锦湾
Project Address / HongJinWan
项目类型 / 私宅
Project type /
Private homes
项目面积 / 125㎡
P
roject area /
125㎡
设计时间 / 2018.08
Design time
/
2018.08
拍摄时间 / 2020.05
Shooting time /
2020.05
设计机构 / 晓安设计
Design Company / XiaoAn Design
摄影机构 / 晟苏空间摄影
Photography agency / Shengsu Space Photography
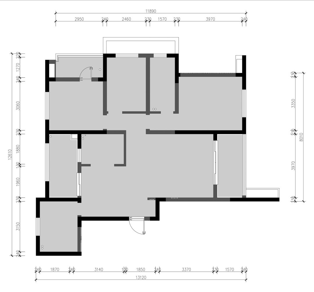
03/户型解析
原始户型
原始问题:
➊原始餐厅厨房面积过小,北阳台占用过多面积。
➋南北不通风,且无法满足中西厨需求。
➌人口不多,
房间冗余,储物量不足。
➍内卫太小,无法满足浴缸的要求。
平面布置
解决方案:
➊把原厨房和北阳台打掉,扩大空间实现中西厨功能。
➋打通南阳台与北阳台,形成良好的通风和采光,且在视觉上扩大客餐厅面积。
➌客厅和餐厅各做了整体的柜子,保证收纳量同时客厅增加了书桌功能。
➍打掉内卫和小房间,改变进入主卧的动线,将衣帽间、梳妆区、内卫、主卧连成一体,功能齐全,提高使用舒适度。
04/实景拍摄
客厅LIVING ROOM
效果图
设计实景
“上帝说要有光,于是就有了光。”一切都因为有了光而呈现色彩,光的通透感贯穿设计的始终,打掉客厅阳台之后在落地窗前加上了竖百叶,在地台上休息的时候可以尽情的享受和控制光线,并将大千世界收进眼中。
效果图
设计实景
▲局部软装的甄选
沙发是业主自己原有的家具,在做整体的风格定位时我们提取了已有的色彩元素,所以你会看到
灰、黑、木色贯穿在各个空间。
沙发背景在艺术漆灰调的基础上,构图借用了平面构成的方法,地面材质的交替、格栅的分割及画框的黑色线条纵横交错,犹如吉他的一根根琴弦正弹奏着悦耳的音符。
效果图
设计实景
电视墙储物柜与入户的鞋柜结合成“L”型的柜体,超大的储物量满足了大部分的储物需求,柜门开与闭的结合,让你拥有会“呼吸”的柜子。
格栅后的小角落,设计师巧妙的在这里做了个透景,背后透出的光是卫生间里的壁灯光线,像极了画框里的抽象画。玻璃是电子雾化玻璃,不用担心隐私。
餐厅DINING ROOM
效果图
设计实景
入户门为了与整体色调协调,后期用福乐阁的漆改色,两边一纵一横做储物柜,白色弱化其存在感,木色与餐桌相呼应,每一笔都有其用意,设计师尽量将效果图还原到真实空间。
▲南北通透敞开的空间感
厨房KITCHEN
设计实景
厨房改成了开放式,为了不破坏整体的效果,墙面与地面统一,柜体及台面都选用干净清爽的白色,黑色的电器镶嵌其中,简洁大方。
主卧THE MASTER BEDROOM
效果图
设计实景
主卧室延续灰、黑与木本色,自然、安静、克制的设计感觉。睡眠区看向洗漱区,用长虹玻璃做一道隐藏在墙体里的移门,那副画不仅仅是装饰作用,也遮住了移门的检修口,一切都在设计师的巧妙设计当中。
▲美女业主的衣帽间与梳妆台
儿童房CHILDREN'S ROOM
设计实景
儿童房墙面与窗帘的色彩极为活泼,因为宝宝还在妈妈的肚子里,所以先布置成客房,以后可以把床撤掉,灵活改造成宝宝的玩耍区。
卫生间 BATHROOM
设计实景
格局上衣帽间、卫生间、主卧是一条通畅的动线,马桶间和淋浴间相邻,仅用玻璃隔开,充分引入光线。钢架焊制的悬空大理石台盆柜,灰白呼应,给人以酒店般的高级感。
厨卫所有的吊顶都选用了防水石膏板,在施工的细节上,为了防止石膏板与墙砖热胀冷缩会产生裂缝,在交接处做了2*2cm的拼接缝。
▲外卫综合了洗衣区
05业主寄语
要是时间能重来,让我再重新装修一次,我还会选择晓安,继续让峰峰设计,请浩哥施工。不只是因为他们用贴心的服务、暖心的交流、专业的态度打动了我,更为重要的是那完工后的实景与效果图接近百分百的贴合令学设计的我明白了,什么才是设计应有价值。
到苏州来之后,有幸亲身经历了几次装修,从开始的我自个儿画施工图,效果全凭临场发挥;到之后熟人介绍的“靠谱”野鸡施工队;再到所谓正规的装潢公司。曾经让我一度觉得装修这事,效果行不行靠的是天意,施工质量好不好全凭运气。
直到抱着大不了再被坑一次的心态从APP上找到晓安。
还记得第一次跟设计师峰峰面聊除了喜欢的装修风格外还提了
3个事:
1.希望有点设计感。
2.落地效果别跟效果图相距甚远。
3.施工细节能否经得起检验。
其实这简单的3个问题包含了我们对家装行业的不信任与无奈,在这里也真挚的向晓安说声抱歉。
1年过的很快,看到“怀胎十月”的孩子终于出生,回想这1年里的点点滴滴,其实没有任何天意和运气。设计师不厌其烦的为我们修改结构图纸、考虑功能划分、施工节点的全程跟踪与最后的软装搭配;项目经理每天不辞辛劳的施工监督、细节把控、进度汇报与验收后的售后服务,使得这个“孩子”必然生的美丽,让人欢喜。
设计本不应该只在图片上华丽,感谢晓安给了我一个理想中的家,祝你们为更多的家庭设计梦想。
END
推荐阅读
点击图片查看案例详情
/ 晓君所需,安君所居 /
▽
▽
座机:0512-65522407
公司地址:苏州工业园区玲珑88创意园2-301
盐城分公司:金融城3栋603室
我就知道你“
”
客服
消息
收藏
下载
最近
































