查看完整案例


收藏

下载
随着旅游市场的逐渐兴旺,文旅商业街区也随之兴起。与传统商业街千篇一律的繁华景象不同,文旅商街更注重文化融合,旅游属性更加明显,一般位于城市旅游富集区或城市文化特色突出的传统街区,注重主题化、体验化和城市文化内涵的挖掘。
文旅商业街区,是近年来文旅项目开发、城市更新、产业结构调整过程中的重要举措之一,大部分城市都在文旅商业街区上发力,期望通过街区的改造提升,迭代升级,从而建立起城市新地标或打造新名片。
说到文旅商业街,有人不经想问什么是文旅商业街?今天佳音老师将通过国内外知名文旅商业街案例并加以解析,带你深入了解文旅商业街。
壹—妻笼宿·舒适的街巷空间
日本中部长野县木曾郡
妻笼宿位于日本中部长野县木曾郡,是中山道上六十九个宿场之一,从江户(东京)数起排在第四十二。中山道是连接江户和京都的一条道路,所谓“宿场”,就是沿途的驿站。妻笼宿曾经是交通要冲,热闹繁华,但因为明治时期铁路的修建等原因,它逐渐没落了。到了昭和时期,日本兴起了保护古建筑的运动,妻笼宿就被幸运地保存了下来。如今漫步于驿站内,会有种恍如回到江户时代的感觉。
关于“妻笼”这个地名最早的记录是永享四年(公元 1432 年),室町幕府命令美浓国守护土歧持益将马厩用的木材运往妻笼的兵器库。
街道上的景色四季分明,春季,樱日和的悠闲散步;夏季,兰川的河水和两边山上吹来的凉风沁人心脾;秋季,夕阳下的屋檐挂着丰收的果实;冬季,街道上的房屋都覆盖上厚厚的白雪。
借鉴一:张驰有度的街区节奏感控制
街区氛围呈现松弛—严整—松弛的节奏
借鉴二:多尺度灰空间处理;街道尺度舒适
退让的建筑灰空间较大部分作为景观节点的使用空间,较小的部分作为景观小品的外摆和休憩座椅的外摆
借鉴三:街道界面-立体绿植空间,多向度景观层次
绿植的存在,在很大程度上打破了街道界面过度连续的感觉
借鉴四:继承性街区景观氛围营造
沿用古朴的石板路、石磨、水车等等
妻笼宿的江户时代美学
不可思议的是,今天的妻笼宿还保留着江户时代的审美特征。随着火车和汽车的出现,人们不再在这些曾经繁华的街道上行走,驿站城镇也年久失修。那时的日本正处于现代化时期,所以它倾向于破坏而不是保存它们。再加上日本战后的经济状况,妻笼宿还能存在,简直是奇迹。
走在中山道上,可以追随古人的脚步,沉浸在日本的历史中。在妻笼宿,您可以体验江户时代的历史,并见证人们为保护过去而不断努力。
贰—拈花湾·禅意小镇
无锡市滨湖区马山国家风景名胜区·灵山集团
作为无锡灵山集团无中生有、从零起步的成功案例,拈花湾非常具有分析价值。灵山小镇·拈花湾,世界级禅意旅居度假目的地,通过建设集旅游、观光、住宿、度假、体验于一体的旅游度假综合体,开创了特色文化旅游的新市场,与国内其他江南古镇形成显著区别,首创了国内以禅意文化为主题的特色小镇。
借鉴一:丰富的度假功能体系,有节奏变化的街区设计
拈花湾景观结构:五谷一街一堂,度假产品功能成体系
起承转合的街区景观序列
借鉴二:多样而连续的水系规划,凸显江南水乡特色
拈花湾水系规划
借鉴三:运用乡土植被,保留原始材料的纹理,风格朴质、素雅,细节处处彰显原滋原味的禅意空间。
植物特点:利用花海、苔藓、鸡爪槭等结合乡土植物搭配,营造拈花湾整个园区的禅意氛围。
铺装特点:
主街道采用 200*400 的石材为主,次要支路采用碎拼的形式,与绿化相结合,卵石与条石收边,更加细致。
借鉴四:禅意小品的形象担当将极大地提升整个场所的 IP 热点,运用精致工艺,提升项目品质。
小品特点:商业街沿街大多通过盆栽、玩偶沙尼、绿植叠石、软装外摆来丰富整个外摆空间,保证整个商业街的连续性。同时小沙弥也成为整个拈花湾的形象担当。
围墙特点:主要通过编制的竹篱笆围合,结合攀岩植物与石砌矮墙,精细的工艺
借鉴五:灯光配合活动,打造精彩的小镇夜场生活
活动特点:分别安排白天、夜晚的活动,全方位服务于游客的禅修生活,加强体验感
灯光特点:整体灯光暖色调,建筑灯光主要结合水面形成倒影,夜间水秀表演灯光与水幕影像配合,渲染突出主题特色,丰富游客夜间活动。
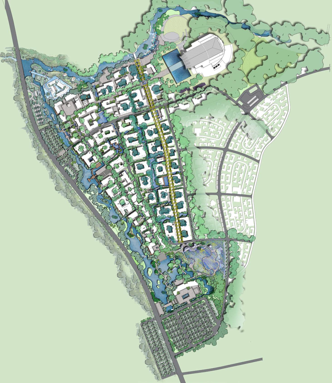
叁—九华山莲花小镇项目(今日公开课解读项目)
以九华文化入境,以水入禅,造现代禅意美学新境界。
本案将以实现落实十二五的规划目标为己任,将莲花小镇作为一个包含【实景演艺、休闲度假、商业服务、文化创意、文化展示】等多种功能复合的文化项目来进行景观设计。
由闹市到人居,由人工到天然,由动渐静,渐入佳境
节点剖析—本愿心街
本愿心街空间尺度与节奏分析
研究证明最佳主街宽度为 6-9 米,现状为 10-17 米。通过水渠、植物、外摆、街道转折、院落缩小尺度感,营造松弛有度、律动变化的街道。
本愿心街(主街空间)
绿植打破了街道界面过度连续的感觉,氛围呈现松弛—严整—松弛的节奏。
本愿心街空间转折处理
本愿心街项目实景
更多相关内容
请关注今天下午的景观方案设计直播分享
17 年甲乙方设计经验的项目负责人
带领我们一起学习那些火出圈的小镇商业街区
是如何打造成功的!
感兴趣的同学记得提前预约直播哦~
——————————————————————
—
—
—
教你打造惊艳的小镇商业街区!
直播时间:2022.10.11,今天下午 15:30-16:30
直播听课方式:点击下方视频号预约,直播开始会有温馨提醒哦~
直播讲师:秋凌景观人气讲师:佳音老师
3
景观方案研修班介绍:
景观方案设计提升:35 天从设计草图到深化推敲的沉浸式学习
想提高自己在景观设计领域中的方案实战技能?
学它↓
4
课程报名方式:
/ 提升景观方案表现能力,从添加我们开始 /
景观课程咨询 / 设计招聘 /
秋凌杯竞赛
5
关于秋凌景观设计
6
近期活动推荐
客服
消息
收藏
下载
最近






















































