查看完整案例


收藏

下载
翎筑设计 / 精致生活倡导者
Desing for exquisite life
设计手记
「空间爆改」
在寸土寸金的上海市中心,我们的客户王先森和钱小姐为了
新婚
了置办了一套52m2的新房,52m2的房子能有多大空间?在一般人的理解里:
52m2
的房子可能也就一房一厅的格局大小,但在经过我们设计师的爆改后,交出的答卷:不仅有客餐厅带两个卧室,还放下了带
卡座
的餐厅,超能装的
榻榻米,
一个
步入式衣
帽间
!住下了新婚夫妇还有2只喵星人整整“
四口人
”
噢~
项目概况 |
《猫舍》
項目名称 |
虹一小区-上海
项目面积 |
52m2
摄影单位 |
黄工
设计公司 |
上海翎筑设计
施工单位 |
上海翎筑设计
完成日期 |
2018年11月
主要物料 |
实木复合地板、花砖、文化砖、胡桃木饰板、水曲柳饰面、轻质黑色移门
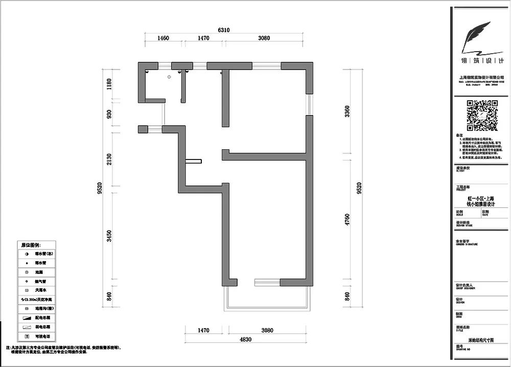
■
原始
平面图
▲
Before:
原户型只是一厨一卫,一过道,一南一北两个房间的布局,缺少年轻新婚夫妇需要的客餐厅等公共空间。
■
平面布置图
▲
After:
修改后的户型如上,针对之前的问题,我们给到了相应的解决方案
①压缩次卧空间并修改了过道动线后,过道上的衣帽间&卡座餐厅Get;
②主卧空间压缩,并采用半开放移门后,客厅功能Get并保留了一定的采光;
③主卧在压缩后,向南阳台进行延伸,保证了
空
间
感,并将衣柜功能置于主卧对面;
| 玄关 - Porch |
▲宜家的侧拉式小鞋柜,在满足功能的同时,也极大的保证了入户区域的空间感;
| 厨房 - Kitchen |
▲在紧凑的空间内,采用最近流行的雾霾蓝色花砖打底,白色条砖和深蓝色墙面的层次对比格外清爽;
▲橱柜操作照明在实用性及空间感上都有无比的重要性。
| 过道 - Passageway |
▲
中式厨房,移门还是必备的,过道在修改后,原本狭长的过道改成了步入式衣帽间,并用清爽的大理石纹移门进行修饰。
| 客厅 - Living Room |
▲在紧凑的空间内,
采用清爽的蓝白色花砖打底,清爽的白色条砖及深蓝色防水漆做对比;
▲对尺寸精确控制,钱小姐心心念念的双门大冰箱硬是塞进了屋内,饮料,冰激凌,轰趴时刻再多零食都藏的下;
▲IKEA简单的灯具和餐盘挂架,美观和功能皆能满足;
▲卡座和吊柜的加入,最大的增加了储藏功能;
▲不一定需要太过于复杂的装饰,一面有“质感”的墙更能体现精致;
▲不拘泥于一定要配套家具的搭配原则,光是凳子的组合就有卡座、常规座椅、工业风的板凳,尊重空间的搭配。
▲可开可关的移门,最大的保证了空间的通透和主卧的私密
| 主卧 - Master BedRoom |
▲摒弃了传统的床头,采用地板上翻代替了床头功能,床的部分,定制了一个简单的带液压挺杆的床箱;
▲卧室在做透光的打开处理后,衣柜被挪至床的对面,电视机区域双色拼接的处理,使其不显得压抑;
| 次卧 - Reclining |
▲真真假假
;
▲水泥色木饰板搭配下,显得有点酷的次卧
;
▲收纳、书架、写字台一个都不能少;
| 卫生间 - Bathroom |
▲延续了厨房的配色;
-----------------------------
Thanks for watching
-----------------------------
▼
翎筑设计 / 往期作品案例回顾
■
翎筑设计|浅夏
■
翎筑设计|生如夏花-休闲美式
■
翎筑设计|暖灰
FIND US
▼
设计咨询:翎筑售前客服
▼
客服
消息
收藏
下载
最近

































