查看完整案例


收藏

下载
项目
面积 | 240㎡
项目户型 | 复式
项目风格 | 现代风格
家庭组成 | 四口之家
户型设计
-Apartment layout design-
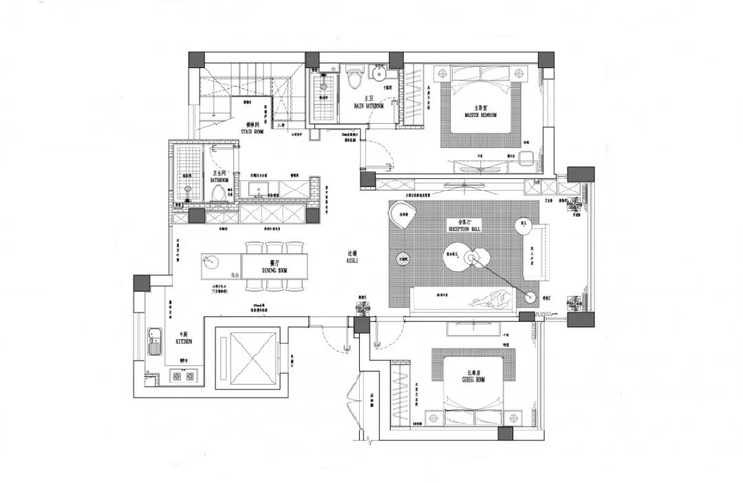
平面布置图
本案主要采用了现代简约的手法,色彩冷静、线条简洁明快,更注重空间共性的表达,运用具有一致性和规律性的表达手法来处理空间的体块关系、收口关系、光影关系。而后根据空间自身的背景和场所感,通过对比、协调、统一等设计手法进行二次创作,通过家具风格的定位,配饰的选择和装饰材料的质感这些显性的元素来塑造属于这一空间的独特气质。
01
客厅
Living Room
02
餐厅
Kitchen
03
厨房
Kitchen
04
卧室
Bedroom
关注华浔
待你足不出户线上参观
想看自己家的户型方案
或在建工地、完工案例
扫码添加联系华浔小陈
▼
17705050735
往期推荐
1500m²新中式海润棠颂售楼部,诗意江南境,水墨东方情
泉州485m²现代风平层,摒除繁复,回归生活本真
龙湖嘉天下观宸135m²现代简约,享受时光的境遇
层,一江光华,孕育春实
现代轻奢复式楼
客服
消息
收藏
下载
最近

















