查看完整案例


收藏

下载
宜
室内设计的价值标准
宜设而设
精在体宜
因地制宜
因人制宜
宜精简/不宜繁琐
宜自然/不宜雕琢
尺度上的把控给予空间更多的舒适性,使得身处其中的人获得精神与心理上的放松。
硬装简洁的线条,干净的底色,它描述了山隐之下的东方哲学远离都市不被喧嚣琐事烦扰,又不违背自然初心,领略清幽雅致。
0
1.
公共·空间
PUBLIC SPACE
L I V I N G R O O M
起 居 室
▼
山隐之下,悠然自得,汲取现代独特前卫的审美意趣,融合中式传统文化精髓,运用多样化的设计手法,缔造一个优雅闲适,乐山乐水的隐居环境。
通风和采光是最大的风水,所有改动都不能以牺牲通风和采光作为代价。
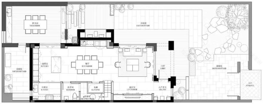
1楼是采光通过最差的楼层,为了获得更多的采光和通风我们砸掉了东面的非承重墙,改成落地的推拉门,为了解决保温密封等一系列问题我们采用了德国进口威克纳系统推拉门(WICONA)。同时方便进出院子,在心理上缩短了室内和院子的距离感。我们把1楼作为公共空间,功能划分为玄关、客厅、餐厅、西厨、中厨
。
设计的时
候故意弱化了客厅,用储物柜代替了背景墙,
为了更简洁柜门设计成4扇推拉门,每扇门的尺寸达到1米宽*3米高,电视隐藏到柜子里,需要看电视时打开中间两扇推拉门即可,两侧推拉门打开可以用作衣帽柜及收纳。
同时还在吊顶里隐藏了一块120寸的投影幕,想看电影遥控一下就可以。
D I N I N G R O O M
餐 厅
▼
餐厅空间与西厨岛台相邻,胡桃木色餐桌与黑胡桃木色餐椅满足主人会友宴请宾客:日常早春,友人,清茶,几盘时令鲜菜,人间有味是清欢。。
西厨岛台保加利亚灰色的大理石尽显高贵质感,与胡桃木色柜门互相营造出中式的现代美感,此空间同时也满足主人日常咖啡制作和与友人品酒的需求。
与客厅同样的理念,用大面积的餐边柜代替背景墙,中间为操作台,既提高了用餐的便利性又解决了收纳问题,全屋中央净水软水器也隐藏其中。
厨房电器被集中设计到西厨柜子里,冰箱和洗碗机采用隐藏式设计,电蒸箱和电烤箱采用镶嵌式设计,所有柜门都采用隐藏拉手设计,简洁的同时也减少了安全隐患。
K I T C H E E
厨 房
▼
中厨房和西厨房用推拉门隔开,进一步防止中厨房的油烟味道串到餐厅,影响用餐体验。
B A T H R O O M
卫 生 间
▼
卫生间门开启方向没有选择只能弱化,和电梯门一起做了一道背景墙,卫生间门就隐藏其中。
T H E S U N R O O M
阳 光 房
▼
阳光房的位置设置在院子的东北角,用于东院和北院的过度,除了设置了东门和北门还在西厨处通过推拉门进入阳光房,由于离厨房较近方便了食物的输送。
北院预留了烧烤炉的位置,烧烤好的食物可直接送到阳光房,也避免了烧烤烟进入室内。
棚顶设置了电动遥控遮阳帘,可自由选择光线的照射量。
0
2.
私密·空间
PUBLIC SPACE
B E D R O O M
卧 室
▼
2楼是两个女儿的房间,每个房间都有自己独立的衣帽间及卫生间还有公用的茶水间。
大女儿房整体以丹青色为
主色调,纯白为底色,营造安宁轻松、优雅而理智的空间
,
装饰挂画亦彰显文艺气息
。
小女孩房整体以胭脂粉为主色调,纯白为底色,营造温婉秀气、灵动而静雅的空间。
床背板上方悬挂的简约装饰画,娇俏而青春。
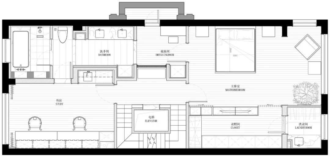
3楼是主人房,
具有独立卫生间、独立梳妆间、独立衣帽间、独立洗衣房。
洗衣间的位置是经过仔细考量的,和衣帽间是一条直线用玻璃门隔开,既保证两个空间的独立性,衣帽间又可以借用洗衣间的光线和通风让衣帽间保持整洁干燥。
这也是洗衣晾衣收纳整理的最短路线,节省的不仅是时间。
最后用推拉门把它们与卧室分隔,为了能收纳更多的东西以及能放下一台电视机,原本4扇推拉门改成两扇,用黑色高柜做隔断只保留一个入口,外观难以分辨。
保证了简洁的同时也拥有了方便实用。
卫生间的位置也是特意挑选在整个布局的东北角,是阳光基本照不到的地方,也为书房阻隔了先对的冷空气。
卫生间及梳妆间所有拐角处都做成了储物柜,既整洁又实用。
光赋予美以戏剧性,在时间流逝中,光在窗纱上留下它的运动轨迹,在有与无中增添生活的意趣:
隔绝窗外纷扰,留有室内一片静谧与安逸。
S T U D Y
书 房
▼
3楼
书房,具有独立茶水间,为了如厕方便把书房和卫生间打通设计了一道暗门。
严格的说应该叫家庭工作室,定制的桌子上要放很多的设备。
0
3.
共享·空间
SHARE SPACE
T A T A M I R O O M
和 室
▼
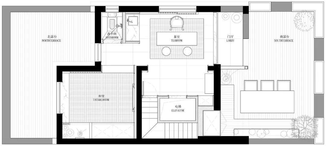
2楼楼梯的公共空间做成了具有多功能的和室带茶水间功能,榻榻米和茶水间用折叠格子门虚分割,利用格子门的透光性保证隐私的同时又能引入更对光线,集休息、会客、嬉戏、收纳于一体,升降台升起就可以作为书房、茶室,将升降台降下就成了儿童的娱乐房,不会担心会磕碰。
每块榻榻米下都可以独立打开作为收纳空间并且每块垫子都可以加热。
4楼室内的北面设计成可满足多人同时休息的榻榻米,同时具有电加热功能,解决了客房问题。
T E A R O O M
茶 室
▼
4楼茶室的
室内面积偏小,主要功能就是喝茶和居住,室外保留了南北露台。
茶水间和卫生间是刚需但是留给它们的面积只有2平米,确实很棘手。
卫生间被分得1平米需要实现的功能得全:
洗漱、如厕、洗澡、隐私、好清洁。
蹲便是个好选择,水箱上盖改成龙头,省水省空间。
再定制整块大理石把水箱和管道盖上,解决了美观还不怕水,需要维修时拿下理石即可。
淋浴器带喷枪功能,清洁起来简直不要太方便。
茶水间也分得1平米需要实现的功能也得全:
水槽、操作台、储物柜、公用洗衣机。
只有这样计较面积才能把最大的空间让给居住者,居住体验才能提升。
茶室具备更强的社交功能,但无论身居高位还是运筹帷幄,能够相谈甚欢的必须是志趣相投者,此时烹茶听雪、围炉夜话,自然是最好的觅友良方。
删繁去奢/
绘事后素
体现着大美无言大象无形的中国士大夫的文化追求
家是生活态度的一种表达,真正爱家的人不会羡慕如宫殿般富丽堂皇的奢华陈设,却会因为清晨第一阵飘进窗内的草香而兴奋。
这种奢华不浮于表面,也只有房子的主人才能够真正拥有这种触摸得到的韵味。
智能家居系统
本案采用的是小米智能生态链,包括扫拖一体机器人、窗帘、插座、开关、洗衣机、电视、门锁、马桶、垃圾桶、浴霸、空调、温度计、加湿器、摄像头以及各类传感器等等全部智能化。
特点就是高颜值、易操作,可玩性高的同时也确实解决了生活中的很多小问题,学习成本不高基本上可以实现能动口就别动手,比如开灯关灯、打开关闭窗帘等动动嘴就解决了
。
D R A W I N G S
图 纸 呈 现
▼
▲
1F平面布置图
▲
2F平面布置图
▲
3F平面布置图
▲
4F平面布置图
项目地点:中国/大连
项目名称:
普罗旺斯三期墅山
工程性质:
联排别墅
室内面积:
约280㎡
竣工时间:
2020/01/15
硬装设计:
李永昌
软装设计:
李永昌
施工团队:
My_old_wood
项目摄影:
李永昌
MOW设计工作室由室内设计、软装设计、景观设计三部分构成,秉承高端设计及施工定位,为具有卓越生活品质追求的客户,提供品质设计及施工服务。设计费用按实际面积收取,全案收费每平方米500元人民币,景观另计。
本案/施工现场
CONSTRUCTION SITE
客服
消息
收藏
下载
最近


















































































































