查看完整案例


收藏

下载
设计公司 | Design Company :
Pro.S布舍设计
创意总监
|
Design Director :
黄梓铖 Henry Wong
主案设计丨Master case design :
金
涛 G
参与设计 | Involved in the design :
黄茵 谢日辉
项目类型 | Project Type :
美发沙龙
项目地址丨Project address :
中国 湛江
项目面积 | Project Area :
180
㎡
主要材质 | Main Material :
大理石、木饰面、镜钢、金属条、墙布
设计概念
C
oncept of design
▽
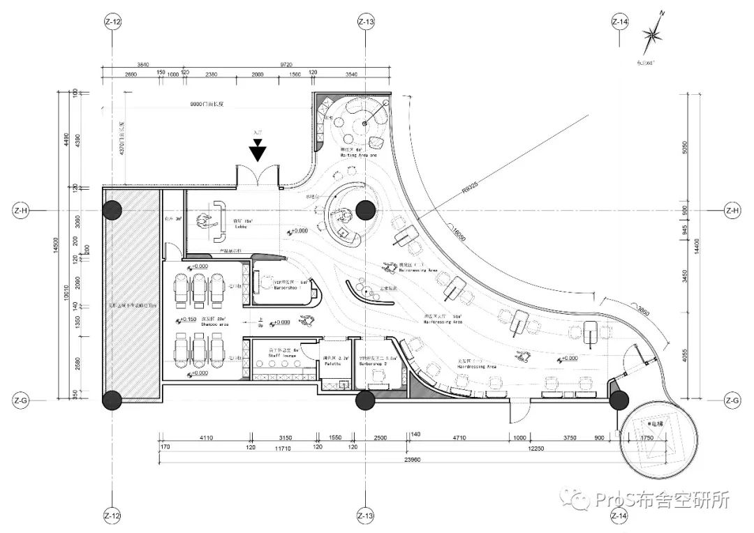
平面布置图
Layout plan
▽
设计说明:
空间通过人的行为参与而被激活,材质通过表演艺术的肢体关系也同样被唤醒,各种材质本身是有一定的生命特性,无形的表演艺术轨迹将空间的各个部分串联起来,观赏者的体验方式更像是参加一场舞台剧,聚光灯在材质与表演者身上被点亮,顿时间空间是凝固的,空间中的雕塑和装置与表演者的肢体形成了互动关系。
1
总览
Overview
2
外立面
Facade
3
前台
Front desk
步入前厅,空间愈加
朗阔
。
天花采用镜面材质减少体块的笨重感,视觉上更为清新,更耀眼夺目。
4
休息区
Rest area
穿过一个个半围合的“盒子”们,光影包裹整个空间,映射在不同材质的肌理上,别具一格却稍纵即逝。细腻的选材与细节,赋予整体空间新的艺术表达,将文化与情感穿插其中,为大众创造出独特气质的体验空间。
5
理发区
Hairdressing area
化大为小的设计手段,使得空间立面在光影变幻之间,产生微妙的表情变化,激荡起充满趣味的城市想象。
6
水吧区
Water bar area
圆弧曲径水吧台是连接室内外的过渡地带,也是提供给顾客留影的场景之一。
7
洗头房
Shampoo room
8
细部
Detail
布舍室内设计 近期荣誉:
2019年度新锐设计师
2019年红棉中国设计奖商业空间奖
2019年中国装饰设计(CBDA)设计奖
2019年APDC亚太设计师大赛至尊奖
2019年第四届“戛迪奖”空间艺术设计奖
2020年第15届金外滩奖“最佳商业空间奖”
客服
消息
收藏
下载
最近
























