查看完整案例


收藏

下载
面积 I Square Meters:130㎡
户型 I Door Model:四室两厅
项目地址 I Project address:宁波
项目类型 I Project type:全案设计
设计机构 I Designer Department:橙熹设计
施工单位 I Construction Unit:橙熹设计
完工日期 I Completion:2022 年
本案为精装改造,当业主对风格没有那么鲜明时,设计师就需要厘清业主的偏好元素,以更为适合的方式融合在一起。这套混搭风就是这么出来了!为了提高空间颜值,墙面色彩、装饰、地板都重新做了调换。
平面解析
原始平面
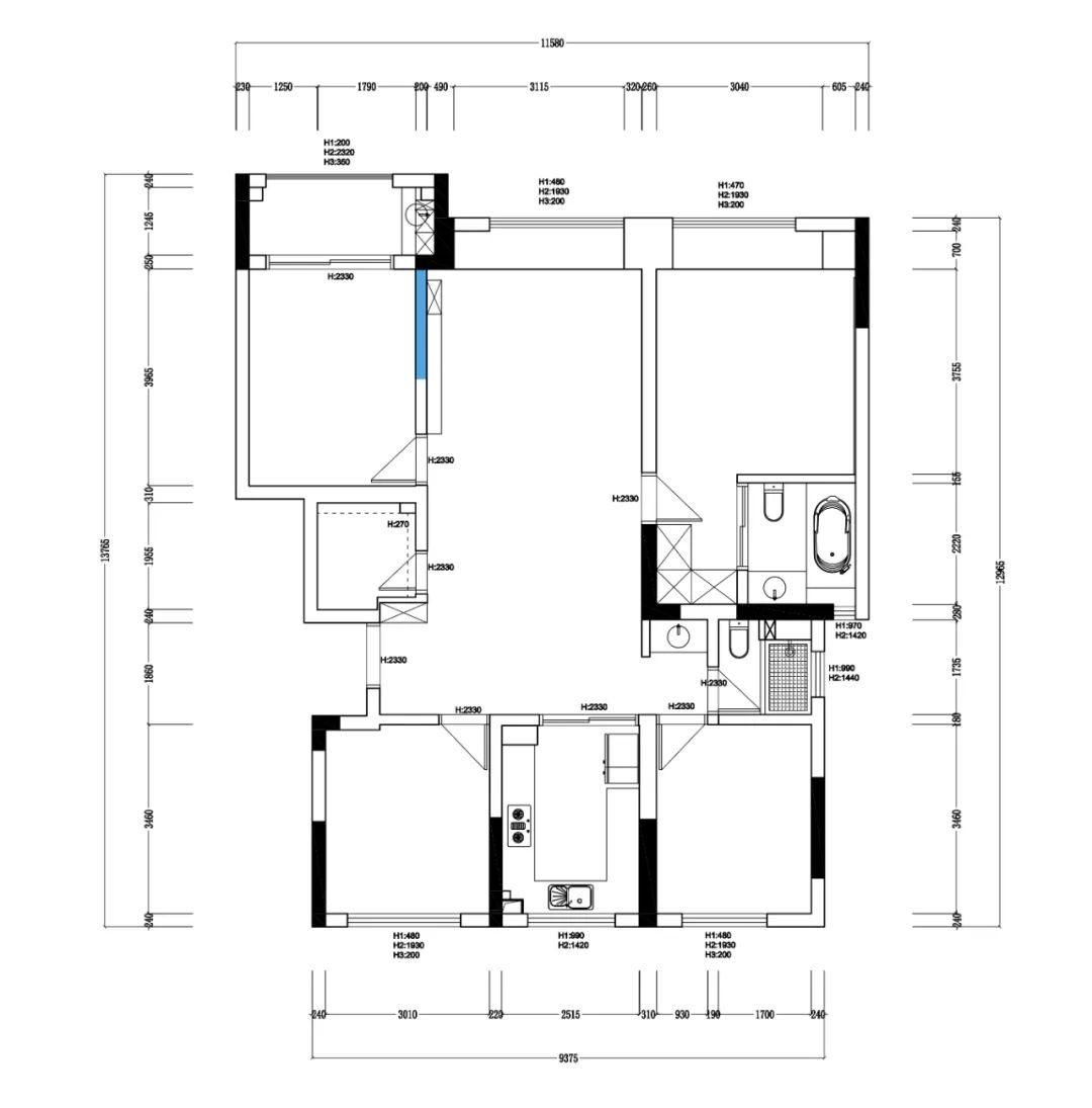
平面布置图
☝向上滑动浏览
从居住者生活习惯出发:
1、书房拆除一半墙体,另留一面做电视背景墙,书房和餐厅之间更通透和明亮。
2、靠门口的小房间用来储物,足够的收纳空间满足生活需求。
3、卫生间门拆除,换成移门,增加日常的便利性。
改造前
▲改造后
客餐厅格局没有大的改变,在原有的基础上,改动了地板和门套,墙面重新刷乳胶漆。原本平平无奇的门洞做了造型,整体看上去更有美观性。
改造前
▲改造后
客餐厅一体化设计通透明亮且清爽优雅,两三枝绿植点缀其中,呈现自然舒适的诗意空间。
归于自然,将温暖与情怀倾注于家,去除繁琐,保留对生活那份热爱和艺术。
卖花的人两手空空地和我说,人要感到幸福才能看见玫瑰。
改造前
▲改造后
奶白色让整体空间干净通透,墙面雕花细节点缀,融入浪漫艺术气息,把精致氛围拿捏得刚刚好。电视背景墙仅用半边,利用弧形元素,使其书房与客厅更具连贯、包裹感。
保持一些纯粹的留白,辅以柔软舒适的浅色系家居,营造温馨且优雅的家居氛围。
阳光正好,微风不燥,宅在家的日子里,总是温柔又闪着光。
改造前
▲改造后
为了整体不会古板,弧形+地台使空间有了连贯和层次。搭配肌理感的原木,让空间拥有明亮的视觉感受。
花开不是为了花落,而是为了开得更加灿烂。
改造前
▲改造后
颜值与功能均在线的多功能房设计,打造一个专属自己的世界,待上一整日都不会觉得烦闷。
改造前▲改造后▼
奶油系加上低饱和的豆绿色,卧室的基调温柔自然。精致线条让其成为空间的装饰之一,表达卧室独特质感。
自由散漫的凉风能治愈乱糟糟的坏心情。
“混搭”装饰风格是一种特异的表现形式,它可以摆脱沉闷,突出重点,符合当进人们追求个性、随性的生活态度。
版權由橙熹設計團隊所獨有,未經允許不得用於商業用途。
橙熹设计 | SHINE ORANGE DESIGN
空间设计 > 软装设计> 全案选物 > 项目管理
我们做的不仅是设计更是一种美好生活方式
/ 为热爱生活的人打造居所 /
▽
客服溪溪
▼Add:宁波市鄞州区潘火街道清华科创园 2 号 1904 室
#往期推荐#
130㎡法式的浪漫,在光影的交织下充满格调
130m² 旧房翻新改造精致原木风的家
130m² 古典主义遇上极简美学,碰撞出优雅极致的居住空间
113㎡与世无争的禅意,回归诗意生活
350㎡现代主义的极简美感,打造一种更为高级温暖的理想生活
150㎡在尽量不动原吊顶亦能让居所温暖而平静
400㎡高级·简约·侘寂风别墅
147㎡辅以木材打造柔和,赋予生活纯粹
客服
消息
收藏
下载
最近












































