查看完整案例


收藏

下载
Area:70㎡
Style:摩登现代
House Type:2 室 2 厅 1 厨 1 卫
Price:30W
Chief Designer:橙熹设计
Service Pattern:全案设计
Project Address:宁波.莘香雅苑
Completion:2020
Design Agency:橙熹设计
本案业主理想中的家是放松舒适又不乏温暖的,因此家中大面积的家具柜体等基本采用极简风格,去繁琐设计,同时在细节角落和颜色搭配上,采用美观的装饰线条和亮丽的色彩,最终效果无限接近业主对家的所有想象。
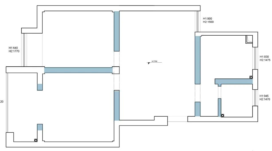
(蓝色部分为拆除和改造的墙体)
从居住者生活习惯出发:
1. 更改客餐厅朝向,南面卧室改成客厅,过道区域改成餐厅。
2. 拆除卫生间和厨房的隔墙,让厨房变得更大。
客厅通往阳台处做了拱形门,两个空间相通又分割,时光穿梭。电视墙做整面柜体处理,柜门做暗开门,保证空间整洁的同时,也有了超大的存储空间,满足日常收纳。
顶面灯光设计为无主灯,沙发处的橘色小吊灯带来小小的温暖,顶面筒灯合理的布置使得客厅可以满足各种不同生活场景的照明需求。
看似随意摆放的收藏品、摆件,实则承载生活记忆,点缀空间的灵动。
客餐厅相互借景对话,开敞流动,颜色收放自如,流露空间的艺术诗意。
精致的小摆件,让家充满幸福感。
餐厅部分颜色非常活泼,与客厅处的素雅形成很大的反差;墙面上的两条橘色线条,连结着两处空间。
利用了墙上空间,装置了两层隔板,既可以放置装饰小物件,也具备一定的餐边柜的功能。
色彩干净,柜体台面干净整洁,味道若能延续,记忆就会一直都在。
主卧的背景设计与客厅相呼应,延续了静怡的色彩搭配,弱化背景色,搭配墨绿色的床靠背,又是舒适与色彩的完美协调。
听着风穿过树叶的声音,如果不冷的话,其实也还挺讨人喜欢的。
入室玄关鞋柜的灰色与洗手台处门框的粉灰色的相遇极为好看,这里是家里颜色最为鲜明的地方。
蝉鸣的夏季我想遇见你。
“想和你虚度时光,比如低头看鱼,比如把茶杯留在桌子上,离开。浪费它们好看的阴影,我还想连落日一起浪费,比如散步,一直消磨到星光漫天。我还要浪费风起的时候,坐在走廊发呆,直到你眼中乌云——全部被吹落到窗外。”
● 原始户型解析
❶ 入门客餐厅一体空间偏小,厨房空间偏小。
❷ 南北通风和采光性差。
❸ 原户型收纳空间需要增加。
● 改造要点解析
❶ 电视机背景与主卧室之间用柜体做隔断增加收纳空间.
❷ 阳台增加休闲区域,更具有生活情调.
❸ 主卧室和孩卧室设置衣帽间增加收纳空间.
版權由橙熹設計團隊所獨有,未經允許不得用於商業用途。
橙熹设计 | SHINE ORANGE DESIGN
别墅设计 > 大宅设计> 私宅设计 > 软装设计 > 商业设计
我们做的不仅是设计更是一种美好生活方式
/ 为热爱生活的人打造居所 /
▽
客服溪溪
▼Add:宁波市鄞州区潘火街道清华科创园 2 号 1904 室
客服
消息
收藏
下载
最近












































