查看完整案例


收藏

下载
SHINE ORANGE DESIGN
发光的橙子
一个人走遍全世界
想要找他在寻找的东西
后来回到家里
他找到了
橙熹作品
主案设计 /
徐珊
项目地址 / 宁波
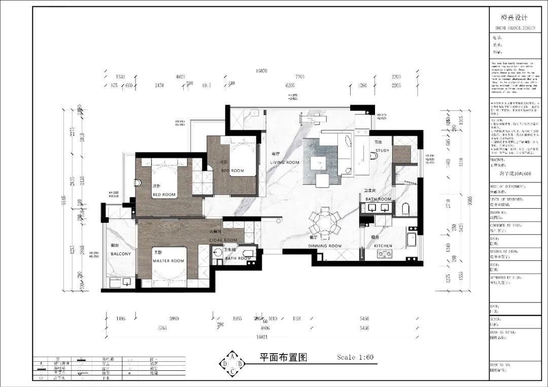
项目面积 /120m²
平
面规划
只有心灵才能洞察一切
最美的东西用眼睛是看不到的
------小王子
<空间形成>
本案业
客厅设计采用开放式手法
打开客厅餐厅和书房的界限
生活的情景增加更多互动
大面积灰色墙面搭配深蓝色柜体
让空间变得高级并且更有理性
让阳台融入客厅
让自然和光线和人物心灵更多互动
灵感与创意的结晶
现代与法式的结合
用颇有雕塑感的外表
演绎出现代古典之美
并且保持人体工学理论的元素
儿童房设计前卫时尚
色彩鲜明 意趣盎然
为儿童居室注入活力动感元素
在都市生活的紧张喧嚣中
我们太需要一块宁静的小天地来澄澈心灵
有时候,就是需要这样
馥郁中透露着理性与静思的生活态度
版權由橙熹設計團隊所獨有,未經允許不得用於商業用途。
橙熹设计 | SHINE ORANGE DESIGN
别墅设计 > 大宅设计 > 私宅设计 > 软装设计 > 商业设计
我们做的不仅是设计 更是一种美好生活方式
/ 为热爱生活的人打造居所 /
▽
客服溪溪
▼
Add:宁波市鄞州区潘火街道清华科创园2号1904室
往 期 精 彩 回 顾
橙熹设计 | 《往后余生》执卿之手共度余生,不悔必不负汝温
橙熹设计 | 《Hopeseed》船清梦压星河,偷捧时间煮酒喝
橙熹设计 | 《星辰起舞》春风十里 不如有你
END
客服
消息
收藏
下载
最近



























